|
|
|
| Larry Stein Oklahoma County Assessor (405) 713-1200 - Public Access System |
|
|
|
|
|
|
| Real Property Display - Screen Produced 4/4/2026 5:34:50 AM | ||||
|---|---|---|---|---|
| Account: R134975000 | Type: Residential | Location: |
8900 N HASSETT RD |
|
| Building Name/Occupant: |
|
OKLAHOMA CITY |
||
| Owner Name 1: | SMITH MICHAEL R TRS |
Parcel PIN#: |
3741-13-497-5000 |
|
| Owner Name 2: | SMITH MICHAEL R REV TRUST | 1/4 section #: |
3741 |
|
| Owner Name 3: | Parent Acct: |
|
||
| Billing Address: | 8900 N HASSETT RD | Tax District: |
|
|
| City, State, Zip | OKLAHOMA CITY, OK 73131-4048 | School System: |
Oklahoma City #89 |
|
|
Country: (If noted) |
Land Size: |
3.5200 Acres |
||
|
Land Value: 79,525 |
|
|||
|
Sect 36-T13N-R3W Qtr NE |
UNPLTD PT SEC 36 13N 3W
Block
000
Lot
000
|
|||
| Full Legal Description: UNPLTD PT SEC 36 13N 3W 000 000 PT NE4 SEC 36 13N 3W S/2 OF NW4 SW4 NE4 EX W30FT & EX A TR BEG 30FT E OF SW/C OF S/2 NW4 SW4 NE4 TH E630FT N165FT W300FT S114FT W330FT S51FT TO BEG |
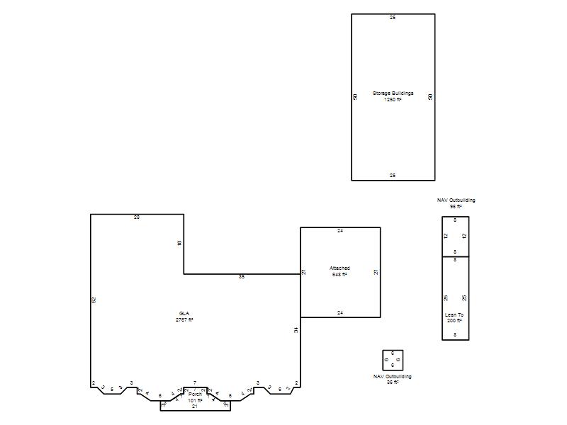
| Photo & Sketch (if available) | Comp Sales (ordered by relevancy) |
|
||||||||||||||||||
|
||||||||||||||||||||
| Value History (*The County Treasurer 405-713-1300 posts & collects actual tax amounts. Contact information HERE) | |||||||||||||
|---|---|---|---|---|---|---|---|---|---|---|---|---|---|
| Year | Market Value | Taxable Mkt Value | Gross Assessed | Exemption | Net Assessed | Millage | Est. Tax | Tax Savings | |||||
|
2026 |
464,500 |
331,362 |
36,449 |
1,000 |
35,449 |
122.90 |
$4,357 |
$1,923 |
|||||
|
2025 |
538,500 |
331,362 |
36,449 |
1,000 |
35,449 |
122.90 |
$4,357 |
$2,923 |
|||||
|
2024 |
523,000 |
321,711 |
35,387 |
1,000 |
34,387 |
123.89 |
$4,260 |
$2,867 |
|||||
|
2023 |
547,500 |
312,341 |
34,356 |
1,000 |
33,356 |
122.82 |
$4,097 |
$3,300 |
|||||
|
2022 |
482,000 |
303,244 |
33,356 |
1,000 |
32,356 |
117.63 |
$3,806 |
$2,431 |
|||||
| Property Account Status/Adjustments/Exemptions | ||
|---|---|---|
| Account # | Exemption Description | Amount |
|
R134975000 |
Freeze Senior Valuation |
0 |
|
R134975000 |
3% Cap Homestead |
0 |
|
R134975000 |
Homestead |
1,000 |
| Property Deed Transaction History (Recorded in the County Clerk's Office) | |||||||
|---|---|---|---|---|---|---|---|
| Date | Type | Book | Page | Price | Grantor | Grantee | |
|
12/31/1998 |
|
Historical |
$115,000 |
SMITH DONALD J TRS |
SMITH MICHAEL R TRS |
||
|
8/22/1997 |
|
Historical |
$0 |
SMITH DONALD J & ELBIE J TRS |
SMITH DONALD J TRS |
||
|
9/27/1989 |
|
Historical |
$0 |
SMITH DONALD J & ELBIE J |
SMITH DONALD J & ELBIE J TRS |
||
|
4/1/1982 |
|
Historical |
$0 |
|
SMITH DONALD J & ELBIE J |
||
| Last Mailed Notice of Value (N.O.V.) Information/History | ||||||||
|---|---|---|---|---|---|---|---|---|
| Year | Date | Market Value | Taxable Market Value | Gross Assessed | Exemption | Net Assessed | ||
|
2025 |
02/14/2025 |
538,500 |
331,362 |
36,449 |
1,000 |
35,449 |
||
|
2024 |
02/13/2024 |
523,000 |
321,711 |
35,387 |
1,000 |
34,387 |
||
|
2023 |
02/14/2023 |
547,500 |
312,341 |
34,356 |
1,000 |
33,356 |
||
|
2022 |
03/15/2022 |
482,000 |
303,244 |
33,356 |
1,000 |
32,356 |
||
|
2021 |
03/19/2021 |
424,500 |
294,412 |
32,385 |
1,000 |
31,385 |
||
| Property Building Permit History | |||||||||||
|---|---|---|---|---|---|---|---|---|---|---|---|
| Issued | Permit # | Provided by | Bldg # | Description | Est Construction Cost | Status | |||||
| No Building Permit records returned. | |||||||||||
| Click button on building number to access detailed information: | ||||||
|---|---|---|---|---|---|---|
| Bldg # | Vacant/Improved Land | Bldg Description | Year Built | SqFt | # Stories | |
|
1 |
Improved |
Ranch 1 Story |
1983 |
2,767 |
1 Stories |
|