|
|
|
| Larry Stein Oklahoma County Assessor (405) 713-1200 - Public Access System |
|
|
|
|
|
|
| Real Property Display - Screen Produced 4/2/2026 2:30:27 PM | ||||
|---|---|---|---|---|
| Account: R134975810 | Type: Residential | Location: |
8712 N EASTERN AVE |
|
| Building Name/Occupant: |
|
OKLAHOMA CITY |
||
| Owner Name 1: | BREWER FORMHALS DEBRA JO TRS |
Parcel PIN#: |
3744-13-497-5810 |
|
| Owner Name 2: | BREWER FORMHALS DEBRA JO REV TRUST | 1/4 section #: |
3744 |
|
| Owner Name 3: | Parent Acct: |
|
||
| Billing Address: | 6409 NW 9TH ST | Tax District: |
|
|
| City, State, Zip | OKLAHOMA CITY, OK 73127-5505 | School System: |
Oklahoma City #89 |
|
|
Country: (If noted) |
Land Size: |
4.7500 Acres |
||
|
Land Value: 102,853 |
|
|||
|
Sect 36-T13N-R3W Qtr NW |
UNPLTD PT SEC 36 13N 3W
Block
000
Lot
000
|
|||
| Full Legal Description: UNPLTD PT NW4 SEC 36 13N 3W BEG 191.14FT N OF SW/C NW4 TH N161.14FT E1314.16FT S161.21FT W1314.96FT TO BEG EX E30FT |
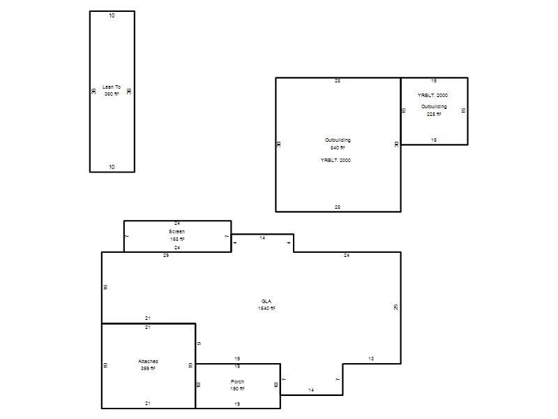
| Photo & Sketch (if available) | Comp Sales (ordered by relevancy) |
|
||||||||||||||||||
|
||||||||||||||||||||
| Value History (*The County Treasurer 405-713-1300 posts & collects actual tax amounts. Contact information HERE) | |||||||||||||
|---|---|---|---|---|---|---|---|---|---|---|---|---|---|
| Year | Market Value | Taxable Mkt Value | Gross Assessed | Exemption | Net Assessed | Millage | Est. Tax | Tax Savings | |||||
|
2026 |
207,500 |
207,500 |
22,825 |
0 |
22,825 |
122.90 |
$2,805 |
$0 |
|||||
|
2025 |
232,000 |
202,381 |
22,261 |
0 |
22,261 |
122.90 |
$2,736 |
$400 |
|||||
|
2024 |
222,000 |
192,744 |
21,201 |
0 |
21,201 |
123.89 |
$2,627 |
$399 |
|||||
|
2023 |
233,000 |
183,566 |
20,191 |
0 |
20,191 |
122.82 |
$2,480 |
$668 |
|||||
|
2022 |
181,000 |
174,825 |
19,230 |
0 |
19,230 |
117.63 |
$2,262 |
$80 |
|||||
| Property Account Status/Adjustments/Exemptions | ||
|---|---|---|
| Account # | Exemption Description | Amount |
|
R134975810 |
5% Capped Account |
0 |
| Property Deed Transaction History (Recorded in the County Clerk's Office) | ||||||||||
|---|---|---|---|---|---|---|---|---|---|---|
| Date | Type | Book | Page | Price | Grantor | Grantee | ||||
|
4/24/2024 |
|
Deeds |
$0 |
BREWER FORMHALS DEBBIE JO |
BREWER FORMHALS DEBRA JO TRS |
|||||
|
7/10/2010 |
|
Deeds |
$0 |
FORMHALS SHERMAN H |
BREWER FORMHALS DEBBIE JO |
|||||
|
12/10/2007 |
|
Deeds |
$146,000 |
BOURNE PHILLIP C & CHRISTINA R |
FORMHALS SHERMAN H |
|||||
|
12/8/2007 |
|
Deeds |
$0 |
DEWITT DAVID D & MARSHA ANN FKA MARTHA RAHLF |
BOURNE CHRISTINA R & PHILIP C |
|||||
|
6/30/2004 |
|
Deeds |
$102,000 |
DEWITT DAVID D RAHLF MARSHA A |
BOURNE PHILLIP C & CHRISTINA R |
|||||
| Last Mailed Notice of Value (N.O.V.) Information/History | ||||||||
|---|---|---|---|---|---|---|---|---|
| Year | Date | Market Value | Taxable Market Value | Gross Assessed | Exemption | Net Assessed | ||
|
2026 |
02/23/2026 |
207,500 |
207,500 |
22,825 |
0 |
22,825 |
||
|
2025 |
02/14/2025 |
232,000 |
202,381 |
22,261 |
0 |
22,261 |
||
|
2024 |
02/13/2024 |
222,000 |
192,744 |
21,201 |
0 |
21,201 |
||
|
2023 |
02/14/2023 |
233,000 |
183,566 |
20,191 |
0 |
20,191 |
||
|
2022 |
03/15/2022 |
181,000 |
174,825 |
19,230 |
0 |
19,230 |
||
| Property Building Permit History | |||||||||||
|---|---|---|---|---|---|---|---|---|---|---|---|
| Issued | Permit # | Provided by | Bldg # | Description | Est Construction Cost | Status | |||||
| No Building Permit records returned. | |||||||||||
| Click button on building number to access detailed information: | ||||||
|---|---|---|---|---|---|---|
| Bldg # | Vacant/Improved Land | Bldg Description | Year Built | SqFt | # Stories | |
|
1 |
Improved |
Ranch 1 Story |
1946 |
1,640 |
1 Stories |
|