|
|
|
| Larry Stein Oklahoma County Assessor (405) 713-1200 - Public Access System |
|
|
|
|
|
|
| Real Property Display - Screen Produced 4/1/2026 7:12:46 AM | ||||
|---|---|---|---|---|
| Account: R200601110 | Type: Residential | Location: |
4216 NW 148TH ST |
|
| Building Name/Occupant: |
|
OKLAHOMA CITY |
||
| Owner Name 1: | HENNESSEE J & E FAMILY TRUST |
Parcel PIN#: |
3844-20-060-1110 |
|
| Owner Name 2: | 1/4 section #: |
3844 |
||
| Owner Name 3: | Parent Acct: |
|
||
| Billing Address: | 4216 NW 148TH ST | Tax District: |
|
|
| City, State, Zip | OKLAHOMA CITY, OK 73134-1811 | School System: |
Deer Creek #6 |
|
|
Country: (If noted) |
Land Size: |
0.3099 Acres |
||
|
Land Value: 70,200 |
|
|||
|
Sect 11-T13N-R4W Qtr NW |
REMINGTON SEC 5
Block
020
Lot
012
|
|||
| Full Legal Description: REMINGTON SEC 5 020 012 |
| Photo & Sketch (if available) | Comp Sales (ordered by relevancy) |
|
||||||||||||||||||
|
||||||||||||||||||||
| Value History (*The County Treasurer 405-713-1300 posts & collects actual tax amounts. Contact information HERE) | |||||||||||||
|---|---|---|---|---|---|---|---|---|---|---|---|---|---|
| Year | Market Value | Taxable Mkt Value | Gross Assessed | Exemption | Net Assessed | Millage | Est. Tax | Tax Savings | |||||
|
2026 |
502,500 |
408,960 |
44,985 |
1,000 |
43,985 |
129.51 |
$5,697 |
$1,462 |
|||||
|
2025 |
506,000 |
397,049 |
43,675 |
1,000 |
42,675 |
129.51 |
$5,527 |
$1,682 |
|||||
|
2024 |
492,500 |
385,485 |
42,403 |
1,000 |
41,403 |
131.12 |
$5,429 |
$1,675 |
|||||
|
2023 |
494,500 |
374,258 |
41,168 |
1,000 |
40,168 |
131.55 |
$5,284 |
$1,872 |
|||||
|
2022 |
412,500 |
363,358 |
39,969 |
1,000 |
38,969 |
130.27 |
$5,077 |
$834 |
|||||
| Property Account Status/Adjustments/Exemptions | ||
|---|---|---|
| Account # | Exemption Description | Amount |
|
R200601110 |
Homestead |
1,000 |
|
R200601110 |
3% Cap Homestead |
0 |
| Property Deed Transaction History (Recorded in the County Clerk's Office) | |||||||
|---|---|---|---|---|---|---|---|
| Date | Type | Book | Page | Price | Grantor | Grantee | |
|
10/12/2000 |
|
Deeds |
$260,000 |
TOM HOSHALL HOMES INC |
HENNESSEE J & E FAMILY TRUST |
||
|
9/4/1998 |
|
Historical |
$32,000 |
SIERRA DEVELOPMENT CO LLC |
TOM HOSHALL HOMES INC |
||
|
2/11/1998 |
|
Historical |
$0 |
|
SIERRA DEVELOPMENT CO LLC |
||
| Last Mailed Notice of Value (N.O.V.) Information/History | ||||||||
|---|---|---|---|---|---|---|---|---|
| Year | Date | Market Value | Taxable Market Value | Gross Assessed | Exemption | Net Assessed | ||
|
2026 |
02/23/2026 |
502,500 |
408,960 |
44,985 |
1,000 |
43,985 |
||
|
2025 |
02/14/2025 |
506,000 |
397,049 |
43,675 |
1,000 |
42,675 |
||
|
2024 |
02/13/2024 |
492,500 |
385,485 |
42,403 |
1,000 |
41,403 |
||
|
2023 |
02/14/2023 |
494,500 |
374,258 |
41,168 |
1,000 |
40,168 |
||
|
2022 |
03/15/2022 |
412,500 |
363,358 |
39,969 |
1,000 |
38,969 |
||
| Property Building Permit History | ||||||
|---|---|---|---|---|---|---|
| Issued | Permit # | Provided by | Bldg # | Description | Est Construction Cost | Status |
|
9/17/1999 |
10266904 |
OKLAHOMA CITY |
1 |
Main Dwellin |
250,000 |
Inactive |
| Click button on building number to access detailed information: | ||||||
|---|---|---|---|---|---|---|
| Bldg # | Vacant/Improved Land | Bldg Description | Year Built | SqFt | # Stories | |
|
1 |
Improved |
Ranch 1 Story |
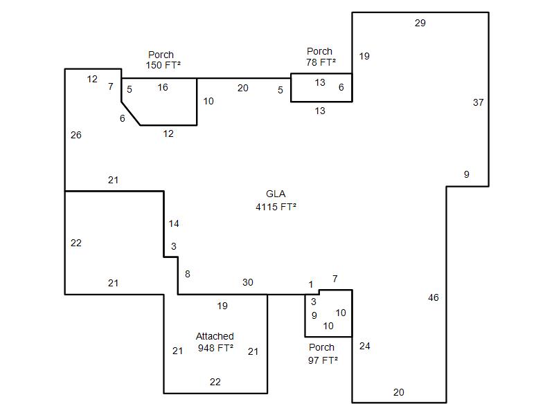
2000 |
4,115 |
1 Stories |
|