|
|
|
| Larry Stein Oklahoma County Assessor (405) 713-1200 - Public Access System |
|
|
|
|
|
|
| Real Property Display - Screen Produced 4/1/2026 7:09:56 PM | ||||
|---|---|---|---|---|
| Account: R148091125 | Type: Residential | Location: |
13321 PINEHURST RD |
|
| Building Name/Occupant: |
|
OKLAHOMA CITY |
||
| Owner Name 1: | SANCHEZ LESLIE D & GABRIEL SR |
Parcel PIN#: |
3853-14-809-1125 |
|
| Owner Name 2: | 1/4 section #: |
3853 |
||
| Owner Name 3: | Parent Acct: |
|
||
| Billing Address: | 13321 PINEHURST RD | Tax District: |
|
|
| City, State, Zip | OKLAHOMA CITY, OK 73120-8519 | School System: |
Edmond #12 |
|
|
Country: (If noted) |
Land Size: |
0.2479 Acres |
||
|
Land Value: 42,120 |
|
|||
|
Sect 14-T13N-R4W Qtr NE |
QUAIL RIDGE TO ROLLING HILLS
Block
001
Lot
013
|
|||
| Full Legal Description: QUAIL RIDGE TO ROLLING HILLS 001 013 |
| Photo & Sketch (if available) | Comp Sales (ordered by relevancy) |
|
||||||||||||||||||
|
||||||||||||||||||||
| Value History (*The County Treasurer 405-713-1300 posts & collects actual tax amounts. Contact information HERE) | |||||||||||||
|---|---|---|---|---|---|---|---|---|---|---|---|---|---|
| Year | Market Value | Taxable Mkt Value | Gross Assessed | Exemption | Net Assessed | Millage | Est. Tax | Tax Savings | |||||
|
2026 |
254,000 |
202,311 |
22,254 |
1,000 |
21,254 |
120.32 |
$2,557 |
$804 |
|||||
|
2025 |
246,500 |
196,419 |
21,605 |
1,000 |
20,605 |
120.32 |
$2,479 |
$783 |
|||||
|
2024 |
245,500 |
190,699 |
20,975 |
1,000 |
19,975 |
119.96 |
$2,396 |
$843 |
|||||
|
2023 |
236,500 |
185,145 |
20,365 |
1,000 |
19,365 |
119.02 |
$2,305 |
$791 |
|||||
|
2022 |
196,500 |
179,753 |
19,771 |
1,000 |
18,771 |
120.10 |
$2,255 |
$341 |
|||||
| Property Account Status/Adjustments/Exemptions | ||
|---|---|---|
| Account # | Exemption Description | Amount |
|
R148091125 |
3% Cap Homestead |
0 |
|
R148091125 |
Homestead |
1,000 |
| Property Deed Transaction History (Recorded in the County Clerk's Office) | |||||||
|---|---|---|---|---|---|---|---|
| Date | Type | Book | Page | Price | Grantor | Grantee | |
|
6/25/2012 |
|
Deeds |
$170,000 |
JARVIS LEWIS & DAVON R |
SANCHEZ LESLIE D & GABRIEL SR |
||
|
3/1/2004 |
|
Deeds |
$157,000 |
TRAUTMAN DAVID P & AMIE E |
JARVIS DAVON R |
||
|
3/1/2004 |
|
Deeds |
$0 |
JARVIS DAVON R |
JARVIS LEWIS & DAVON R |
||
|
10/28/1996 |
|
Historical |
$96,000 |
SIGMAN LONNIE E & MARY E |
TRAUTMAN DAVID P & AMIE E |
||
|
11/11/1911 |
|
Historical |
$0 |
|
SIGMAN LONNIE E & MARY E |
||
| Last Mailed Notice of Value (N.O.V.) Information/History | ||||||||
|---|---|---|---|---|---|---|---|---|
| Year | Date | Market Value | Taxable Market Value | Gross Assessed | Exemption | Net Assessed | ||
|
2026 |
02/23/2026 |
254,000 |
202,311 |
22,254 |
1,000 |
21,254 |
||
|
2025 |
02/14/2025 |
246,500 |
196,419 |
21,605 |
1,000 |
20,605 |
||
|
2024 |
02/13/2024 |
245,500 |
190,699 |
20,975 |
1,000 |
19,975 |
||
|
2023 |
02/14/2023 |
236,500 |
185,145 |
20,365 |
1,000 |
19,365 |
||
|
2022 |
03/15/2022 |
196,500 |
179,753 |
19,771 |
1,000 |
18,771 |
||
| Property Building Permit History | |||||||||||
|---|---|---|---|---|---|---|---|---|---|---|---|
| Issued | Permit # | Provided by | Bldg # | Description | Est Construction Cost | Status | |||||
| No Building Permit records returned. | |||||||||||
| Click button on building number to access detailed information: | ||||||
|---|---|---|---|---|---|---|
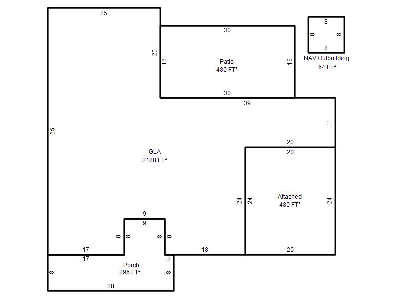
| Bldg # | Vacant/Improved Land | Bldg Description | Year Built | SqFt | # Stories | |
|
1 |
Improved |
Ranch 1 Story |
1962 |
2,188 |
1 Stories |
|