|
|
|
| Larry Stein Oklahoma County Assessor (405) 713-1200 - Public Access System |
|
|
|
|
|
|
| Real Property Display - Screen Produced 4/2/2026 7:13:35 PM | ||||
|---|---|---|---|---|
| Account: R150486000 | Type: Residential | Location: |
302 E MARSHALL DR |
|
| Building Name/Occupant: |
|
MIDWEST CITY |
||
| Owner Name 1: | MIDWEST CITY PARTNERS LLC |
Parcel PIN#: |
1437-15-048-6000 |
|
| Owner Name 2: | 1/4 section #: |
1437 |
||
| Owner Name 3: | Parent Acct: |
|
||
| Billing Address: | 6000 WRIGHT TER | Tax District: |
|
|
| City, State, Zip | CULVER CITY , CA 90232 | School System: |
Mid-Del #52 |
|
|
Country: (If noted) |
Land Size: |
0.1830 Acres |
||
|
Land Value: 20,331 |
|
|||
|
Sect 10-T11N-R2W Qtr NE |
COUNTRY ESTATES ADD
Block
010
Lot
003
|
|||
| Full Legal Description: COUNTRY ESTATES ADD 010 003 |
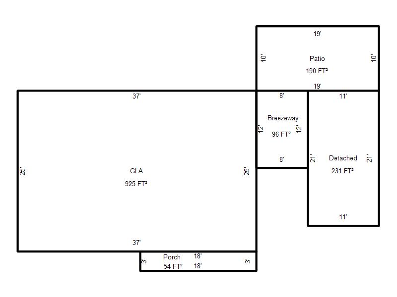
| Photo & Sketch (if available) | Comp Sales (ordered by relevancy) |
|
||||||||||||||||||
|
||||||||||||||||||||
| Value History (*The County Treasurer 405-713-1300 posts & collects actual tax amounts. Contact information HERE) | |||||||||||||
|---|---|---|---|---|---|---|---|---|---|---|---|---|---|
| Year | Market Value | Taxable Mkt Value | Gross Assessed | Exemption | Net Assessed | Millage | Est. Tax | Tax Savings | |||||
|
2026 |
110,500 |
78,399 |
8,623 |
0 |
8,623 |
119.58 |
$1,031 |
$422 |
|||||
|
2025 |
111,500 |
74,666 |
8,213 |
0 |
8,213 |
119.58 |
$982 |
$485 |
|||||
|
2024 |
106,000 |
71,111 |
7,821 |
0 |
7,821 |
122.51 |
$958 |
$470 |
|||||
|
2023 |
95,500 |
67,725 |
7,449 |
0 |
7,449 |
117.71 |
$877 |
$360 |
|||||
|
2022 |
64,500 |
64,500 |
7,095 |
0 |
7,095 |
116.64 |
$828 |
$0 |
|||||
| Property Account Status/Adjustments/Exemptions | ||
|---|---|---|
| Account # | Exemption Description | Amount |
|
R150486000 |
5% Capped Account |
0 |
| Property Deed Transaction History (Recorded in the County Clerk's Office) | ||||||||||
|---|---|---|---|---|---|---|---|---|---|---|
| Date | Type | Book | Page | Price | Grantor | Grantee | ||||
|
7/8/2020 |
|
Hmstd Off & |
$0 |
JACOBY MATTHEW J |
MIDWEST CITY PARTNERS LLC |
|||||
|
4/1/2019 |
|
Deeds |
$64,000 |
CHARETTE REALTIES LLC |
JACOBY MATTHEW J |
|||||
|
6/16/2017 |
|
Deeds |
$56,000 |
KARNER ESTHER E |
CHARETTE REALTIES LLC |
|||||
|
10/6/2016 |
|
Deeds |
$0 |
KARNER WALTER J & ESTHER E |
KARNER ESTHER E |
|||||
|
3/1/2012 |
|
Deeds |
$63,000 |
COX EARL D & JANICE S CO TRS COX EARL D & JANICE S REV TRUST |
KARNER WALTER J & ESTHER E |
|||||
| Last Mailed Notice of Value (N.O.V.) Information/History | ||||||||
|---|---|---|---|---|---|---|---|---|
| Year | Date | Market Value | Taxable Market Value | Gross Assessed | Exemption | Net Assessed | ||
|
2026 |
02/06/2026 |
110,500 |
78,399 |
8,623 |
0 |
8,623 |
||
|
2025 |
01/31/2025 |
111,500 |
74,666 |
8,213 |
0 |
8,213 |
||
|
2024 |
01/22/2024 |
106,000 |
71,111 |
7,821 |
0 |
7,821 |
||
|
2023 |
01/23/2023 |
95,500 |
67,725 |
7,449 |
0 |
7,449 |
||
|
2020 |
02/21/2020 |
64,500 |
64,500 |
7,095 |
0 |
7,095 |
||
| Property Building Permit History | |||||||||||
|---|---|---|---|---|---|---|---|---|---|---|---|
| Issued | Permit # | Provided by | Bldg # | Description | Est Construction Cost | Status | |||||
| No Building Permit records returned. | |||||||||||
| Click button on building number to access detailed information: | ||||||
|---|---|---|---|---|---|---|
| Bldg # | Vacant/Improved Land | Bldg Description | Year Built | SqFt | # Stories | |
|
1 |
Improved |
Ranch 1 Story |
1948 |
925 |
1 Stories |
|