|
|
|
| Larry Stein Oklahoma County Assessor (405) 713-1200 - Public Access System |
|
|
|
|
|
|
| Real Property Display - Screen Produced 4/2/2026 7:13:34 PM | ||||
|---|---|---|---|---|
| Account: R150486600 | Type: Residential | Location: |
344 BABB DR |
|
| Building Name/Occupant: |
|
MIDWEST CITY |
||
| Owner Name 1: | JAHA NUREDIN & ADELINA |
Parcel PIN#: |
1437-15-048-6600 |
|
| Owner Name 2: | 1/4 section #: |
1437 |
||
| Owner Name 3: | Parent Acct: |
|
||
| Billing Address: | 187 PRAIRIE RUN | Tax District: |
|
|
| City, State, Zip | EDMOND, OK 73034-2362 | School System: |
Mid-Del #52 |
|
|
Country: (If noted) |
Land Size: |
0.1983 Acres |
||
|
Land Value: 22,032 |
|
|||
|
Sect 10-T11N-R2W Qtr NE |
COUNTRY ESTATES ADD
Block
011
Lot
012
|
|||
| Full Legal Description: COUNTRY ESTATES ADD 011 012 |
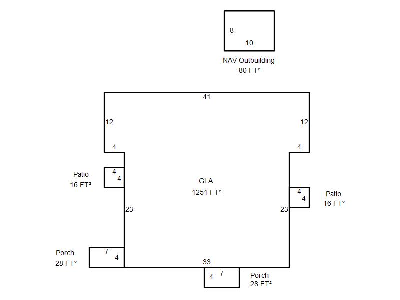
| Photo & Sketch (if available) | Comp Sales (ordered by relevancy) |
|
||||||||||||||||||
|
||||||||||||||||||||
| Value History (*The County Treasurer 405-713-1300 posts & collects actual tax amounts. Contact information HERE) | |||||||||||||
|---|---|---|---|---|---|---|---|---|---|---|---|---|---|
| Year | Market Value | Taxable Mkt Value | Gross Assessed | Exemption | Net Assessed | Millage | Est. Tax | Tax Savings | |||||
|
2026 |
122,000 |
88,644 |
9,750 |
0 |
9,750 |
119.58 |
$1,166 |
$439 |
|||||
|
2025 |
120,500 |
84,423 |
9,286 |
0 |
9,286 |
119.58 |
$1,110 |
$475 |
|||||
|
2024 |
115,000 |
80,403 |
8,844 |
0 |
8,844 |
122.51 |
$1,084 |
$466 |
|||||
|
2023 |
106,000 |
76,575 |
8,423 |
0 |
8,423 |
117.71 |
$992 |
$381 |
|||||
|
2022 |
92,500 |
72,929 |
8,022 |
0 |
8,022 |
116.64 |
$936 |
$251 |
|||||
| Property Account Status/Adjustments/Exemptions | ||
|---|---|---|
| Account # | Exemption Description | Amount |
|
R150486600 |
5% Capped Account |
0 |
| Property Deed Transaction History (Recorded in the County Clerk's Office) | |||||||
|---|---|---|---|---|---|---|---|
| Date | Type | Book | Page | Price | Grantor | Grantee | |
|
5/23/2016 |
|
Deeds |
$40,000 |
HARRINGTON ROBERT A CO TRS ETAL HARRINGTON ROBERT A REV LIV |
JAHA NUREDIN & ADELINA |
||
|
3/16/2016 |
|
Deeds |
$0 |
HARRINGTON ROBERT A |
HARRINGTON ROBERT A CO TRS ETAL HARRINGTON ROBERT A REV LIV |
||
|
10/1/1983 |
|
Historical |
$0 |
|
HARRINGTON ROBERT A |
||
| Last Mailed Notice of Value (N.O.V.) Information/History | ||||||||
|---|---|---|---|---|---|---|---|---|
| Year | Date | Market Value | Taxable Market Value | Gross Assessed | Exemption | Net Assessed | ||
|
2026 |
02/06/2026 |
122,000 |
88,644 |
9,750 |
0 |
9,750 |
||
|
2025 |
01/31/2025 |
120,500 |
84,423 |
9,286 |
0 |
9,286 |
||
|
2024 |
01/22/2024 |
115,000 |
80,403 |
8,844 |
0 |
8,844 |
||
|
2023 |
01/23/2023 |
106,000 |
76,575 |
8,423 |
0 |
8,423 |
||
|
2022 |
02/22/2022 |
92,500 |
72,929 |
8,020 |
0 |
8,020 |
||
| Property Building Permit History | |||||||||||
|---|---|---|---|---|---|---|---|---|---|---|---|
| Issued | Permit # | Provided by | Bldg # | Description | Est Construction Cost | Status | |||||
| No Building Permit records returned. | |||||||||||
| Click button on building number to access detailed information: | ||||||
|---|---|---|---|---|---|---|
| Bldg # | Vacant/Improved Land | Bldg Description | Year Built | SqFt | # Stories | |
|
1 |
Improved |
Duplex One Story |
1948 |
1,251 |
1 Stories |
|