|
|
|
| Larry Stein Oklahoma County Assessor (405) 713-1200 - Public Access System |
|
|
|
|
|
|
| Real Property Display - Screen Produced 4/2/2026 7:14:37 PM | ||||
|---|---|---|---|---|
| Account: R150487000 | Type: Residential | Location: |
711 N KEY BLVD |
|
| Building Name/Occupant: |
|
MIDWEST CITY |
||
| Owner Name 1: | PAC CORPORATION |
Parcel PIN#: |
1437-15-048-7000 |
|
| Owner Name 2: | 1/4 section #: |
1437 |
||
| Owner Name 3: | Parent Acct: |
|
||
| Billing Address: | 6904 E RENO AVE | Tax District: |
|
|
| City, State, Zip | MIDWEST CITY , OK 73110 | School System: |
Mid-Del #52 |
|
|
Country: (If noted) |
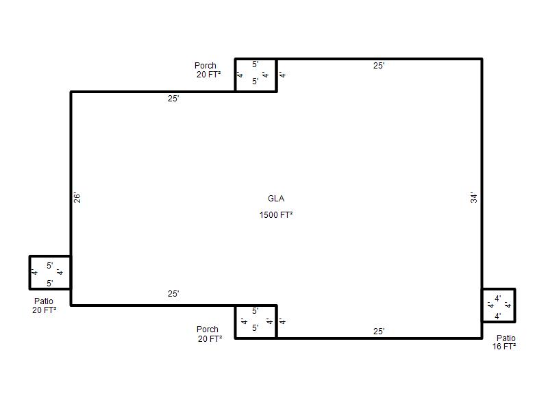
Land Size: |
0.2738 Acres |
||
|
Land Value: 30,409 |
|
|||
|
Sect 10-T11N-R2W Qtr NE |
COUNTRY ESTATES ADD
Block
013
Lot
001
|
|||
| Full Legal Description: COUNTRY ESTATES ADD 013 001 |
| Photo & Sketch (if available) | Comp Sales (ordered by relevancy) |
|
||||||||||||||||||
|
||||||||||||||||||||
| Value History (*The County Treasurer 405-713-1300 posts & collects actual tax amounts. Contact information HERE) | |||||||||||||
|---|---|---|---|---|---|---|---|---|---|---|---|---|---|
| Year | Market Value | Taxable Mkt Value | Gross Assessed | Exemption | Net Assessed | Millage | Est. Tax | Tax Savings | |||||
|
2026 |
136,500 |
93,602 |
10,295 |
0 |
10,295 |
119.58 |
$1,231 |
$564 |
|||||
|
2025 |
134,000 |
89,145 |
9,805 |
0 |
9,805 |
119.58 |
$1,173 |
$590 |
|||||
|
2024 |
127,500 |
84,900 |
9,338 |
0 |
9,338 |
122.51 |
$1,144 |
$574 |
|||||
|
2023 |
118,500 |
80,858 |
8,893 |
0 |
8,893 |
117.71 |
$1,047 |
$487 |
|||||
|
2022 |
103,500 |
77,008 |
8,470 |
0 |
8,470 |
116.64 |
$988 |
$340 |
|||||
| Property Account Status/Adjustments/Exemptions | ||
|---|---|---|
| Account # | Exemption Description | Amount |
|
R150487000 |
5% Capped Account |
0 |
| Property Deed Transaction History (Recorded in the County Clerk's Office) | |||||||
|---|---|---|---|---|---|---|---|
| Date | Type | Book | Page | Price | Grantor | Grantee | |
|
5/4/2016 |
|
Hmstd Off & |
$0 |
HEARN INVESTMENTS CORP |
PAC CORPORATION |
||
|
6/12/1992 |
|
Historical |
$19,000 |
FOSTER E KATHRINE |
HEARN INVESTMENTS CORPORATION |
||
|
3/23/1990 |
|
Historical |
$0 |
RAY JOE A & E KATHRINE |
FOSTER E KATHRINE |
||
|
6/1/1975 |
|
Historical |
$0 |
|
RAY JOE A & ELSIE K |
||
| Last Mailed Notice of Value (N.O.V.) Information/History | ||||||||
|---|---|---|---|---|---|---|---|---|
| Year | Date | Market Value | Taxable Market Value | Gross Assessed | Exemption | Net Assessed | ||
|
2026 |
02/06/2026 |
136,500 |
93,602 |
10,295 |
0 |
10,295 |
||
|
2025 |
01/31/2025 |
134,000 |
89,145 |
9,805 |
0 |
9,805 |
||
|
2024 |
01/22/2024 |
127,500 |
84,900 |
9,338 |
0 |
9,338 |
||
|
2023 |
01/23/2023 |
118,500 |
80,858 |
8,893 |
0 |
8,893 |
||
|
2022 |
02/22/2022 |
103,500 |
77,008 |
8,470 |
0 |
8,470 |
||
| Property Building Permit History | |||||||||||
|---|---|---|---|---|---|---|---|---|---|---|---|
| Issued | Permit # | Provided by | Bldg # | Description | Est Construction Cost | Status | |||||
| No Building Permit records returned. | |||||||||||
| Click button on building number to access detailed information: | ||||||
|---|---|---|---|---|---|---|
| Bldg # | Vacant/Improved Land | Bldg Description | Year Built | SqFt | # Stories | |
|
1 |
Improved |
Duplex One Story |
1948 |
1,500 |
1 Stories |
|