|
|
|
| Larry Stein Oklahoma County Assessor (405) 713-1200 - Public Access System |
|
|
|
|
|
|
| Real Property Display - Screen Produced 4/2/2026 7:14:37 PM | ||||
|---|---|---|---|---|
| Account: R150487050 | Type: Residential | Location: |
703 N KEY BLVD |
|
| Building Name/Occupant: |
|
MIDWEST CITY |
||
| Owner Name 1: | AVANT REALTY LLC |
Parcel PIN#: |
1437-15-048-7050 |
|
| Owner Name 2: | 1/4 section #: |
1437 |
||
| Owner Name 3: | Parent Acct: |
|
||
| Billing Address: | 9828 NE 23RD ST | Tax District: |
|
|
| City, State, Zip | OKLAHOMA CITY, OK 73141-4208 | School System: |
Mid-Del #52 |
|
|
Country: (If noted) |
Land Size: |
0.2174 Acres |
||
|
Land Value: 24,154 |
|
|||
|
Sect 10-T11N-R2W Qtr NE |
COUNTRY ESTATES ADD
Block
013
Lot
003
|
|||
| Full Legal Description: COUNTRY ESTATES ADD 013 003 |
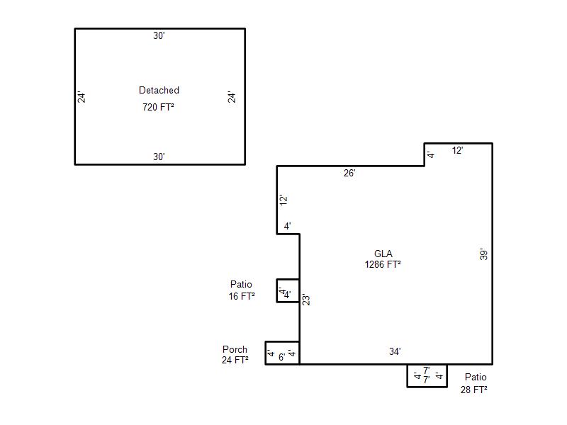
| Photo & Sketch (if available) | Comp Sales (ordered by relevancy) |
|
||||||||||||||||||
|
||||||||||||||||||||
| Value History (*The County Treasurer 405-713-1300 posts & collects actual tax amounts. Contact information HERE) | |||||||||||||
|---|---|---|---|---|---|---|---|---|---|---|---|---|---|
| Year | Market Value | Taxable Mkt Value | Gross Assessed | Exemption | Net Assessed | Millage | Est. Tax | Tax Savings | |||||
|
2026 |
134,000 |
134,000 |
14,740 |
0 |
14,740 |
119.58 |
$1,763 |
$0 |
|||||
|
2025 |
129,500 |
129,500 |
14,245 |
0 |
14,245 |
119.58 |
$1,703 |
$0 |
|||||
|
2024 |
125,000 |
77,057 |
8,475 |
0 |
8,475 |
122.51 |
$1,038 |
$646 |
|||||
|
2023 |
115,000 |
73,388 |
8,072 |
0 |
8,072 |
117.71 |
$950 |
$539 |
|||||
|
2022 |
102,000 |
69,894 |
7,688 |
0 |
7,688 |
116.64 |
$897 |
$412 |
|||||
| Property Account Status/Adjustments/Exemptions | ||
|---|---|---|
| Account # | Exemption Description | Amount |
|
R150487050 |
5% Capped Account |
0 |
| Property Deed Transaction History (Recorded in the County Clerk's Office) | |||||||
|---|---|---|---|---|---|---|---|
| Date | Type | Book | Page | Price | Grantor | Grantee | |
|
4/3/2024 |
|
Deeds |
$135,000 |
CHEEK MICHAEL KIRBY |
AVANT REALTY LLC |
||
|
1/28/2019 |
|
Hmstd Off & |
$0 |
CHEEK NORMA J 2008 REV TRUST |
CHEEK MICHAEL KIRBY |
||
|
7/10/2008 |
|
Deeds |
$0 |
CHEEK NORMA J |
CHEEK NORMA J 2008 REV TRUST |
||
|
2/1/1976 |
|
Historical |
$0 |
|
CHEEK GEO A JR & NORMA J |
||
| Last Mailed Notice of Value (N.O.V.) Information/History | ||||||||
|---|---|---|---|---|---|---|---|---|
| Year | Date | Market Value | Taxable Market Value | Gross Assessed | Exemption | Net Assessed | ||
|
2026 |
02/06/2026 |
134,000 |
134,000 |
14,740 |
0 |
14,740 |
||
|
2025 |
01/31/2025 |
129,500 |
129,500 |
14,245 |
0 |
14,245 |
||
|
2024 |
01/22/2024 |
125,000 |
77,057 |
8,475 |
0 |
8,475 |
||
|
2023 |
01/23/2023 |
115,000 |
73,388 |
8,072 |
0 |
8,072 |
||
|
2022 |
02/22/2022 |
102,000 |
69,894 |
7,687 |
0 |
7,687 |
||
| Property Building Permit History | |||||||||||
|---|---|---|---|---|---|---|---|---|---|---|---|
| Issued | Permit # | Provided by | Bldg # | Description | Est Construction Cost | Status | |||||
| No Building Permit records returned. | |||||||||||
| Click button on building number to access detailed information: | ||||||
|---|---|---|---|---|---|---|
| Bldg # | Vacant/Improved Land | Bldg Description | Year Built | SqFt | # Stories | |
|
1 |
Improved |
Duplex One Story |
1948 |
1,286 |
1 Stories |
|