|
|
|
| Larry Stein Oklahoma County Assessor (405) 713-1200 - Public Access System |
|
|
|
|
|
|
| Real Property Display - Screen Produced 4/4/2026 12:19:43 AM | ||||
|---|---|---|---|---|
| Account: R129841280 | Type: Residential | Location: |
13604 PRAIRIE VIEW LN |
|
| Building Name/Occupant: |
|
OKLAHOMA CITY |
||
| Owner Name 1: | GRIMES WILLIAM JR |
Parcel PIN#: |
3864-12-984-1280 |
|
| Owner Name 2: | 1/4 section #: |
3864 |
||
| Owner Name 3: | Parent Acct: |
|
||
| Billing Address: | 13604 PRAIRIE VIEW LN | Tax District: |
|
|
| City, State, Zip | OKLAHOMA CITY, OK 73142 | School System: |
Deer Creek #6 |
|
|
Country: (If noted) |
Land Size: |
0.1571 Acres |
||
|
Land Value: 45,678 |
|
|||
|
Sect 16-T13N-R4W Qtr NW |
WESTLAKE BLKS 23 & 24
Block
023
Lot
029
|
|||
| Full Legal Description: WESTLAKE BLKS 23 & 24 023 029 ALL LOT 29 AND PT LOT 28 BEG SE/C LOT 28 TH WLY112.42FT SLY LEFT ON A CURVE 30.69FT TO SW/C LOT 28 NELY101.80FT TO BEG |
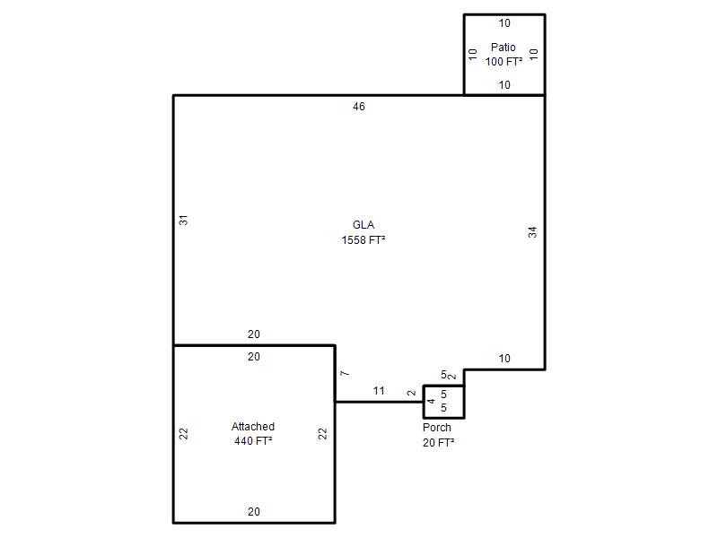
| Photo & Sketch (if available) | Comp Sales (ordered by relevancy) |
|
||||||||||||||||||
|
||||||||||||||||||||
| Value History (*The County Treasurer 405-713-1300 posts & collects actual tax amounts. Contact information HERE) | |||||||||||||
|---|---|---|---|---|---|---|---|---|---|---|---|---|---|
| Year | Market Value | Taxable Mkt Value | Gross Assessed | Exemption | Net Assessed | Millage | Est. Tax | Tax Savings | |||||
|
2026 |
234,500 |
234,500 |
25,795 |
0 |
25,795 |
129.51 |
$3,341 |
$0 |
|||||
|
2025 |
234,000 |
234,000 |
25,740 |
0 |
25,740 |
129.51 |
$3,334 |
$0 |
|||||
|
2024 |
228,500 |
225,750 |
24,832 |
0 |
24,832 |
131.12 |
$3,256 |
$40 |
|||||
|
2023 |
215,000 |
215,000 |
23,650 |
0 |
23,650 |
131.55 |
$3,111 |
$0 |
|||||
|
2022 |
214,500 |
214,500 |
23,595 |
0 |
23,595 |
130.27 |
$3,074 |
$0 |
|||||
| Property Account Status/Adjustments/Exemptions | ||
|---|---|---|
| Account # | Exemption Description | Amount |
|
R129841280 |
5% Capped Account |
0 |
| Property Deed Transaction History (Recorded in the County Clerk's Office) | ||||||||||
|---|---|---|---|---|---|---|---|---|---|---|
| Date | Type | Book | Page | Price | Grantor | Grantee | ||||
|
12/21/2021 |
|
Deeds |
$217,000 |
D & L PROPERTIES LLC |
GRIMES WILLIAM JR |
|||||
|
12/22/2003 |
|
Other |
$0 |
MADDOUX DON & LINDA |
D & L PROPERTIES LLC |
|||||
|
10/17/2003 |
|
Deeds |
$117,500 |
MICHAEL STEVEN C & JENNIFER A |
MADDOUX DON & LINDA |
|||||
|
6/21/2003 |
|
Hmstd Off & |
$0 |
MICHAEL STEVEN C & JENNIFER A |
MICHAEL STEVEN C & JENNIFER A |
|||||
|
2/6/1998 |
|
Historical |
$98,500 |
BELL CORPORATION INC |
MICHAEL STEVEN C & JENNIFER A |
|||||
| Last Mailed Notice of Value (N.O.V.) Information/History | ||||||||
|---|---|---|---|---|---|---|---|---|
| Year | Date | Market Value | Taxable Market Value | Gross Assessed | Exemption | Net Assessed | ||
|
2026 |
02/23/2026 |
234,500 |
234,500 |
25,795 |
0 |
25,795 |
||
|
2025 |
02/14/2025 |
234,000 |
234,000 |
25,740 |
0 |
25,740 |
||
|
2024 |
02/13/2024 |
228,500 |
225,750 |
24,832 |
0 |
24,832 |
||
|
2023 |
02/14/2023 |
215,000 |
215,000 |
23,650 |
0 |
23,650 |
||
|
2022 |
03/15/2022 |
214,500 |
214,500 |
23,595 |
0 |
23,595 |
||
| Property Building Permit History | ||||||
|---|---|---|---|---|---|---|
| Issued | Permit # | Provided by | Bldg # | Description | Est Construction Cost | Status |
|
9/17/1997 |
10227179 |
OKLAHOMA CITY |
1 |
Main Dwellin |
100,000 |
Inactive |
| Click button on building number to access detailed information: | ||||||
|---|---|---|---|---|---|---|
| Bldg # | Vacant/Improved Land | Bldg Description | Year Built | SqFt | # Stories | |
|
1 |
Improved |
Ranch 1 Story |
1997 |
1,558 |
1 Stories |
|