|
|
|
| Larry Stein Oklahoma County Assessor (405) 713-1200 - Public Access System |
|
|
|
|
|
|
| Real Property Display - Screen Produced 4/3/2026 8:41:58 PM | ||||
|---|---|---|---|---|
| Account: R100077110 | Type: Residential | Location: |
11625 ROCKY WAY |
|
| Building Name/Occupant: |
|
OKLAHOMA CITY |
||
| Owner Name 1: | EVANS STACY LEA |
Parcel PIN#: |
3877-10-007-7110 |
|
| Owner Name 2: | 1/4 section #: |
3877 |
||
| Owner Name 3: | Parent Acct: |
|
||
| Billing Address: | 11625 ROCKY WAY | Tax District: |
|
|
| City, State, Zip | OKLAHOMA CITY, OK 73162-1630 | School System: |
Putnam City #1 |
|
|
Country: (If noted) |
Land Size: |
0.1901 Acres |
||
|
Land Value: 37,205 |
|
|||
|
Sect 20-T13N-R4W Qtr NE |
SUMMIT PLACE I
Block
007
Lot
012
|
|||
| Full Legal Description: SUMMIT PLACE I 007 012 |
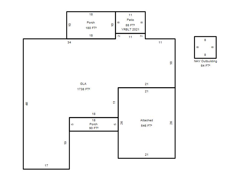
| Photo & Sketch (if available) | Comp Sales (ordered by relevancy) |
|
||||||||||||||||||
|
||||||||||||||||||||
| Value History (*The County Treasurer 405-713-1300 posts & collects actual tax amounts. Contact information HERE) | |||||||||||||
|---|---|---|---|---|---|---|---|---|---|---|---|---|---|
| Year | Market Value | Taxable Mkt Value | Gross Assessed | Exemption | Net Assessed | Millage | Est. Tax | Tax Savings | |||||
|
2026 |
214,500 |
214,500 |
23,595 |
1,000 |
22,595 |
123.17 |
$2,783 |
$123 |
|||||
|
2025 |
212,500 |
212,500 |
23,375 |
1,000 |
22,375 |
123.17 |
$2,756 |
$123 |
|||||
|
2024 |
208,500 |
208,500 |
22,935 |
0 |
22,935 |
122.30 |
$2,805 |
$0 |
|||||
|
2023 |
200,500 |
154,557 |
17,001 |
1,000 |
16,001 |
121.91 |
$1,951 |
$738 |
|||||
|
2022 |
162,000 |
150,056 |
16,505 |
1,000 |
15,505 |
123.41 |
$1,914 |
$286 |
|||||
| Property Account Status/Adjustments/Exemptions | ||
|---|---|---|
| Account # | Exemption Description | Amount |
|
R100077110 |
3% Cap Homestead |
0 |
|
R100077110 |
Homestead |
1,000 |
| Property Deed Transaction History (Recorded in the County Clerk's Office) | ||||||||||
|---|---|---|---|---|---|---|---|---|---|---|
| Date | Type | Book | Page | Price | Grantor | Grantee | ||||
|
6/12/2023 |
|
Deeds |
$225,000 |
DUNCAN KIMBERLY D |
EVANS STACY LEA |
|||||
|
7/29/2008 |
|
Deeds |
$140,000 |
NEUSCHAEFER ROBB A NEUSCHAEFER STACY L |
DUNCAN KIMBERLY D |
|||||
|
7/28/1999 |
|
Deeds |
$97,500 |
OLIVERAS MICHAEL A |
NEUSCHAEFER ROBB A |
|||||
|
1/6/1997 |
|
Historical |
$0 |
OLIVERAS MICHAEL A |
OLIVERAS MICHAEL A |
|||||
|
9/18/1996 |
|
Historical |
$43,000 |
NGUYEN HONG-HONG QUAN |
OLIVERAS MICHAEL A |
|||||
| Last Mailed Notice of Value (N.O.V.) Information/History | ||||||||
|---|---|---|---|---|---|---|---|---|
| Year | Date | Market Value | Taxable Market Value | Gross Assessed | Exemption | Net Assessed | ||
|
2026 |
02/23/2026 |
214,500 |
214,500 |
23,595 |
1,000 |
22,595 |
||
|
2025 |
02/14/2025 |
212,500 |
212,500 |
23,375 |
1,000 |
22,375 |
||
|
2024 |
02/13/2024 |
208,500 |
208,500 |
22,935 |
0 |
22,935 |
||
|
2023 |
02/14/2023 |
200,500 |
154,557 |
17,001 |
1,000 |
16,001 |
||
|
2022 |
03/15/2022 |
162,000 |
150,056 |
16,505 |
1,000 |
15,505 |
||
| Property Building Permit History | |||||||||||
|---|---|---|---|---|---|---|---|---|---|---|---|
| Issued | Permit # | Provided by | Bldg # | Description | Est Construction Cost | Status | |||||
| No Building Permit records returned. | |||||||||||
| Click button on building number to access detailed information: | ||||||
|---|---|---|---|---|---|---|
| Bldg # | Vacant/Improved Land | Bldg Description | Year Built | SqFt | # Stories | |
|
1 |
Improved |
Ranch 1 Story |
1982 |
1,738 |
1 Stories |
|