|
|
|
| Larry Stein Oklahoma County Assessor (405) 713-1200 - Public Access System |
|
|
|
|
|
|
| Real Property Display - Screen Produced 4/3/2026 8:41:58 PM | ||||
|---|---|---|---|---|
| Account: R100077210 | Type: Residential | Location: |
11630 SHASTA LN |
|
| Building Name/Occupant: |
|
OKLAHOMA CITY |
||
| Owner Name 1: | D ANTONIO CYNTHIA ROWE |
Parcel PIN#: |
3877-10-007-7210 |
|
| Owner Name 2: | 1/4 section #: |
3877 |
||
| Owner Name 3: | Parent Acct: |
|
||
| Billing Address: | 11630 SHASTA LN | Tax District: |
|
|
| City, State, Zip | OKLAHOMA CITY, OK 73162-1601 | School System: |
Putnam City #1 |
|
|
Country: (If noted) |
Land Size: |
0.1793 Acres |
||
|
Land Value: 34,364 |
|
|||
|
Sect 20-T13N-R4W Qtr NE |
SUMMIT PLACE I
Block
007
Lot
022
|
|||
| Full Legal Description: SUMMIT PLACE I 007 022 |
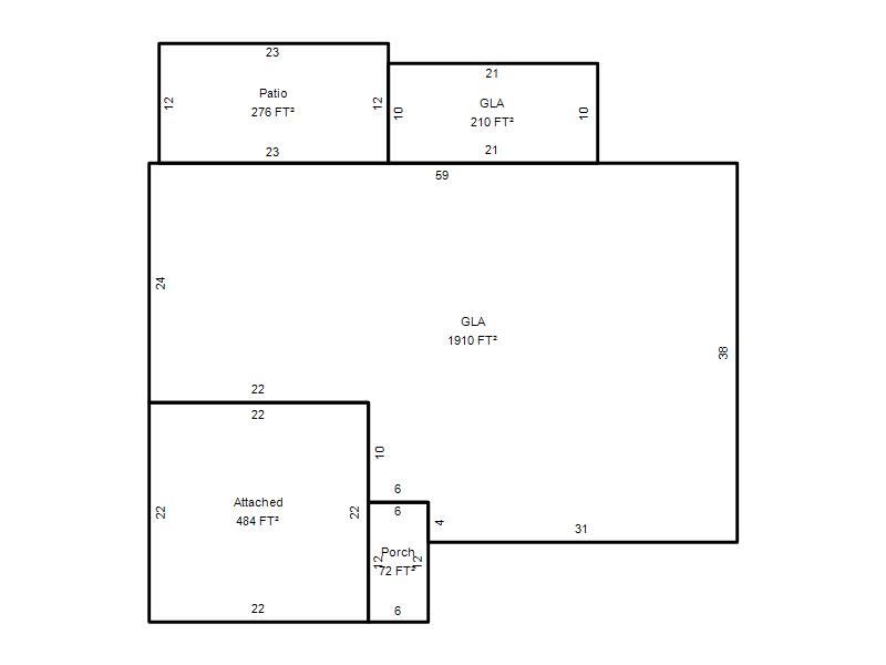
| Photo & Sketch (if available) | Comp Sales (ordered by relevancy) |
|
||||||||||||||||||
|
||||||||||||||||||||
| Value History (*The County Treasurer 405-713-1300 posts & collects actual tax amounts. Contact information HERE) | |||||||||||||
|---|---|---|---|---|---|---|---|---|---|---|---|---|---|
| Year | Market Value | Taxable Mkt Value | Gross Assessed | Exemption | Net Assessed | Millage | Est. Tax | Tax Savings | |||||
|
2026 |
243,000 |
211,733 |
23,290 |
0 |
23,290 |
123.17 |
$2,869 |
$424 |
|||||
|
2025 |
241,000 |
201,651 |
22,181 |
0 |
22,181 |
123.17 |
$2,732 |
$533 |
|||||
|
2024 |
237,000 |
192,049 |
21,124 |
0 |
21,124 |
122.30 |
$2,584 |
$605 |
|||||
|
2023 |
228,500 |
182,904 |
20,119 |
0 |
20,119 |
121.91 |
$2,453 |
$611 |
|||||
|
2022 |
186,000 |
174,195 |
19,161 |
0 |
19,161 |
123.41 |
$2,365 |
$160 |
|||||
| Property Account Status/Adjustments/Exemptions | ||
|---|---|---|
| Account # | Exemption Description | Amount |
|
R100077210 |
5% Capped Account |
0 |
| Property Deed Transaction History (Recorded in the County Clerk's Office) | ||||||||||
|---|---|---|---|---|---|---|---|---|---|---|
| Date | Type | Book | Page | Price | Grantor | Grantee | ||||
|
12/26/2012 |
|
Hmstd Off & |
$0 |
DODD BRENDA JOYCE |
D ANTONIO CYNTHIA ROWE |
|||||
|
10/4/2005 |
|
Deeds |
$138,000 |
RIDLEN RAYMOND F II |
D ANTONIO CYNTHIA ROWE |
|||||
|
10/4/2005 |
|
Deeds |
$25,000 |
D ANTONIO CYNTHIA ROWE |
DODD BRENDA JOYCE |
|||||
|
11/2/1995 |
|
Historical |
$0 |
RIDLEN RAYMOND F II & GENNIE L |
RIDLEN RAYMOND F II |
|||||
|
4/15/1993 |
|
Historical |
$70,000 |
CITICORP MORTGAGE INC |
RIDLEN RAYMOND F II & GENNIE L |
|||||
| Last Mailed Notice of Value (N.O.V.) Information/History | ||||||||
|---|---|---|---|---|---|---|---|---|
| Year | Date | Market Value | Taxable Market Value | Gross Assessed | Exemption | Net Assessed | ||
|
2026 |
02/23/2026 |
243,000 |
211,733 |
23,290 |
0 |
23,290 |
||
|
2025 |
02/14/2025 |
241,000 |
201,651 |
22,181 |
0 |
22,181 |
||
|
2024 |
02/13/2024 |
237,000 |
192,049 |
21,124 |
0 |
21,124 |
||
|
2023 |
02/14/2023 |
228,500 |
182,904 |
20,119 |
0 |
20,119 |
||
|
2022 |
03/15/2022 |
186,000 |
174,195 |
19,161 |
0 |
19,161 |
||
| Property Building Permit History | ||||||
|---|---|---|---|---|---|---|
| Issued | Permit # | Provided by | Bldg # | Description | Est Construction Cost | Status |
|
6/30/1999 |
10201173 |
OKLAHOMA CITY |
1 |
Add On |
32,500 |
Inactive |
| Click button on building number to access detailed information: | ||||||
|---|---|---|---|---|---|---|
| Bldg # | Vacant/Improved Land | Bldg Description | Year Built | SqFt | # Stories | |
|
1 |
Improved |
Ranch 1 Story |
1981 |
2,120 |
1 Stories |
|