|
|
|
| Larry Stein Oklahoma County Assessor (405) 713-1200 - Public Access System |
|
|
|
|
|
|
| Real Property Display - Screen Produced 4/2/2026 7:13:35 PM | ||||
|---|---|---|---|---|
| Account: R126361040 | Type: Residential | Location: |
11508 PLUM THICKET PL |
|
| Building Name/Occupant: |
|
OKLAHOMA CITY |
||
| Owner Name 1: | GRIMES R GERALD TRS |
Parcel PIN#: |
3882-12-636-1040 |
|
| Owner Name 2: | GRIMES R GERALD REV TRUST | 1/4 section #: |
3882 |
|
| Owner Name 3: | Parent Acct: |
|
||
| Billing Address: | 22631 MEYLER ST | Tax District: |
|
|
| City, State, Zip | TORRANCE, CA 90502 | School System: |
Putnam City #1 |
|
|
Country: (If noted) |
UNITED STATES |
Land Size: |
0.3333 Acres |
|
|
Land Value: 59,328 |
|
|||
|
Sect 21-T13N-R4W Qtr SE |
BLUE STEM LK SEC 7 PT B 20-22
Block
020
Lot
020
|
|||
| Full Legal Description: BLUE STEM LK SEC 7 PT B 20-22 020 020 |
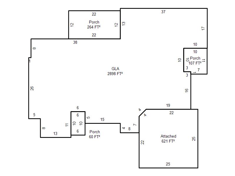
| Photo & Sketch (if available) | Comp Sales (ordered by relevancy) |
|
||||||||||||||||||
|
||||||||||||||||||||
| Value History (*The County Treasurer 405-713-1300 posts & collects actual tax amounts. Contact information HERE) | |||||||||||||
|---|---|---|---|---|---|---|---|---|---|---|---|---|---|
| Year | Market Value | Taxable Mkt Value | Gross Assessed | Exemption | Net Assessed | Millage | Est. Tax | Tax Savings | |||||
|
2026 |
376,000 |
346,328 |
38,096 |
0 |
38,096 |
123.17 |
$4,692 |
$402 |
|||||
|
2025 |
371,500 |
329,837 |
36,281 |
0 |
36,281 |
123.17 |
$4,469 |
$564 |
|||||
|
2024 |
357,500 |
314,131 |
34,554 |
0 |
34,554 |
122.30 |
$4,226 |
$583 |
|||||
|
2023 |
358,500 |
299,173 |
32,908 |
1,000 |
31,908 |
121.91 |
$3,890 |
$917 |
|||||
|
2022 |
307,500 |
290,460 |
31,950 |
1,000 |
30,950 |
123.41 |
$3,820 |
$355 |
|||||
| Property Account Status/Adjustments/Exemptions | ||
|---|---|---|
| Account # | Exemption Description | Amount |
|
R126361040 |
5% Capped Account |
0 |
| Property Deed Transaction History (Recorded in the County Clerk's Office) | |||||||
|---|---|---|---|---|---|---|---|
| Date | Type | Book | Page | Price | Grantor | Grantee | |
|
12/18/2000 |
|
Deeds |
$0 |
GRIMES ROBERT GERALD |
GRIMES R GERALD TRS |
||
|
9/7/1994 |
|
Historical |
$225,000 |
HOLKE DAVID C & DIANE E |
GRIMES ROBERT GERALD |
||
|
11/4/1991 |
|
Historical |
$0 |
INVEST WEST INC |
HOLKE DAVID C & DIANE E |
||
|
9/20/1989 |
|
Historical |
$0 |
|
INVEST WEST INC |
||
| Last Mailed Notice of Value (N.O.V.) Information/History | ||||||||
|---|---|---|---|---|---|---|---|---|
| Year | Date | Market Value | Taxable Market Value | Gross Assessed | Exemption | Net Assessed | ||
|
2026 |
02/23/2026 |
376,000 |
346,328 |
38,096 |
0 |
38,096 |
||
|
2025 |
02/14/2025 |
371,500 |
329,837 |
36,281 |
0 |
36,281 |
||
|
2024 |
02/13/2024 |
357,500 |
308,148 |
33,896 |
1,000 |
32,896 |
||
|
2023 |
02/14/2023 |
358,500 |
299,173 |
32,908 |
1,000 |
31,908 |
||
|
2022 |
03/15/2022 |
307,500 |
290,460 |
31,950 |
1,000 |
30,950 |
||
| Property Building Permit History | ||||||
|---|---|---|---|---|---|---|
| Issued | Permit # | Provided by | Bldg # | Description | Est Construction Cost | Status |
|
5/11/1992 |
10214990 |
OKLAHOMA CITY |
1 |
Main Dwellin |
150,000 |
Inactive |
|
4/13/1992 |
10214989 |
OKLAHOMA CITY |
1 |
Other |
0 |
Inactive |
| Click button on building number to access detailed information: | ||||||
|---|---|---|---|---|---|---|
| Bldg # | Vacant/Improved Land | Bldg Description | Year Built | SqFt | # Stories | |
|
1 |
Improved |
Ranch 1 Story |
1992 |
2,898 |
1 Stories |
|