|
|
|
| Larry Stein Oklahoma County Assessor (405) 713-1200 - Public Access System |
|
|
|
|
|
|
| Real Property Display - Screen Produced 4/9/2026 7:41:05 AM | ||||
|---|---|---|---|---|
| Account: R134990490 | Type: Residential | Location: |
4703 HEMLOCK LN |
|
| Building Name/Occupant: |
|
OKLAHOMA CITY |
||
| Owner Name 1: | GOICOCHEA JAIME |
Parcel PIN#: |
3885-13-499-0490 |
|
| Owner Name 2: | 1/4 section #: |
3885 |
||
| Owner Name 3: | Parent Acct: |
|
||
| Billing Address: | 4703 HEMLOCK LN | Tax District: |
|
|
| City, State, Zip | OKLAHOMA CITY, OK 73162 | School System: |
Oklahoma City #89 |
|
|
Country: (If noted) |
Land Size: |
0.0511 Acres |
||
|
Land Value: 21,583 |
|
|||
|
Sect 22-T13N-R4W Qtr NE |
THE ARBORS
Block
004
Lot
016
|
|||
| Full Legal Description: THE ARBORS 004 016 |
| Photo & Sketch (if available) | Comp Sales (ordered by relevancy) |
|
||||||||||||||||||
|
||||||||||||||||||||
| Value History (*The County Treasurer 405-713-1300 posts & collects actual tax amounts. Contact information HERE) | |||||||||||||
|---|---|---|---|---|---|---|---|---|---|---|---|---|---|
| Year | Market Value | Taxable Mkt Value | Gross Assessed | Exemption | Net Assessed | Millage | Est. Tax | Tax Savings | |||||
|
2026 |
194,500 |
178,391 |
19,622 |
1,000 |
18,622 |
122.90 |
$2,289 |
$341 |
|||||
|
2025 |
201,000 |
173,196 |
19,050 |
1,000 |
18,050 |
122.90 |
$2,219 |
$499 |
|||||
|
2024 |
202,500 |
168,152 |
18,496 |
1,000 |
17,496 |
123.89 |
$2,168 |
$592 |
|||||
|
2023 |
193,000 |
163,255 |
17,958 |
1,000 |
16,958 |
122.82 |
$2,083 |
$525 |
|||||
|
2022 |
158,500 |
158,500 |
17,435 |
0 |
17,435 |
117.63 |
$2,051 |
$0 |
|||||
| Property Account Status/Adjustments/Exemptions | ||
|---|---|---|
| Account # | Exemption Description | Amount |
|
R134990490 |
3% Cap Homestead |
0 |
|
R134990490 |
Homestead |
1,000 |
| Property Deed Transaction History (Recorded in the County Clerk's Office) | |||||||
|---|---|---|---|---|---|---|---|
| Date | Type | Book | Page | Price | Grantor | Grantee | |
|
8/24/2021 |
|
Deeds |
$157,500 |
CONWAY MATTHEW A |
GOICOCHEA JAIME |
||
|
10/29/2015 |
|
Deeds |
$120,000 |
COX WILLIAM C SR |
CONWAY MATTHEW A |
||
|
5/16/2005 |
|
Deeds |
$99,000 |
SELMON JOYCE A |
COX WILLIAM C SR |
||
|
10/5/1993 |
|
Historical |
$64,000 |
BORROR JANET R |
SELMON JOYCE A |
||
|
11/1/1982 |
|
Historical |
$0 |
|
BORROR JANET R |
||
| Last Mailed Notice of Value (N.O.V.) Information/History | ||||||||
|---|---|---|---|---|---|---|---|---|
| Year | Date | Market Value | Taxable Market Value | Gross Assessed | Exemption | Net Assessed | ||
|
2026 |
02/23/2026 |
194,500 |
178,391 |
19,622 |
1,000 |
18,622 |
||
|
2025 |
02/14/2025 |
201,000 |
173,196 |
19,050 |
1,000 |
18,050 |
||
|
2024 |
02/13/2024 |
202,500 |
168,152 |
18,496 |
1,000 |
17,496 |
||
|
2023 |
02/14/2023 |
193,000 |
163,255 |
17,958 |
1,000 |
16,958 |
||
|
2022 |
03/15/2022 |
158,500 |
158,500 |
17,435 |
0 |
17,435 |
||
| Property Building Permit History | |||||||||||
|---|---|---|---|---|---|---|---|---|---|---|---|
| Issued | Permit # | Provided by | Bldg # | Description | Est Construction Cost | Status | |||||
| No Building Permit records returned. | |||||||||||
| Click button on building number to access detailed information: | ||||||
|---|---|---|---|---|---|---|
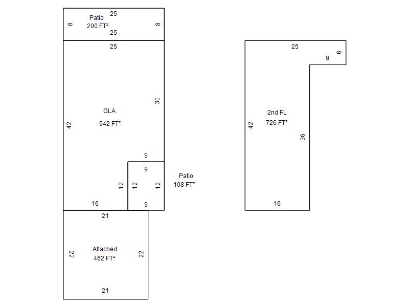
| Bldg # | Vacant/Improved Land | Bldg Description | Year Built | SqFt | # Stories | |
|
1 |
Improved |
Townhouse Multiple Story |
1982 |
1,668 |
2 Stories |
|