|
|
|
| Larry Stein Oklahoma County Assessor (405) 713-1200 - Public Access System |
|
|
|
|
|
|
| Real Property Display - Screen Produced 4/10/2026 4:02:14 AM | ||||
|---|---|---|---|---|
| Account: R171291310 | Type: Residential | Location: |
11000 N ANN ARBOR AVE |
|
| Building Name/Occupant: |
|
OKLAHOMA CITY |
||
| Owner Name 1: | MILLER JEFFREY B & KENDRA D |
Parcel PIN#: |
3887-17-129-1310 |
|
| Owner Name 2: | 1/4 section #: |
3887 |
||
| Owner Name 3: | Parent Acct: |
|
||
| Billing Address: | 11000 N ANN ARBOR AVE | Tax District: |
|
|
| City, State, Zip | OKLAHOMA CITY, OK 73162-5917 | School System: |
Putnam City #1 |
|
|
Country: (If noted) |
Land Size: |
0.1980 Acres |
||
|
Land Value: 37,950 |
|
|||
|
Sect 22-T13N-R4W Qtr SW |
BLUFF CREEK SEC 2
Block
009
Lot
049
|
|||
| Full Legal Description: BLUFF CREEK SEC 2 009 049 |
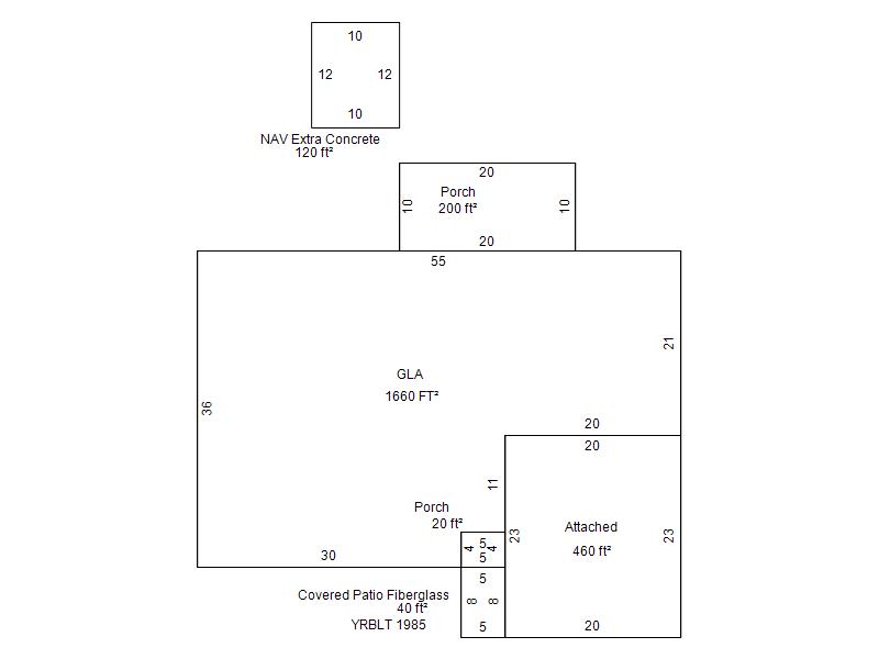
| Photo & Sketch (if available) | Comp Sales (ordered by relevancy) |
|
||||||||||||||||||
|
||||||||||||||||||||
| Value History (*The County Treasurer 405-713-1300 posts & collects actual tax amounts. Contact information HERE) | |||||||||||||
|---|---|---|---|---|---|---|---|---|---|---|---|---|---|
| Year | Market Value | Taxable Mkt Value | Gross Assessed | Exemption | Net Assessed | Millage | Est. Tax | Tax Savings | |||||
| No PropertyValuation records returned. | |||||||||||||
| Property Account Status/Adjustments/Exemptions | ||
|---|---|---|
| Account # | Exemption Description | Amount |
|
R171291310 |
3% Cap Homestead |
0 |
|
R171291310 |
Homestead |
1,000 |
| Property Deed Transaction History (Recorded in the County Clerk's Office) | ||||||||||
|---|---|---|---|---|---|---|---|---|---|---|
| Date | Type | Book | Page | Price | Grantor | Grantee | ||||
|
6/25/2009 |
|
Deeds |
$0 |
MILLER JEFFREY B KIDD KENDRA |
MILLER JEFFREY B & KENDRA D |
|||||
|
7/14/2004 |
|
Deeds |
$110,000 |
RUTTER DONNA M |
MILLER JEFFREY B KIDD KENDRA |
|||||
|
1/8/1996 |
|
Historical |
$0 |
RUTTER DONNA M |
RUTTER DONNA M |
|||||
|
11/21/1989 |
|
Historical |
$0 |
RUTTER DONNA |
RUTTER DONNA M |
|||||
|
10/31/1989 |
|
Historical |
$0 |
RUTTER JOHN L & DONNA M |
RUTTER DONNA |
|||||
| Last Mailed Notice of Value (N.O.V.) Information/History | ||||||||
|---|---|---|---|---|---|---|---|---|
| Year | Date | Market Value | Taxable Market Value | Gross Assessed | Exemption | Net Assessed | ||
| No Notice of Value N.O.V. records returned. | ||||||||
| Property Building Permit History | |||||||||||
|---|---|---|---|---|---|---|---|---|---|---|---|
| Issued | Permit # | Provided by | Bldg # | Description | Est Construction Cost | Status | |||||
| No Building Permit records returned. | |||||||||||
| Click button on building number to access detailed information: | ||||||
|---|---|---|---|---|---|---|
| Bldg # | Vacant/Improved Land | Bldg Description | Year Built | SqFt | # Stories | |
|
1 |
Improved |
Ranch 1 Story |
1980 |
1,660 |
1 Stories |
|