|
|
|
| Larry Stein Oklahoma County Assessor (405) 713-1200 - Public Access System |
|
|
|
|
|
|
| Real Property Display - Screen Produced 4/6/2026 4:08:30 AM | ||||
|---|---|---|---|---|
| Account: R171291320 | Type: Residential | Location: |
10912 N ANN ARBOR AVE |
|
| Building Name/Occupant: |
|
OKLAHOMA CITY |
||
| Owner Name 1: | BEDWELL MICHAEL D |
Parcel PIN#: |
3887-17-129-1320 |
|
| Owner Name 2: | 1/4 section #: |
3887 |
||
| Owner Name 3: | Parent Acct: |
|
||
| Billing Address: | 10912 N ANN ARBOR AVE | Tax District: |
|
|
| City, State, Zip | OKLAHOMA CITY, OK 73162-5915 | School System: |
Putnam City #1 |
|
|
Country: (If noted) |
Land Size: |
0.1980 Acres |
||
|
Land Value: 37,950 |
|
|||
|
Sect 22-T13N-R4W Qtr SW |
BLUFF CREEK SEC 2
Block
009
Lot
050
|
|||
| Full Legal Description: BLUFF CREEK SEC 2 009 050 |
| Photo & Sketch (if available) | Comp Sales (ordered by relevancy) |
|
||||||||||||||||||
|
||||||||||||||||||||
| Value History (*The County Treasurer 405-713-1300 posts & collects actual tax amounts. Contact information HERE) | |||||||||||||
|---|---|---|---|---|---|---|---|---|---|---|---|---|---|
| Year | Market Value | Taxable Mkt Value | Gross Assessed | Exemption | Net Assessed | Millage | Est. Tax | Tax Savings | |||||
|
2026 |
242,000 |
212,403 |
23,363 |
0 |
23,363 |
123.17 |
$2,878 |
$401 |
|||||
|
2025 |
236,000 |
202,289 |
22,251 |
0 |
22,251 |
123.17 |
$2,741 |
$457 |
|||||
|
2024 |
232,500 |
192,657 |
21,192 |
0 |
21,192 |
122.30 |
$2,592 |
$536 |
|||||
|
2023 |
224,000 |
183,483 |
20,183 |
0 |
20,183 |
121.91 |
$2,461 |
$543 |
|||||
|
2022 |
196,500 |
174,746 |
19,221 |
0 |
19,221 |
123.41 |
$2,372 |
$295 |
|||||
| Property Account Status/Adjustments/Exemptions | ||
|---|---|---|
| Account # | Exemption Description | Amount |
|
R171291320 |
5% Capped Account |
0 |
| Property Deed Transaction History (Recorded in the County Clerk's Office) | |||||||
|---|---|---|---|---|---|---|---|
| Date | Type | Book | Page | Price | Grantor | Grantee | |
|
10/23/2009 |
|
Deeds |
$134,000 |
GUPTA VANDANA & AJAY K |
BEDWELL MICHAEL D |
||
|
11/26/2003 |
|
Deeds |
$124,000 |
BLACK VIRGIL C & MARSHA K |
GUPTA VANDANA & AJAY K |
||
|
6/1/1982 |
|
Historical |
$0 |
|
BLACK VIRGIL C & MARSHA K |
||
| Last Mailed Notice of Value (N.O.V.) Information/History | ||||||||
|---|---|---|---|---|---|---|---|---|
| Year | Date | Market Value | Taxable Market Value | Gross Assessed | Exemption | Net Assessed | ||
|
2026 |
02/23/2026 |
242,000 |
212,403 |
23,363 |
0 |
23,363 |
||
|
2025 |
02/14/2025 |
236,000 |
202,289 |
22,251 |
0 |
22,251 |
||
|
2024 |
02/13/2024 |
232,500 |
192,657 |
21,192 |
0 |
21,192 |
||
|
2023 |
02/14/2023 |
224,000 |
183,483 |
20,183 |
0 |
20,183 |
||
|
2022 |
03/15/2022 |
196,500 |
174,746 |
19,221 |
0 |
19,221 |
||
| Property Building Permit History | |||||||||||
|---|---|---|---|---|---|---|---|---|---|---|---|
| Issued | Permit # | Provided by | Bldg # | Description | Est Construction Cost | Status | |||||
| No Building Permit records returned. | |||||||||||
| Click button on building number to access detailed information: | ||||||
|---|---|---|---|---|---|---|
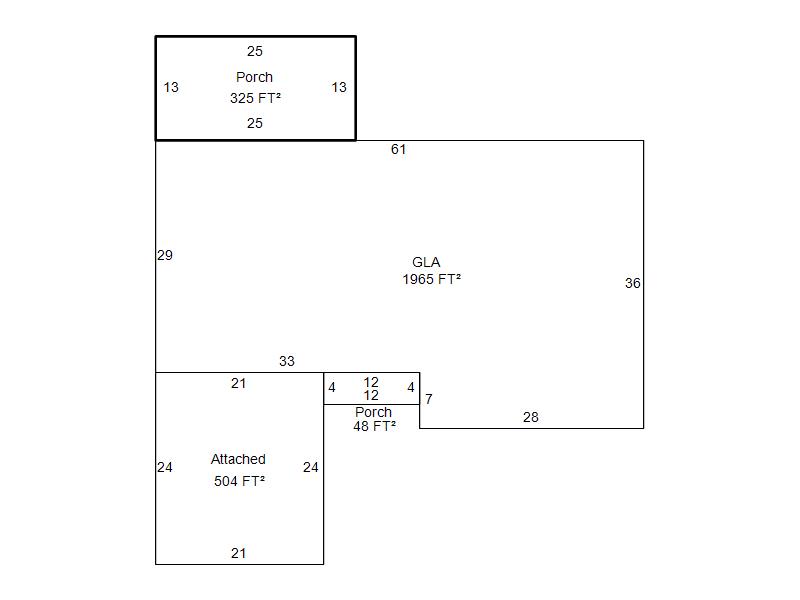
| Bldg # | Vacant/Improved Land | Bldg Description | Year Built | SqFt | # Stories | |
|
1 |
Improved |
Ranch 1 Story |
1980 |
1,965 |
1 Stories |
|