|
|
|
| Larry Stein Oklahoma County Assessor (405) 713-1200 - Public Access System |
|
|
|
|
|
|
| Real Property Display - Screen Produced 4/9/2026 9:06:59 AM | ||||
|---|---|---|---|---|
| Account: R122571020 | Type: Residential | Location: |
4108 OLD FARM RD |
|
| Building Name/Occupant: |
|
OKLAHOMA CITY |
||
| Owner Name 1: | LINKE WILLIAM C TRS |
Parcel PIN#: |
3892-12-257-1020 |
|
| Owner Name 2: | LINKE WILLIAM C LIV TRUST | 1/4 section #: |
3892 |
|
| Owner Name 3: | Parent Acct: |
|
||
| Billing Address: | 4108 OLD FARM RD | Tax District: |
|
|
| City, State, Zip | OKLAHOMA CITY, OK 73120 | School System: |
Oklahoma City #89 |
|
|
Country: (If noted) |
Land Size: |
0.2045 Acres |
||
|
Land Value: 48,092 |
|
|||
|
Sect 23-T13N-R4W Qtr NW |
THE ARBORS BLKS 17 & 18
Block
017
Lot
003
|
|||
| Full Legal Description: THE ARBORS BLKS 17 & 18 017 003 |
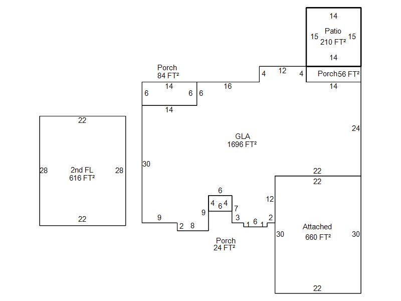
| Photo & Sketch (if available) | Comp Sales (ordered by relevancy) |
|
||||||||||||||||||
|
||||||||||||||||||||
| Value History (*The County Treasurer 405-713-1300 posts & collects actual tax amounts. Contact information HERE) | |||||||||||||
|---|---|---|---|---|---|---|---|---|---|---|---|---|---|
| Year | Market Value | Taxable Mkt Value | Gross Assessed | Exemption | Net Assessed | Millage | Est. Tax | Tax Savings | |||||
|
2026 |
337,000 |
286,778 |
31,545 |
0 |
31,545 |
122.90 |
$3,877 |
$679 |
|||||
|
2025 |
327,500 |
273,122 |
30,042 |
0 |
30,042 |
122.90 |
$3,692 |
$735 |
|||||
|
2024 |
311,500 |
260,117 |
28,612 |
0 |
28,612 |
123.89 |
$3,545 |
$700 |
|||||
|
2023 |
302,500 |
247,731 |
27,249 |
0 |
27,249 |
122.82 |
$3,347 |
$740 |
|||||
|
2022 |
249,500 |
235,935 |
25,952 |
0 |
25,952 |
117.63 |
$3,053 |
$176 |
|||||
| Property Account Status/Adjustments/Exemptions | ||||||
|---|---|---|---|---|---|---|
| Account # | Exemption Description | Amount | ||||
| No adjustment/exemption records returned. | ||||||
| Property Deed Transaction History (Recorded in the County Clerk's Office) | |||||||
|---|---|---|---|---|---|---|---|
| Date | Type | Book | Page | Price | Grantor | Grantee | |
|
2/25/2021 |
|
Hmstd Off & |
$ |
LINKE WILLIAM C & M COLLEEN |
LINKE WILLIAM C TRS |
||
|
6/22/1987 |
|
Historical |
$156,500 |
YOUNGBERG JOSEPH T & MARY C |
LINKE WILLIAM C & M COLLEEN |
||
|
12/1/1984 |
|
Historical |
$172,000 |
|
YOUNGBERG JOSEPH T & MARY C |
||
| Last Mailed Notice of Value (N.O.V.) Information/History | ||||||||
|---|---|---|---|---|---|---|---|---|
| Year | Date | Market Value | Taxable Market Value | Gross Assessed | Exemption | Net Assessed | ||
|
2026 |
02/23/2026 |
337,000 |
286,778 |
31,545 |
0 |
31,545 |
||
|
2025 |
02/14/2025 |
327,500 |
273,122 |
30,042 |
0 |
30,042 |
||
|
2024 |
02/13/2024 |
311,500 |
260,117 |
28,612 |
0 |
28,612 |
||
|
2023 |
02/14/2023 |
302,500 |
247,731 |
27,249 |
0 |
27,249 |
||
|
2022 |
03/15/2022 |
249,500 |
235,935 |
25,952 |
0 |
25,952 |
||
| Property Building Permit History | |||||||||||
|---|---|---|---|---|---|---|---|---|---|---|---|
| Issued | Permit # | Provided by | Bldg # | Description | Est Construction Cost | Status | |||||
| No Building Permit records returned. | |||||||||||
| Click button on building number to access detailed information: | ||||||
|---|---|---|---|---|---|---|
| Bldg # | Vacant/Improved Land | Bldg Description | Year Built | SqFt | # Stories | |
|
1 |
Improved |
1½ Story Fin |
1984 |
2,312 |
1.5 Stories |
|