|
|
|
| Larry Stein Oklahoma County Assessor (405) 713-1200 - Public Access System |
|
|
|
|
|
|
| Real Property Display - Screen Produced 4/9/2026 9:06:59 AM | ||||
|---|---|---|---|---|
| Account: R122571080 | Type: Residential | Location: |
4109 CANTLE CT |
|
| Building Name/Occupant: |
|
OKLAHOMA CITY |
||
| Owner Name 1: | LONG CINDY LOU |
Parcel PIN#: |
3892-12-257-1080 |
|
| Owner Name 2: | 1/4 section #: |
3892 |
||
| Owner Name 3: | Parent Acct: |
|
||
| Billing Address: | 4109 CANTLE CT | Tax District: |
|
|
| City, State, Zip | OKLAHOMA CITY, OK 73120-8031 | School System: |
Oklahoma City #89 |
|
|
Country: (If noted) |
Land Size: |
0.2031 Acres |
||
|
Land Value: 47,779 |
|
|||
|
Sect 23-T13N-R4W Qtr NW |
THE ARBORS BLKS 17 & 18
Block
017
Lot
000
|
|||
| Full Legal Description: THE ARBORS BLKS 17 & 18 017 000 PT LOTS 9 & 10 BEG SE/C LT 9 TH NW120.98FT SW79.39FT SELY111.36FT RIGHT ON CURVE 17.83FT LEFT ON CURVE 36.14FT RIGHT ONCURVE 23.73FT TO BEG |
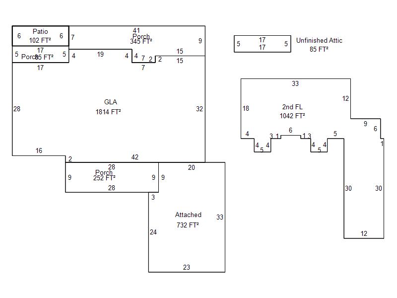
| Photo & Sketch (if available) | Comp Sales (ordered by relevancy) |
|
||||||||||||||||||
|
||||||||||||||||||||
| Value History (*The County Treasurer 405-713-1300 posts & collects actual tax amounts. Contact information HERE) | |||||||||||||
|---|---|---|---|---|---|---|---|---|---|---|---|---|---|
| Year | Market Value | Taxable Mkt Value | Gross Assessed | Exemption | Net Assessed | Millage | Est. Tax | Tax Savings | |||||
|
2026 |
433,000 |
381,924 |
42,011 |
1,000 |
41,011 |
122.90 |
$5,040 |
$813 |
|||||
|
2025 |
419,500 |
370,800 |
40,788 |
1,000 |
39,788 |
122.90 |
$4,890 |
$781 |
|||||
|
2024 |
360,000 |
360,000 |
39,600 |
1,000 |
38,600 |
123.89 |
$4,782 |
$124 |
|||||
|
2023 |
385,500 |
298,860 |
32,874 |
1,000 |
31,874 |
122.82 |
$3,915 |
$1,293 |
|||||
|
2022 |
319,000 |
290,156 |
31,916 |
1,000 |
30,916 |
117.63 |
$3,637 |
$491 |
|||||
| Property Account Status/Adjustments/Exemptions | ||
|---|---|---|
| Account # | Exemption Description | Amount |
|
R122571080 |
3% Cap Homestead |
0 |
|
R122571080 |
Homestead |
1,000 |
| Property Deed Transaction History (Recorded in the County Clerk's Office) | ||||||||||
|---|---|---|---|---|---|---|---|---|---|---|
| Date | Type | Book | Page | Price | Grantor | Grantee | ||||
|
9/29/2023 |
|
Deeds |
$355,000 |
CURTIS LINDA KAY REV TRUST |
LONG CINDY LOU |
|||||
|
11/21/2022 |
|
Deeds |
$0 |
CURTIS LINDA K |
CURTIS LINDA KAY REV TRUST |
|||||
|
2/13/2018 |
|
Deeds |
$255,000 |
HARSHA DANA KELLY |
CURTIS LINDA K |
|||||
|
1/8/2007 |
|
Deeds |
$0 |
HARSHA DANA KELLY |
HARSHA DANA KELLY TRS HARSHA DANA KELLY REV TRUST |
|||||
|
1/8/2007 |
|
Deeds |
$0 |
HARSHA DANA KELLY TRS HARSHA DANA K REV TRUST |
HARSHA DANA KELLY |
|||||
| Last Mailed Notice of Value (N.O.V.) Information/History | ||||||||
|---|---|---|---|---|---|---|---|---|
| Year | Date | Market Value | Taxable Market Value | Gross Assessed | Exemption | Net Assessed | ||
|
2026 |
02/23/2026 |
433,000 |
381,924 |
42,011 |
1,000 |
41,011 |
||
|
2025 |
02/14/2025 |
419,500 |
370,800 |
40,788 |
1,000 |
39,788 |
||
|
2024 |
02/13/2024 |
399,000 |
399,000 |
43,890 |
0 |
43,890 |
||
|
2023 |
02/14/2023 |
385,500 |
298,860 |
32,874 |
1,000 |
31,874 |
||
|
2023 |
03/02/2023 |
385,500 |
298,860 |
32,874 |
1,000 |
31,874 |
||
| Property Building Permit History | ||||||
|---|---|---|---|---|---|---|
| Issued | Permit # | Provided by | Bldg # | Description | Est Construction Cost | Status |
|
4/14/1997 |
10208612 |
OKLAHOMA CITY |
1 |
Main Dwellin |
153,000 |
Inactive |
| Click button on building number to access detailed information: | ||||||
|---|---|---|---|---|---|---|
| Bldg # | Vacant/Improved Land | Bldg Description | Year Built | SqFt | # Stories | |
|
1 |
Improved |
1½ Story Fin |
1997 |
2,856 |
1.5 Stories |
|