|
|
|
| Larry Stein Oklahoma County Assessor (405) 713-1200 - Public Access System |
|
|
|
|
|
|
| Real Property Display - Screen Produced 4/9/2026 9:07:01 AM | ||||
|---|---|---|---|---|
| Account: R122571110 | Type: Residential | Location: |
4116 CANTLE CT |
|
| Building Name/Occupant: |
|
OKLAHOMA CITY |
||
| Owner Name 1: | SMITH PATRICK K |
Parcel PIN#: |
3892-12-257-1110 |
|
| Owner Name 2: | MCNEIL NATALIE A | 1/4 section #: |
3892 |
|
| Owner Name 3: | Parent Acct: |
|
||
| Billing Address: | 4116 CANTLE CT | Tax District: |
|
|
| City, State, Zip | OKLAHOMA CITY, OK 73120-8031 | School System: |
Oklahoma City #89 |
|
|
Country: (If noted) |
Land Size: |
0.3450 Acres |
||
|
Land Value: 56,668 |
|
|||
|
Sect 23-T13N-R4W Qtr NW |
THE ARBORS BLKS 17 & 18
Block
017
Lot
012
|
|||
| Full Legal Description: THE ARBORS BLKS 17 & 18 017 012 |
| Photo & Sketch (if available) | Comp Sales (ordered by relevancy) |
|
||||||||||||||||||
|
||||||||||||||||||||
| Value History (*The County Treasurer 405-713-1300 posts & collects actual tax amounts. Contact information HERE) | |||||||||||||
|---|---|---|---|---|---|---|---|---|---|---|---|---|---|
| Year | Market Value | Taxable Mkt Value | Gross Assessed | Exemption | Net Assessed | Millage | Est. Tax | Tax Savings | |||||
|
2026 |
393,000 |
342,392 |
37,662 |
0 |
37,662 |
122.90 |
$4,629 |
$684 |
|||||
|
2025 |
382,500 |
326,088 |
35,869 |
0 |
35,869 |
122.90 |
$4,408 |
$763 |
|||||
|
2024 |
364,500 |
310,560 |
34,160 |
0 |
34,160 |
123.89 |
$4,232 |
$735 |
|||||
|
2023 |
353,500 |
295,772 |
32,534 |
0 |
32,534 |
122.82 |
$3,996 |
$780 |
|||||
|
2022 |
296,500 |
281,688 |
30,985 |
0 |
30,985 |
117.63 |
$3,645 |
$192 |
|||||
| Property Account Status/Adjustments/Exemptions | ||
|---|---|---|
| Account # | Exemption Description | Amount |
|
R122571110 |
5% Capped Account |
0 |
| Property Deed Transaction History (Recorded in the County Clerk's Office) | ||||||||||
|---|---|---|---|---|---|---|---|---|---|---|
| Date | Type | Book | Page | Price | Grantor | Grantee | ||||
|
2/27/2004 |
|
Deeds |
$210,000 |
CORONA DORIS G |
SMITH PATRICK K |
|||||
|
3/30/2001 |
|
Deeds |
$198,500 |
HINES J CARTER |
CORONA DORIS G |
|||||
|
5/16/1994 |
|
Historical |
$181,000 |
TRENT WILLIAM RICHARD |
HINES J CARTER |
|||||
|
12/27/1993 |
|
Historical |
$0 |
TRENT WILLIAM R & ROBBIE J |
TRENT WILLIAM RICHARD |
|||||
|
9/24/1987 |
|
Historical |
$175,000 |
CADDO MINERALS & LAND INC |
TRENT WILLIAM R & ROBBIE J |
|||||
| Last Mailed Notice of Value (N.O.V.) Information/History | ||||||||
|---|---|---|---|---|---|---|---|---|
| Year | Date | Market Value | Taxable Market Value | Gross Assessed | Exemption | Net Assessed | ||
|
2026 |
02/23/2026 |
393,000 |
342,392 |
37,662 |
0 |
37,662 |
||
|
2025 |
02/14/2025 |
382,500 |
326,088 |
35,869 |
0 |
35,869 |
||
|
2024 |
02/13/2024 |
364,500 |
310,560 |
34,160 |
0 |
34,160 |
||
|
2023 |
02/14/2023 |
353,500 |
295,772 |
32,534 |
0 |
32,534 |
||
|
2022 |
03/15/2022 |
296,500 |
281,688 |
30,985 |
0 |
30,985 |
||
| Property Building Permit History | |||||||||||
|---|---|---|---|---|---|---|---|---|---|---|---|
| Issued | Permit # | Provided by | Bldg # | Description | Est Construction Cost | Status | |||||
| No Building Permit records returned. | |||||||||||
| Click button on building number to access detailed information: | ||||||
|---|---|---|---|---|---|---|
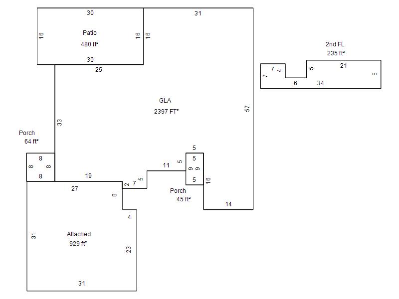
| Bldg # | Vacant/Improved Land | Bldg Description | Year Built | SqFt | # Stories | |
|
1 |
Improved |
1½ Story Fin |
1985 |
2,632 |
1.5 Stories |
|