|
|
|
| Larry Stein Oklahoma County Assessor (405) 713-1200 - Public Access System |
|
|
|
|
|
|
| Real Property Display - Screen Produced 4/2/2026 5:16:02 PM | ||||
|---|---|---|---|---|
| Account: R178951575 | Type: Residential | Location: |
2939 HUNTLEIGH DR |
|
| Building Name/Occupant: |
|
VILLAGE |
||
| Owner Name 1: | GAINES DAN O |
Parcel PIN#: |
3898-17-895-1575 |
|
| Owner Name 2: | BLACK BARBARA A | 1/4 section #: |
3898 |
|
| Owner Name 3: | Parent Acct: |
|
||
| Billing Address: | 2939 HUNTLEIGH DR | Tax District: |
|
|
| City, State, Zip | OKLAHOMA CITY, OK 73120-2502 | School System: |
Oklahoma City #89 |
|
|
Country: (If noted) |
Land Size: |
0.2841 Acres |
||
|
Land Value: 53,831 |
|
|||
|
Sect 25-T13N-R4W Qtr SE |
BURKE NORTHRIDGE MANOR
Block
003
Lot
000
|
|||
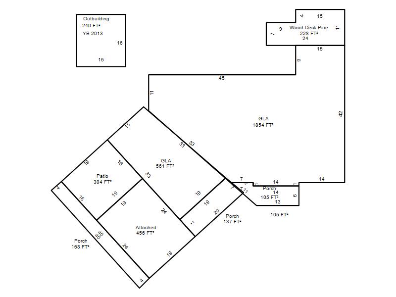
| Full Legal Description: BURKE NORTHRIDGE MANOR 003 000 ELY PRT LOT 16 BEING 28.43FT ON NLY SIDE & 25FT ON SLY SIDE& ALL LOT 17 |
| Photo & Sketch (if available) | Comp Sales (ordered by relevancy) |
|
||||||||||||||||||
|
||||||||||||||||||||
| Value History (*The County Treasurer 405-713-1300 posts & collects actual tax amounts. Contact information HERE) | |||||||||||||
|---|---|---|---|---|---|---|---|---|---|---|---|---|---|
| Year | Market Value | Taxable Mkt Value | Gross Assessed | Exemption | Net Assessed | Millage | Est. Tax | Tax Savings | |||||
|
2026 |
385,500 |
284,387 |
31,282 |
1,000 |
30,282 |
122.45 |
$3,708 |
$1,484 |
|||||
|
2025 |
383,500 |
276,104 |
30,370 |
1,000 |
29,370 |
122.45 |
$3,597 |
$1,569 |
|||||
|
2024 |
371,500 |
268,063 |
29,486 |
1,000 |
28,486 |
124.97 |
$3,560 |
$1,547 |
|||||
|
2023 |
361,500 |
260,256 |
28,627 |
1,000 |
27,627 |
120.11 |
$3,318 |
$1,458 |
|||||
|
2022 |
318,500 |
252,676 |
27,792 |
1,000 |
26,792 |
115.25 |
$3,088 |
$950 |
|||||
| Property Account Status/Adjustments/Exemptions | ||
|---|---|---|
| Account # | Exemption Description | Amount |
|
R178951575 |
3% Cap Homestead |
0 |
|
R178951575 |
Homestead |
1,000 |
| Property Deed Transaction History (Recorded in the County Clerk's Office) | ||||||||||
|---|---|---|---|---|---|---|---|---|---|---|
| Date | Type | Book | Page | Price | Grantor | Grantee | ||||
|
4/15/2014 |
|
Deeds |
$233,000 |
BRUCE MULFORD PROPERTIES LLC |
GAINES DAN O |
|||||
|
6/27/2013 |
|
Deeds |
$148,000 |
HURST NIKKI LYNNE |
BRUCE MULFORD PROPERTIES LLC |
|||||
|
6/21/2013 |
|
Deeds |
$0 |
GREEN WANDA CARLENE HURST NIKKI LYNNE |
HURST NIKKI LYNNE |
|||||
|
7/7/2005 |
|
Deeds |
$0 |
GREEN WILLIAM G & WANDA C |
GREEN WANDA CARLENE |
|||||
|
6/15/2005 |
|
Deeds |
$0 |
GREEN WANDA CARLENE |
GREEN WANDA CARLENE HURST NIKKI LYNNE |
|||||
| Last Mailed Notice of Value (N.O.V.) Information/History | ||||||||
|---|---|---|---|---|---|---|---|---|
| Year | Date | Market Value | Taxable Market Value | Gross Assessed | Exemption | Net Assessed | ||
|
2026 |
02/23/2026 |
385,500 |
284,387 |
31,282 |
1,000 |
30,282 |
||
|
2025 |
02/14/2025 |
383,500 |
276,104 |
30,370 |
1,000 |
29,370 |
||
|
2024 |
02/13/2024 |
371,500 |
268,063 |
29,486 |
1,000 |
28,486 |
||
|
2023 |
02/14/2023 |
361,500 |
260,256 |
28,627 |
1,000 |
27,627 |
||
|
2022 |
03/15/2022 |
318,500 |
252,676 |
27,792 |
1,000 |
26,792 |
||
| Property Building Permit History | |||||||||||
|---|---|---|---|---|---|---|---|---|---|---|---|
| Issued | Permit # | Provided by | Bldg # | Description | Est Construction Cost | Status | |||||
| No Building Permit records returned. | |||||||||||
| Click button on building number to access detailed information: | ||||||
|---|---|---|---|---|---|---|
| Bldg # | Vacant/Improved Land | Bldg Description | Year Built | SqFt | # Stories | |
|
1 |
Improved |
Ranch 1 Story |
1958 |
2,415 |
1 Stories |
|