|
|
|
| Larry Stein Oklahoma County Assessor (405) 713-1200 - Public Access System |
|
|
|
|
|
|
| Real Property Display - Screen Produced 4/1/2026 7:09:56 PM | ||||
|---|---|---|---|---|
| Account: R142161610 | Type: Residential | Location: |
7728 NORTHGATE AVE |
|
| Building Name/Occupant: |
|
OKLAHOMA CITY |
||
| Owner Name 1: | THOMASON JAMES MATHEW |
Parcel PIN#: |
3915-14-216-1610 |
|
| Owner Name 2: | 1/4 section #: |
3915 |
||
| Owner Name 3: | Parent Acct: |
|
||
| Billing Address: | 7728 NORTHGATE AVE | Tax District: |
|
|
| City, State, Zip | OKLAHOMA CITY, OK 73162-5578 | School System: |
Putnam City #1 |
|
|
Country: (If noted) |
Land Size: |
0.2090 Acres |
||
|
Land Value: 31,857 |
|
|||
|
Sect 29-T13N-R4W Qtr SW |
BROOKHAVEN WEST
Block
005
Lot
012
|
|||
| Full Legal Description: BROOKHAVEN WEST 005 012 |
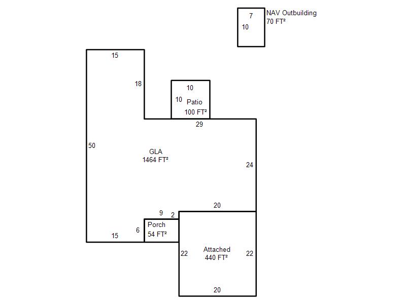
| Photo & Sketch (if available) | Comp Sales (ordered by relevancy) |
|
||||||||||||||||||
|
||||||||||||||||||||
| Value History (*The County Treasurer 405-713-1300 posts & collects actual tax amounts. Contact information HERE) | |||||||||||||
|---|---|---|---|---|---|---|---|---|---|---|---|---|---|
| Year | Market Value | Taxable Mkt Value | Gross Assessed | Exemption | Net Assessed | Millage | Est. Tax | Tax Savings | |||||
|
2026 |
206,000 |
206,000 |
22,660 |
0 |
22,660 |
123.17 |
$2,791 |
$0 |
|||||
|
2025 |
204,500 |
204,500 |
22,495 |
0 |
22,495 |
123.17 |
$2,771 |
$0 |
|||||
|
2024 |
203,000 |
184,117 |
20,252 |
0 |
20,252 |
122.30 |
$2,477 |
$254 |
|||||
|
2023 |
191,000 |
175,350 |
19,288 |
0 |
19,288 |
121.91 |
$2,351 |
$210 |
|||||
|
2022 |
167,000 |
167,000 |
18,370 |
0 |
18,370 |
123.41 |
$2,267 |
$0 |
|||||
| Property Account Status/Adjustments/Exemptions | ||
|---|---|---|
| Account # | Exemption Description | Amount |
|
R142161610 |
5% Capped Account |
0 |
| Property Deed Transaction History (Recorded in the County Clerk's Office) | ||||||||||
|---|---|---|---|---|---|---|---|---|---|---|
| Date | Type | Book | Page | Price | Grantor | Grantee | ||||
|
6/7/2024 |
|
Deeds |
$220,000 |
PELTON BREANNA ELIZABETH |
THOMASON JAMES MATHEW |
|||||
|
4/29/2021 |
|
Deeds |
$172,000 |
RESTORATION STRATEGIES LLC |
PELTON BREANNA ELIZABETH |
|||||
|
10/30/2020 |
|
Deeds |
$125,000 |
BOYD APRIL L & MICHAEL A |
RESTORATION STRATEGIES LLC |
|||||
|
4/30/2009 |
|
Deeds |
$108,500 |
MCDONALD KYLE P & STEPHANIE D |
BOYD APRIL L & MICHAEL A |
|||||
|
9/10/2004 |
|
Deeds |
$90,000 |
HERRINGTON CHRISTOPHER D & CARRIE E |
MCDONALD KYLE P & STEPHANIE D |
|||||
| Last Mailed Notice of Value (N.O.V.) Information/History | ||||||||
|---|---|---|---|---|---|---|---|---|
| Year | Date | Market Value | Taxable Market Value | Gross Assessed | Exemption | Net Assessed | ||
|
2026 |
02/23/2026 |
206,000 |
206,000 |
22,660 |
0 |
22,660 |
||
|
2025 |
02/14/2025 |
204,500 |
204,500 |
22,495 |
0 |
22,495 |
||
|
2024 |
02/13/2024 |
203,000 |
184,117 |
20,252 |
0 |
20,252 |
||
|
2023 |
02/14/2023 |
191,000 |
175,350 |
19,288 |
0 |
19,288 |
||
|
2022 |
03/15/2022 |
167,000 |
167,000 |
18,370 |
0 |
18,370 |
||
| Property Building Permit History | |||||||||||
|---|---|---|---|---|---|---|---|---|---|---|---|
| Issued | Permit # | Provided by | Bldg # | Description | Est Construction Cost | Status | |||||
| No Building Permit records returned. | |||||||||||
| Click button on building number to access detailed information: | ||||||
|---|---|---|---|---|---|---|
| Bldg # | Vacant/Improved Land | Bldg Description | Year Built | SqFt | # Stories | |
|
1 |
Improved |
Ranch 1 Story |
1974 |
1,464 |
1 Stories |
|