|
|
|
| Larry Stein Oklahoma County Assessor (405) 713-1200 - Public Access System |
|
|
|
|
|
|
| Real Property Display - Screen Produced 4/1/2026 7:24:16 PM | ||||
|---|---|---|---|---|
| Account: R142161830 | Type: Residential | Location: |
7605 LIPPERT LN |
|
| Building Name/Occupant: |
|
OKLAHOMA CITY |
||
| Owner Name 1: | CRANEY WAYNE T & CARMEN G TRS |
Parcel PIN#: |
3915-14-216-1830 |
|
| Owner Name 2: | CRANEY WAYNE T & CARMEN G LIVING TRUST | 1/4 section #: |
3915 |
|
| Owner Name 3: | Parent Acct: |
|
||
| Billing Address: | 7605 LIPPERT LN | Tax District: |
|
|
| City, State, Zip | OKLAHOMA CITY, OK 73162-5588 | School System: |
Putnam City #1 |
|
|
Country: (If noted) |
Land Size: |
0.2479 Acres |
||
|
Land Value: 37,800 |
|
|||
|
Sect 29-T13N-R4W Qtr SW |
BROOKHAVEN WEST
Block
005
Lot
034
|
|||
| Full Legal Description: BROOKHAVEN WEST 005 034 |
| Photo & Sketch (if available) | Comp Sales (ordered by relevancy) |
|
||||||||||||||||||
|
||||||||||||||||||||
| Value History (*The County Treasurer 405-713-1300 posts & collects actual tax amounts. Contact information HERE) | |||||||||||||
|---|---|---|---|---|---|---|---|---|---|---|---|---|---|
| Year | Market Value | Taxable Mkt Value | Gross Assessed | Exemption | Net Assessed | Millage | Est. Tax | Tax Savings | |||||
|
2026 |
196,000 |
151,643 |
16,679 |
1,000 |
15,679 |
123.17 |
$1,931 |
$724 |
|||||
|
2025 |
192,000 |
147,227 |
16,194 |
1,000 |
15,194 |
123.17 |
$1,872 |
$730 |
|||||
|
2024 |
187,500 |
142,939 |
15,722 |
1,000 |
14,722 |
122.30 |
$1,801 |
$722 |
|||||
|
2023 |
180,500 |
138,776 |
15,264 |
1,000 |
14,264 |
121.91 |
$1,739 |
$681 |
|||||
|
2022 |
164,500 |
134,734 |
14,820 |
1,000 |
13,820 |
123.41 |
$1,706 |
$527 |
|||||
| Property Account Status/Adjustments/Exemptions | ||
|---|---|---|
| Account # | Exemption Description | Amount |
|
R142161830 |
3% Cap Homestead |
0 |
|
R142161830 |
Homestead |
1,000 |
| Property Deed Transaction History (Recorded in the County Clerk's Office) | |||||||
|---|---|---|---|---|---|---|---|
| Date | Type | Book | Page | Price | Grantor | Grantee | |
|
1/26/1995 |
|
Historical |
$0 |
CRANEY WAYNE T & CARMEN G |
CRANEY WAYNE T & CARMEN G TRS |
||
|
4/1/1983 |
|
Historical |
$0 |
|
CRANEY WAYNE T & CARMEN G |
||
| Last Mailed Notice of Value (N.O.V.) Information/History | ||||||||
|---|---|---|---|---|---|---|---|---|
| Year | Date | Market Value | Taxable Market Value | Gross Assessed | Exemption | Net Assessed | ||
|
2026 |
02/23/2026 |
196,000 |
151,643 |
16,679 |
1,000 |
15,679 |
||
|
2025 |
02/14/2025 |
192,000 |
147,227 |
16,194 |
1,000 |
15,194 |
||
|
2024 |
02/13/2024 |
187,500 |
142,939 |
15,722 |
1,000 |
14,722 |
||
|
2023 |
02/14/2023 |
180,500 |
138,776 |
15,264 |
1,000 |
14,264 |
||
|
2022 |
03/15/2022 |
164,500 |
134,734 |
14,820 |
1,000 |
13,820 |
||
| Property Building Permit History | |||||||||||
|---|---|---|---|---|---|---|---|---|---|---|---|
| Issued | Permit # | Provided by | Bldg # | Description | Est Construction Cost | Status | |||||
| No Building Permit records returned. | |||||||||||
| Click button on building number to access detailed information: | ||||||
|---|---|---|---|---|---|---|
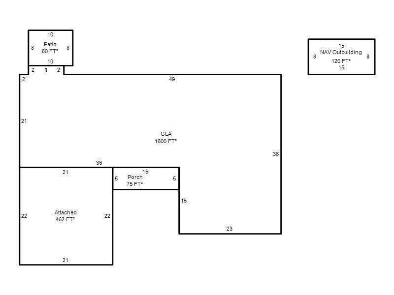
| Bldg # | Vacant/Improved Land | Bldg Description | Year Built | SqFt | # Stories | |
|
1 |
Improved |
Ranch 1 Story |
1974 |
1,600 |
1 Stories |
|