|
|
|
| Larry Stein Oklahoma County Assessor (405) 713-1200 - Public Access System |
|
|
|
|
|
|
| Real Property Display - Screen Produced 4/9/2026 5:41:49 AM | ||||
|---|---|---|---|---|
| Account: R107563380 | Type: Residential | Location: |
2901 ELMHURST AVE |
|
| Building Name/Occupant: |
|
OKLAHOMA CITY |
||
| Owner Name 1: | LIVING DYNASTY GROUP LLC |
Parcel PIN#: |
3942-10-756-3380 |
|
| Owner Name 2: | 1/4 section #: |
3942 |
||
| Owner Name 3: | Parent Acct: |
|
||
| Billing Address: | 2901 ELMHURST AVE | Tax District: |
|
|
| City, State, Zip | OKLAHOMA CITY, OK 73120-4313 | School System: |
Oklahoma City #89 |
|
|
Country: (If noted) |
Land Size: |
0.2755 Acres |
||
|
Land Value: 96,000 |
|
|||
|
Sect 36-T13N-R4W Qtr SE |
LAKEHURST
Block
015
Lot
022
|
|||
| Full Legal Description: LAKEHURST 015 022 |
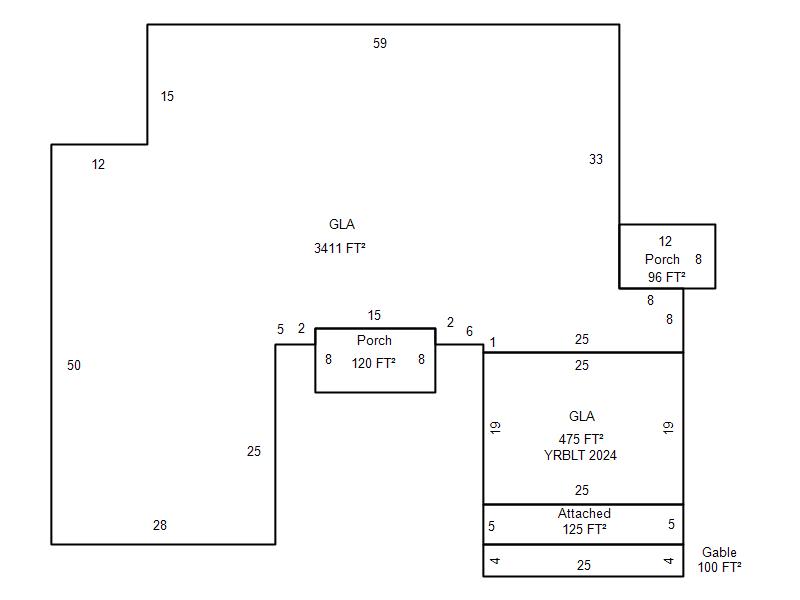
| Photo & Sketch (if available) | Comp Sales (ordered by relevancy) |
|
||||||||||||||||||
|
||||||||||||||||||||
| Value History (*The County Treasurer 405-713-1300 posts & collects actual tax amounts. Contact information HERE) | |||||||||||||
|---|---|---|---|---|---|---|---|---|---|---|---|---|---|
| Year | Market Value | Taxable Mkt Value | Gross Assessed | Exemption | Net Assessed | Millage | Est. Tax | Tax Savings | |||||
|
2026 |
783,500 |
783,500 |
86,185 |
0 |
86,185 |
122.90 |
$10,592 |
$0 |
|||||
|
2025 |
758,500 |
758,500 |
83,435 |
0 |
83,435 |
122.90 |
$10,254 |
$0 |
|||||
|
2024 |
457,000 |
457,000 |
50,270 |
0 |
50,270 |
123.89 |
$6,228 |
$0 |
|||||
|
2023 |
528,000 |
373,890 |
41,127 |
1,000 |
40,127 |
122.82 |
$4,929 |
$2,205 |
|||||
|
2022 |
421,500 |
373,890 |
41,127 |
1,000 |
40,127 |
117.63 |
$4,720 |
$734 |
|||||
| Property Account Status/Adjustments/Exemptions | ||
|---|---|---|
| Account # | Exemption Description | Amount |
|
R107563380 |
5% Capped Account |
0 |
| Property Deed Transaction History (Recorded in the County Clerk's Office) | ||||||||||
|---|---|---|---|---|---|---|---|---|---|---|
| Date | Type | Book | Page | Price | Grantor | Grantee | ||||
|
6/23/2023 |
|
Deeds |
$425,000 |
KIRSCHNER MICHAEL PAUL TRS ETAL |
LIVING DYNASTY GROUP LLC |
|||||
|
3/20/2018 |
|
Deeds |
$0 |
KIRSCHNER MICHAEL P & SHIRLEY J |
KIRSCHNER MICHAEL PAUL TRS ETAL |
|||||
|
5/13/2009 |
|
Deeds |
$0 |
KIRSCHNER MICHAEL P & SHIRLEY J |
KIRSCHNER MICHAEL PAUL |
|||||
|
5/13/2009 |
|
Deeds |
$0 |
KIRSCHNER MICHAEL PAUL |
KIRSCHNER MICHAEL P & SHIRLEY J |
|||||
|
3/28/2006 |
|
Deeds |
$279,000 |
SHELBY JANICE |
KIRSCHNER MICHAEL P & SHIRLEY J |
|||||
| Last Mailed Notice of Value (N.O.V.) Information/History | ||||||||
|---|---|---|---|---|---|---|---|---|
| Year | Date | Market Value | Taxable Market Value | Gross Assessed | Exemption | Net Assessed | ||
|
2026 |
02/23/2026 |
783,500 |
783,500 |
86,185 |
0 |
86,185 |
||
|
2025 |
03/28/2025 |
758,500 |
758,500 |
83,435 |
0 |
83,435 |
||
|
2024 |
02/13/2024 |
457,000 |
457,000 |
50,270 |
0 |
50,270 |
||
|
2023 |
02/14/2023 |
528,000 |
373,890 |
41,127 |
1,000 |
40,127 |
||
|
2022 |
03/15/2022 |
421,500 |
373,890 |
41,127 |
1,000 |
40,127 |
||
| Property Building Permit History | ||||||
|---|---|---|---|---|---|---|
| Issued | Permit # | Provided by | Bldg # | Description | Est Construction Cost | Status |
|
9/20/2023 |
BLDR-2023-04652 |
|
1 |
Remodeled |
110,000 |
Inactive |
|
1/22/1992 |
10202758 |
OKLAHOMA CITY |
1 |
Fire Remodel |
60,000 |
Inactive |
|
12/31/1991 |
10202757 |
OKLAHOMA CITY |
1 |
Burn - Trip |
60,200 |
Inactive |
| Click button on building number to access detailed information: | ||||||
|---|---|---|---|---|---|---|
| Bldg # | Vacant/Improved Land | Bldg Description | Year Built | SqFt | # Stories | |
|
1 |
Improved |
Ranch 1 Story |
1968 |
3,886 |
1 Stories |
|