|
|
|
| Larry Stein Oklahoma County Assessor (405) 713-1200 - Public Access System |
|
|
|
|
|
|
| Real Property Display - Screen Produced 4/9/2026 9:05:33 AM | ||||
|---|---|---|---|---|
| Account: R208231290 | Type: Residential | Location: |
5600 CHATEAU LN |
|
| Building Name/Occupant: |
|
EDMOND |
||
| Owner Name 1: | PETERSON KEVIN L & LISA L |
Parcel PIN#: |
4433-20-823-1290 |
|
| Owner Name 2: | 1/4 section #: |
4433 |
||
| Owner Name 3: | Parent Acct: |
4433-16-863-1255 |
||
| Billing Address: | 5600 CHATEAU LN | Tax District: |
|
|
| City, State, Zip | EDMOND, OK 73034-9754 | School System: |
Edmond #12 |
|
|
Country: (If noted) |
Land Size: |
0.9851 Acres |
||
|
Land Value: 119,788 |
|
|||
|
Sect 9-T14N-R2W Qtr NE |
BELLEAU WOOD
Block
002
Lot
013
|
|||
| Full Legal Description: BELLEAU WOOD 002 013 |
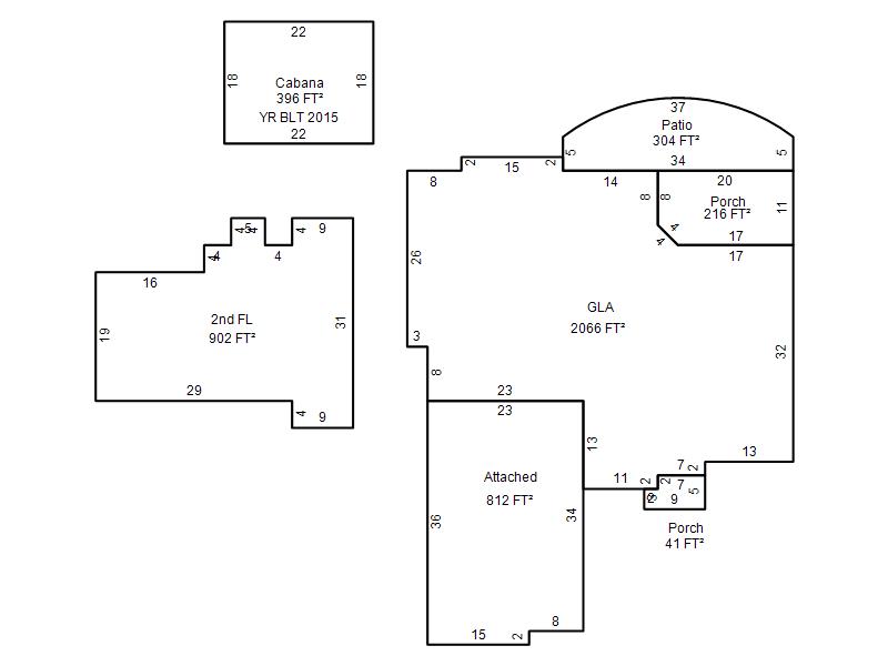
| Photo & Sketch (if available) | Comp Sales (ordered by relevancy) |
|
||||||||||||||||||
|
||||||||||||||||||||
| Value History (*The County Treasurer 405-713-1300 posts & collects actual tax amounts. Contact information HERE) | |||||||||||||
|---|---|---|---|---|---|---|---|---|---|---|---|---|---|
| Year | Market Value | Taxable Mkt Value | Gross Assessed | Exemption | Net Assessed | Millage | Est. Tax | Tax Savings | |||||
|
2026 |
740,000 |
626,586 |
68,923 |
1,000 |
67,923 |
105.16 |
$7,143 |
$1,417 |
|||||
|
2025 |
733,500 |
608,336 |
66,916 |
1,000 |
65,916 |
105.16 |
$6,932 |
$1,553 |
|||||
|
2024 |
710,000 |
590,618 |
64,967 |
1,000 |
63,967 |
105.03 |
$6,719 |
$1,484 |
|||||
|
2023 |
681,000 |
573,416 |
63,075 |
1,000 |
62,075 |
104.24 |
$6,471 |
$1,338 |
|||||
|
2022 |
602,500 |
556,715 |
61,238 |
1,000 |
60,238 |
104.64 |
$6,303 |
$632 |
|||||
| Property Account Status/Adjustments/Exemptions | ||
|---|---|---|
| Account # | Exemption Description | Amount |
|
R208231290 |
3% Cap Homestead |
0 |
|
R208231290 |
Homestead |
1,000 |
| Property Deed Transaction History (Recorded in the County Clerk's Office) | |||||||
|---|---|---|---|---|---|---|---|
| Date | Type | Book | Page | Price | Grantor | Grantee | |
|
5/21/2018 |
|
Deeds |
$556,500 |
PITTMAN NATHAN A & KELLEY D |
PETERSON KEVIN L & LISA L |
||
|
11/16/2012 |
|
Deeds |
$75,000 |
SPINNING SPUR LLC |
PITTMAN NATHAN A & KELLEY D |
||
| Last Mailed Notice of Value (N.O.V.) Information/History | ||||||||
|---|---|---|---|---|---|---|---|---|
| Year | Date | Market Value | Taxable Market Value | Gross Assessed | Exemption | Net Assessed | ||
|
2026 |
02/06/2026 |
740,000 |
626,586 |
68,923 |
1,000 |
67,923 |
||
|
2025 |
01/31/2025 |
733,500 |
608,336 |
66,916 |
1,000 |
65,916 |
||
|
2024 |
01/22/2024 |
710,000 |
590,618 |
64,967 |
1,000 |
63,967 |
||
|
2023 |
01/23/2023 |
681,000 |
573,416 |
63,075 |
1,000 |
62,075 |
||
|
2022 |
02/22/2022 |
602,500 |
556,715 |
61,238 |
1,000 |
60,238 |
||
| Property Building Permit History | ||||||
|---|---|---|---|---|---|---|
| Issued | Permit # | Provided by | Bldg # | Description | Est Construction Cost | Status |
|
1/26/2015 |
10469529 |
EDMOND |
1 |
Swimming Pool |
36,000 |
Inactive |
|
11/21/2012 |
10446847 |
EDMOND |
1 |
Main Dwellin |
465,000 |
Inactive |
| Click button on building number to access detailed information: | ||||||
|---|---|---|---|---|---|---|
| Bldg # | Vacant/Improved Land | Bldg Description | Year Built | SqFt | # Stories | |
|
1 |
Improved |
1½ Story Fin |
2013 |
2,968 |
1.5 Stories |
|