|
|
|
| Larry Stein Oklahoma County Assessor (405) 713-1200 - Public Access System |
|
|
|
|
|
|
| Real Property Display - Screen Produced 4/2/2026 12:32:41 AM | ||||
|---|---|---|---|---|
| Account: R128261220 | Type: Residential | Location: |
2725 ELK HORN RD |
|
| Building Name/Occupant: |
|
EDMOND |
||
| Owner Name 1: | GRIFFIN CARLOS |
Parcel PIN#: |
4467-12-826-1220 |
|
| Owner Name 2: | GRIFFIN EMERALD | 1/4 section #: |
4467 |
|
| Owner Name 3: | Parent Acct: |
|
||
| Billing Address: | 2725 ELK HORN RD | Tax District: |
|
|
| City, State, Zip | EDMOND, OK 73034-8337 | School System: |
Edmond #12 |
|
|
Country: (If noted) |
Land Size: |
0.2755 Acres |
||
|
Land Value: 99,000 |
|
|||
|
Sect 17-T14N-R2W Qtr SW |
FAIRFAX ESTATES 1ST
Block
002
Lot
005
|
|||
| Full Legal Description: FAIRFAX ESTATES 1ST 002 005 |
| Photo & Sketch (if available) | Comp Sales (ordered by relevancy) |
|
||||||||||||||||||
|
||||||||||||||||||||
| Value History (*The County Treasurer 405-713-1300 posts & collects actual tax amounts. Contact information HERE) | |||||||||||||
|---|---|---|---|---|---|---|---|---|---|---|---|---|---|
| Year | Market Value | Taxable Mkt Value | Gross Assessed | Exemption | Net Assessed | Millage | Est. Tax | Tax Savings | |||||
|
2026 |
641,500 |
540,306 |
59,433 |
1,000 |
58,433 |
105.16 |
$6,145 |
$1,276 |
|||||
|
2025 |
635,000 |
524,569 |
57,702 |
1,000 |
56,702 |
105.16 |
$5,963 |
$1,383 |
|||||
|
2024 |
626,000 |
509,291 |
56,021 |
1,000 |
55,021 |
105.03 |
$5,779 |
$1,453 |
|||||
|
2023 |
605,000 |
494,458 |
54,390 |
1,000 |
53,390 |
104.24 |
$5,565 |
$1,372 |
|||||
|
2022 |
498,500 |
480,057 |
52,806 |
1,000 |
51,806 |
104.64 |
$5,421 |
$317 |
|||||
| Property Account Status/Adjustments/Exemptions | ||
|---|---|---|
| Account # | Exemption Description | Amount |
|
R128261220 |
Homestead |
1,000 |
|
R128261220 |
3% Cap Homestead |
0 |
| Property Deed Transaction History (Recorded in the County Clerk's Office) | ||||||||||
|---|---|---|---|---|---|---|---|---|---|---|
| Date | Type | Book | Page | Price | Grantor | Grantee | ||||
|
12/8/2006 |
|
Deeds |
$300,000 |
MOSS DAVID M & JENNIFFERR |
GRIFFIN CARLOS GRIFFIN EMERALD |
|||||
|
12/8/2006 |
|
Deeds |
$75,000 |
MOSS JENNIFFERR |
GRIFFIN CARLOS |
|||||
|
1/11/2000 |
|
Deeds |
$270,000 |
COMMERCIAL FEDERAL BANK |
MOSS DAVID M & JENNIFFERR |
|||||
|
7/16/1998 |
|
Historical |
$0 |
MASON JOE |
COMMERCIAL FEDERAL BANK |
|||||
|
5/1/1997 |
|
Historical |
$292,500 |
PRESTIGIOUS HOMES BY |
MASON JOE |
|||||
| Last Mailed Notice of Value (N.O.V.) Information/History | ||||||||
|---|---|---|---|---|---|---|---|---|
| Year | Date | Market Value | Taxable Market Value | Gross Assessed | Exemption | Net Assessed | ||
|
2026 |
02/06/2026 |
641,500 |
540,306 |
59,433 |
1,000 |
58,433 |
||
|
2025 |
01/31/2025 |
635,000 |
524,569 |
57,702 |
1,000 |
56,702 |
||
|
2024 |
01/22/2024 |
626,000 |
509,291 |
56,021 |
1,000 |
55,021 |
||
|
2023 |
01/23/2023 |
605,000 |
494,458 |
54,390 |
1,000 |
53,390 |
||
|
2022 |
02/22/2022 |
498,500 |
480,057 |
52,806 |
1,000 |
51,806 |
||
| Property Building Permit History | ||||||
|---|---|---|---|---|---|---|
| Issued | Permit # | Provided by | Bldg # | Description | Est Construction Cost | Status |
|
7/1/1996 |
10220995 |
EDMOND |
1 |
Main Dwellin |
250,000 |
Inactive |
| Click button on building number to access detailed information: | ||||||
|---|---|---|---|---|---|---|
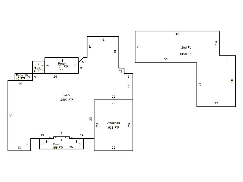
| Bldg # | Vacant/Improved Land | Bldg Description | Year Built | SqFt | # Stories | |
|
1 |
Improved |
1½ Story Fin |
1997 |
4,047 |
1.5 Stories |
|