|
|
|
| Larry Stein Oklahoma County Assessor (405) 713-1200 - Public Access System |
|
|
|
|
|
|
| Real Property Display - Screen Produced 4/2/2026 8:00:04 AM | ||||
|---|---|---|---|---|
| Account: R188327080 | Type: Residential | Location: |
805 DOVER DR |
|
| Building Name/Occupant: |
|
EDMOND |
||
| Owner Name 1: | PRINCE JARED |
Parcel PIN#: |
4522-18-832-7080 |
|
| Owner Name 2: | PRINCE MELISSA | 1/4 section #: |
4522 |
|
| Owner Name 3: | Parent Acct: |
|
||
| Billing Address: | 805 DOVER DR | Tax District: |
|
|
| City, State, Zip | EDMOND, OK 73034 | School System: |
Edmond #12 |
|
|
Country: (If noted) |
Land Size: |
0.2008 Acres |
||
|
Land Value: 56,775 |
|
|||
|
Sect 31-T14N-R2W Qtr SE |
CHIMNEY HILL III
Block
007
Lot
009
|
|||
| Full Legal Description: CHIMNEY HILL III 007 009 |
| Photo & Sketch (if available) | Comp Sales (ordered by relevancy) |
|
||||||||||||||||||
|
||||||||||||||||||||
| Value History (*The County Treasurer 405-713-1300 posts & collects actual tax amounts. Contact information HERE) | |||||||||||||
|---|---|---|---|---|---|---|---|---|---|---|---|---|---|
| Year | Market Value | Taxable Mkt Value | Gross Assessed | Exemption | Net Assessed | Millage | Est. Tax | Tax Savings | |||||
|
2026 |
309,500 |
309,500 |
34,045 |
0 |
34,045 |
105.16 |
$3,580 |
$0 |
|||||
|
2025 |
295,000 |
295,000 |
32,450 |
0 |
32,450 |
105.16 |
$3,412 |
$0 |
|||||
|
2024 |
305,000 |
305,000 |
33,550 |
0 |
33,550 |
105.03 |
$3,524 |
$0 |
|||||
|
2023 |
304,000 |
304,000 |
33,440 |
0 |
33,440 |
104.24 |
$3,486 |
$0 |
|||||
|
2022 |
238,000 |
238,000 |
26,180 |
1,000 |
25,180 |
104.64 |
$2,635 |
$105 |
|||||
| Property Account Status/Adjustments/Exemptions | ||
|---|---|---|
| Account # | Exemption Description | Amount |
|
R188327080 |
5% Capped Account |
0 |
| Property Deed Transaction History (Recorded in the County Clerk's Office) | ||||||||||
|---|---|---|---|---|---|---|---|---|---|---|
| Date | Type | Book | Page | Price | Grantor | Grantee | ||||
|
6/30/2022 |
|
Deeds |
$303,000 |
EDWARDS ROBERT A & LAURA E |
PRINCE JARED |
|||||
|
6/30/2020 |
|
Deeds |
$240,000 |
ANDERSON LAUREN BROOKE TRS |
EDWARDS ROBERT A & LAURA E |
|||||
|
9/18/2014 |
|
Deeds |
$0 |
ANDERSON ALVIN & LAURA |
ANDERSON LAUREN BROOKE TRS |
|||||
|
9/23/2011 |
|
Deeds |
$175,000 |
SMITH ALLEN DUANE |
ANDERSON ALVIN & LAURA |
|||||
|
9/7/2007 |
|
Deeds |
$171,000 |
DORTCH CATHERINE |
SMITH ALLEN DUANE |
|||||
| Last Mailed Notice of Value (N.O.V.) Information/History | ||||||||
|---|---|---|---|---|---|---|---|---|
| Year | Date | Market Value | Taxable Market Value | Gross Assessed | Exemption | Net Assessed | ||
|
2026 |
02/06/2026 |
309,500 |
309,500 |
34,045 |
0 |
34,045 |
||
|
2024 |
01/22/2024 |
305,000 |
305,000 |
33,550 |
0 |
33,550 |
||
|
2023 |
01/23/2023 |
304,000 |
304,000 |
33,440 |
0 |
33,440 |
||
|
2021 |
02/24/2021 |
238,000 |
238,000 |
26,180 |
1,000 |
25,180 |
||
|
2020 |
02/21/2020 |
210,500 |
204,455 |
22,490 |
1,000 |
21,490 |
||
| Property Building Permit History | |||||||||||
|---|---|---|---|---|---|---|---|---|---|---|---|
| Issued | Permit # | Provided by | Bldg # | Description | Est Construction Cost | Status | |||||
| No Building Permit records returned. | |||||||||||
| Click button on building number to access detailed information: | ||||||
|---|---|---|---|---|---|---|
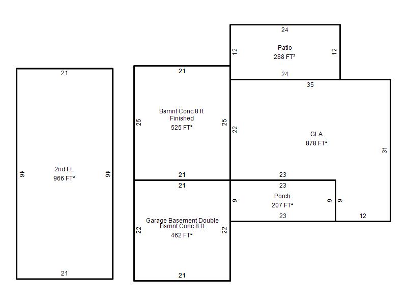
| Bldg # | Vacant/Improved Land | Bldg Description | Year Built | SqFt | # Stories | |
|
1 |
Improved |
Split Level |
1979 |
1,844 |
1.5 Stories |
|