|
|
|
| Larry Stein Oklahoma County Assessor (405) 713-1200 - Public Access System |
|
|
|
|
|
|
| Real Property Display - Screen Produced 4/2/2026 8:00:03 AM | ||||
|---|---|---|---|---|
| Account: R188327240 | Type: Residential | Location: |
2312 DOVER DR |
|
| Building Name/Occupant: |
|
EDMOND |
||
| Owner Name 1: | SPELLS JAMES & WILMA REV LIV RUST |
Parcel PIN#: |
4522-18-832-7240 |
|
| Owner Name 2: | 1/4 section #: |
4522 |
||
| Owner Name 3: | Parent Acct: |
|
||
| Billing Address: | 2312 DOVER DR | Tax District: |
|
|
| City, State, Zip | EDMOND, OK 73034-6491 | School System: |
Edmond #12 |
|
|
Country: (If noted) |
Land Size: |
0.2238 Acres |
||
|
Land Value: 63,278 |
|
|||
|
Sect 31-T14N-R2W Qtr SE |
CHIMNEY HILL III
Block
007
Lot
025
|
|||
| Full Legal Description: CHIMNEY HILL III BLK 007 LOT 025 |
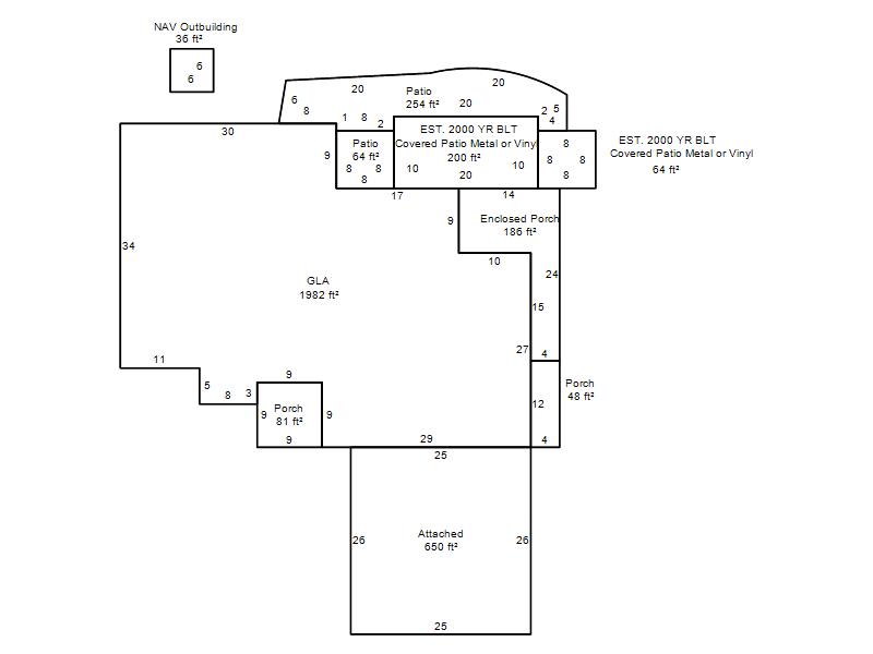
| Photo & Sketch (if available) | Comp Sales (ordered by relevancy) |
|
||||||||||||||||||
|
||||||||||||||||||||
| Value History (*The County Treasurer 405-713-1300 posts & collects actual tax amounts. Contact information HERE) | |||||||||||||
|---|---|---|---|---|---|---|---|---|---|---|---|---|---|
| Year | Market Value | Taxable Mkt Value | Gross Assessed | Exemption | Net Assessed | Millage | Est. Tax | Tax Savings | |||||
|
2026 |
324,000 |
243,849 |
26,823 |
1,000 |
25,823 |
105.16 |
$2,716 |
$1,032 |
|||||
|
2025 |
323,500 |
236,747 |
26,041 |
1,000 |
25,041 |
105.16 |
$2,633 |
$1,109 |
|||||
|
2024 |
309,000 |
229,852 |
25,283 |
1,000 |
24,283 |
105.03 |
$2,551 |
$1,019 |
|||||
|
2023 |
289,000 |
223,158 |
24,546 |
1,000 |
23,546 |
104.24 |
$2,455 |
$859 |
|||||
|
2022 |
250,000 |
216,659 |
23,832 |
1,000 |
22,832 |
104.64 |
$2,389 |
$488 |
|||||
| Property Account Status/Adjustments/Exemptions | ||
|---|---|---|
| Account # | Exemption Description | Amount |
|
R188327240 |
3% Cap Homestead |
0 |
|
R188327240 |
Homestead |
1,000 |
| Property Deed Transaction History (Recorded in the County Clerk's Office) | |||||||
|---|---|---|---|---|---|---|---|
| Date | Type | Book | Page | Price | Grantor | Grantee | |
|
12/23/2025 |
|
Deeds |
$0 |
SPELLS JAMES A & WILMA J |
SPELLS JAMES & WILMA REV LIV RUST |
||
|
5/1/1979 |
|
Historical |
$0 |
|
SPELLS JAMES A & WILMA J |
||
| Last Mailed Notice of Value (N.O.V.) Information/History | ||||||||
|---|---|---|---|---|---|---|---|---|
| Year | Date | Market Value | Taxable Market Value | Gross Assessed | Exemption | Net Assessed | ||
|
2026 |
02/06/2026 |
324,000 |
243,849 |
26,823 |
1,000 |
25,823 |
||
|
2025 |
01/31/2025 |
323,500 |
236,747 |
26,041 |
1,000 |
25,041 |
||
|
2024 |
01/22/2024 |
309,000 |
229,852 |
25,283 |
1,000 |
24,283 |
||
|
2023 |
01/23/2023 |
289,000 |
223,158 |
24,546 |
1,000 |
23,546 |
||
|
2022 |
02/22/2022 |
250,000 |
216,659 |
23,831 |
1,000 |
22,831 |
||
| Property Building Permit History | ||||||
|---|---|---|---|---|---|---|
| Issued | Permit # | Provided by | Bldg # | Description | Est Construction Cost | Status |
|
6/17/1992 |
10260303 |
EDMOND |
1 |
Add On |
1,500 |
Inactive |
| Click button on building number to access detailed information: | ||||||
|---|---|---|---|---|---|---|
| Bldg # | Vacant/Improved Land | Bldg Description | Year Built | SqFt | # Stories | |
|
1 |
Improved |
Ranch 1 Story |
1979 |
1,982 |
1 Stories |
|