|
|
|
| Larry Stein Oklahoma County Assessor (405) 713-1200 - Public Access System |
|
|
|
|
|
|
| Real Property Display - Screen Produced 4/9/2026 1:44:27 PM | ||||
|---|---|---|---|---|
| Account: R203641120 | Type: Residential | Location: |
740 SEATTLE SLEW CT |
|
| Building Name/Occupant: |
|
EDMOND |
||
| Owner Name 1: | OLADELE SARAH OLUCHI |
Parcel PIN#: |
4643-20-364-1120 |
|
| Owner Name 2: | OLADELE OWOLABI | 1/4 section #: |
4643 |
|
| Owner Name 3: | Parent Acct: |
4643-20-187-1000 |
||
| Billing Address: | 740 SEATTLE SLEW CT | Tax District: |
|
|
| City, State, Zip | EDMOND, OK 73025-0800 | School System: |
Edmond #12 |
|
|
Country: (If noted) |
Land Size: |
0.2120 Acres |
||
|
Land Value: 59,800 |
|
|||
|
Sect 11-T14N-R3W Qtr SW |
BELMONT LANDING
Block
004
Lot
013
|
|||
| Full Legal Description: BELMONT LANDING 004 013 |
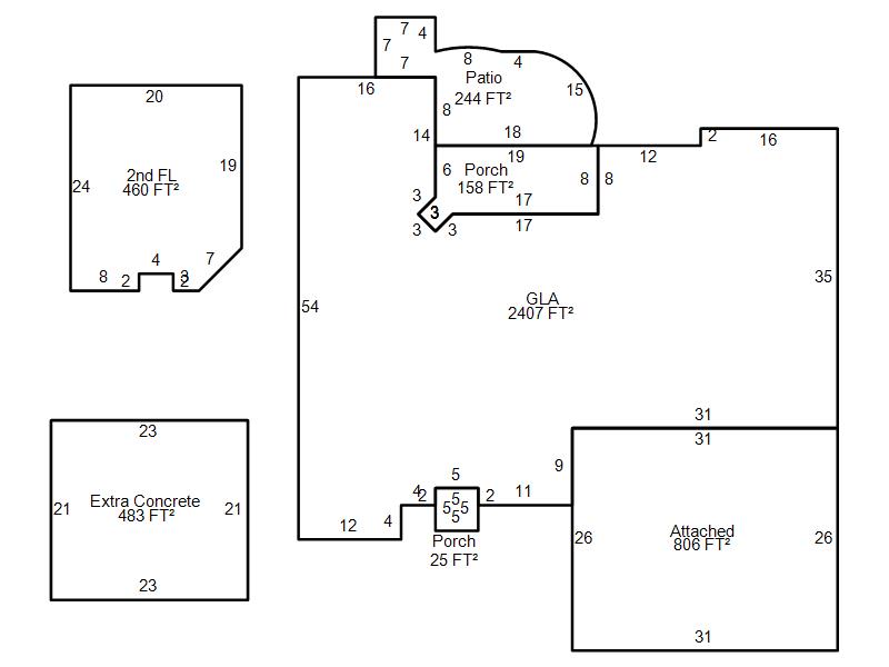
| Photo & Sketch (if available) | Comp Sales (ordered by relevancy) |
|
||||||||||||||||||
|
||||||||||||||||||||
| Value History (*The County Treasurer 405-713-1300 posts & collects actual tax amounts. Contact information HERE) | |||||||||||||
|---|---|---|---|---|---|---|---|---|---|---|---|---|---|
| Year | Market Value | Taxable Mkt Value | Gross Assessed | Exemption | Net Assessed | Millage | Est. Tax | Tax Savings | |||||
|
2026 |
452,500 |
437,144 |
48,085 |
1,000 |
47,085 |
105.16 |
$4,952 |
$283 |
|||||
|
2025 |
461,500 |
424,412 |
46,684 |
1,000 |
45,684 |
105.16 |
$4,804 |
$534 |
|||||
|
2024 |
458,000 |
412,051 |
45,325 |
1,000 |
44,325 |
105.03 |
$4,656 |
$636 |
|||||
|
2023 |
437,500 |
400,050 |
44,005 |
0 |
44,005 |
104.24 |
$4,587 |
$429 |
|||||
|
2022 |
381,000 |
381,000 |
41,910 |
0 |
41,910 |
104.64 |
$4,385 |
$0 |
|||||
| Property Account Status/Adjustments/Exemptions | ||
|---|---|---|
| Account # | Exemption Description | Amount |
|
R203641120 |
Homestead |
1,000 |
|
R203641120 |
3% Cap Homestead |
0 |
| Property Deed Transaction History (Recorded in the County Clerk's Office) | ||||||||||
|---|---|---|---|---|---|---|---|---|---|---|
| Date | Type | Book | Page | Price | Grantor | Grantee | ||||
|
12/27/2021 |
|
Deeds |
$387,000 |
BEGANSKY JENNIFER LYNN |
OLADELE SARAH OLUCHI |
|||||
|
6/28/2012 |
|
Deeds |
$0 |
BEGANSKY PAUL RICHARD II |
BEGANSKY JENNIFER LYNN |
|||||
|
12/20/2011 |
|
Deeds |
$0 |
BEGANSKY PAUL R II & JENNIFER L |
BEGANSKY JENNIFER LYNN |
|||||
|
7/31/2006 |
|
Deeds |
$297,000 |
RODY BRYAN T |
BEGANSKY PAUL R II & JENNIFER L |
|||||
|
11/5/2004 |
|
Deeds |
$0 |
RODY BRYAN T & GINA M |
RODY BRYAN T |
|||||
| Last Mailed Notice of Value (N.O.V.) Information/History | ||||||||
|---|---|---|---|---|---|---|---|---|
| Year | Date | Market Value | Taxable Market Value | Gross Assessed | Exemption | Net Assessed | ||
|
2026 |
02/06/2026 |
452,500 |
437,144 |
48,085 |
1,000 |
47,085 |
||
|
2025 |
01/31/2025 |
461,500 |
424,412 |
46,684 |
1,000 |
45,684 |
||
|
2024 |
01/22/2024 |
458,000 |
412,051 |
45,325 |
1,000 |
44,325 |
||
|
2023 |
01/23/2023 |
437,500 |
400,050 |
44,005 |
0 |
44,005 |
||
|
2022 |
02/22/2022 |
381,000 |
381,000 |
41,910 |
0 |
41,910 |
||
| Property Building Permit History | ||||||
|---|---|---|---|---|---|---|
| Issued | Permit # | Provided by | Bldg # | Description | Est Construction Cost | Status |
|
12/30/2003 |
10287046 |
EDMOND |
1 |
Main Dwellin |
190,000 |
Inactive |
|
1/1/2003 |
10276739 |
OKLAHOMA CITY |
1 |
Under Constr |
2,003 |
Inactive |
| Click button on building number to access detailed information: | ||||||
|---|---|---|---|---|---|---|
| Bldg # | Vacant/Improved Land | Bldg Description | Year Built | SqFt | # Stories | |
|
1 |
Improved |
1½ Story Fin |
2004 |
2,867 |
1.5 Stories |
|