|
|
|
| Larry Stein Oklahoma County Assessor (405) 713-1200 - Public Access System |
|
|
|
|
|
|
| Real Property Display - Screen Produced 4/9/2026 1:44:28 PM | ||||
|---|---|---|---|---|
| Account: R203641190 | Type: Residential | Location: |
4317 WHIRLA WAY |
|
| Building Name/Occupant: |
|
EDMOND |
||
| Owner Name 1: | BODEY NICOLE & TERRY SHANE |
Parcel PIN#: |
4643-20-364-1190 |
|
| Owner Name 2: | 1/4 section #: |
4643 |
||
| Owner Name 3: | Parent Acct: |
4643-20-187-1000 |
||
| Billing Address: | 4317 WHIRLAWAY | Tax District: |
|
|
| City, State, Zip | EDMOND, OK 73025-0819 | School System: |
Edmond #12 |
|
|
Country: (If noted) |
Land Size: |
0.1848 Acres |
||
|
Land Value: 51,279 |
|
|||
|
Sect 11-T14N-R3W Qtr SW |
BELMONT LANDING
Block
004
Lot
020
|
|||
| Full Legal Description: BELMONT LANDING 004 020 |
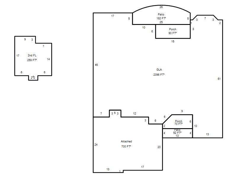
| Photo & Sketch (if available) | Comp Sales (ordered by relevancy) |
|
||||||||||||||||||
|
||||||||||||||||||||
| Value History (*The County Treasurer 405-713-1300 posts & collects actual tax amounts. Contact information HERE) | |||||||||||||
|---|---|---|---|---|---|---|---|---|---|---|---|---|---|
| Year | Market Value | Taxable Mkt Value | Gross Assessed | Exemption | Net Assessed | Millage | Est. Tax | Tax Savings | |||||
|
2026 |
436,500 |
419,895 |
46,188 |
0 |
46,188 |
105.16 |
$4,857 |
$192 |
|||||
|
2025 |
447,500 |
399,900 |
43,988 |
0 |
43,988 |
105.16 |
$4,626 |
$551 |
|||||
|
2024 |
449,500 |
380,858 |
41,893 |
0 |
41,893 |
105.03 |
$4,400 |
$793 |
|||||
|
2023 |
429,500 |
362,722 |
39,898 |
0 |
39,898 |
104.24 |
$4,159 |
$766 |
|||||
|
2022 |
375,000 |
345,450 |
37,999 |
0 |
37,999 |
104.64 |
$3,976 |
$340 |
|||||
| Property Account Status/Adjustments/Exemptions | ||
|---|---|---|
| Account # | Exemption Description | Amount |
|
R203641190 |
5% Capped Account |
0 |
| Property Deed Transaction History (Recorded in the County Clerk's Office) | ||||||||||
|---|---|---|---|---|---|---|---|---|---|---|
| Date | Type | Book | Page | Price | Grantor | Grantee | ||||
|
12/24/2025 |
|
Hmstd Off & |
$0 |
BODEY NICOLE |
BODEY NICOLE & TERRY SHANE |
|||||
|
8/1/2019 |
|
Hmstd Off & |
$0 |
HALL DAVID W & SHEILA N TRS |
BODEY NICOLE |
|||||
|
12/8/2014 |
|
Deeds |
$0 |
HALL DAVID W TRS ETAL HALL DAVID W REV TRUST |
HALL DAVID W & SHEILA N TRS |
|||||
|
11/18/2013 |
|
Deeds |
$0 |
BOW NICOLE HALL DAVID W |
HALL DAVID W TRS ETAL HALL DAVID W REV TRUST |
|||||
|
9/30/2013 |
|
Deeds |
$270,000 |
GREENHAW AUSTIN |
BOW NICOLE HALL DAVID W |
|||||
| Last Mailed Notice of Value (N.O.V.) Information/History | ||||||||
|---|---|---|---|---|---|---|---|---|
| Year | Date | Market Value | Taxable Market Value | Gross Assessed | Exemption | Net Assessed | ||
|
2026 |
02/06/2026 |
436,500 |
419,895 |
46,188 |
0 |
46,188 |
||
|
2025 |
01/31/2025 |
447,500 |
399,900 |
43,988 |
0 |
43,988 |
||
|
2024 |
01/22/2024 |
449,500 |
380,858 |
41,893 |
0 |
41,893 |
||
|
2023 |
01/23/2023 |
429,500 |
362,722 |
39,898 |
0 |
39,898 |
||
|
2022 |
02/22/2022 |
375,000 |
345,450 |
37,999 |
0 |
37,999 |
||
| Property Building Permit History | ||||||
|---|---|---|---|---|---|---|
| Issued | Permit # | Provided by | Bldg # | Description | Est Construction Cost | Status |
|
6/30/2004 |
10295823 |
EDMOND |
1 |
Main Dwellin |
230,000 |
Inactive |
| Click button on building number to access detailed information: | ||||||
|---|---|---|---|---|---|---|
| Bldg # | Vacant/Improved Land | Bldg Description | Year Built | SqFt | # Stories | |
|
1 |
Improved |
1½ Story Fin |
2005 |
2,655 |
1.5 Stories |
|