|
|
|
| Larry Stein Oklahoma County Assessor (405) 713-1200 - Public Access System |
|
|
|
|
|
|
| Real Property Display - Screen Produced 4/4/2026 5:11:45 PM | ||||
|---|---|---|---|---|
| Account: R206711410 | Type: Residential | Location: |
2325 HEAVENLY DR |
|
| Building Name/Occupant: |
|
EDMOND |
||
| Owner Name 1: | LITTLE JONATHAN & BRITLEY |
Parcel PIN#: |
4677-20-671-1410 |
|
| Owner Name 2: | 1/4 section #: |
4677 |
||
| Owner Name 3: | Parent Acct: |
4677-16-859-0330 |
||
| Billing Address: | 2325 HEAVENLY DR | Tax District: |
|
|
| City, State, Zip | EDMOND, OK 73012-3194 | School System: |
Edmond #12 |
|
|
Country: (If noted) |
Land Size: |
0.2388 Acres |
||
|
Land Value: 62,400 |
|
|||
|
Sect 20-T14N-R3W Qtr NE |
KINGSBURY RIDGE 1ST
Block
003
Lot
009
|
|||
| Full Legal Description: KINGSBURY RIDGE 1ST 003 009 |
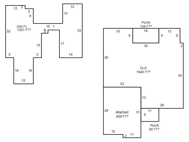
| Photo & Sketch (if available) | Comp Sales (ordered by relevancy) |
|
||||||||||||||||||
|
||||||||||||||||||||
| Value History (*The County Treasurer 405-713-1300 posts & collects actual tax amounts. Contact information HERE) | |||||||||||||
|---|---|---|---|---|---|---|---|---|---|---|---|---|---|
| Year | Market Value | Taxable Mkt Value | Gross Assessed | Exemption | Net Assessed | Millage | Est. Tax | Tax Savings | |||||
|
2026 |
549,000 |
549,000 |
60,390 |
0 |
60,390 |
105.16 |
$6,351 |
$0 |
|||||
|
2025 |
562,000 |
562,000 |
61,820 |
0 |
61,820 |
105.16 |
$6,501 |
$0 |
|||||
|
2024 |
559,500 |
559,500 |
61,545 |
0 |
61,545 |
105.03 |
$6,464 |
$0 |
|||||
|
2023 |
544,000 |
447,169 |
49,187 |
1,000 |
48,187 |
104.24 |
$5,023 |
$1,215 |
|||||
|
2022 |
477,000 |
434,145 |
47,755 |
1,000 |
46,755 |
104.64 |
$4,893 |
$598 |
|||||
| Property Account Status/Adjustments/Exemptions | ||
|---|---|---|
| Account # | Exemption Description | Amount |
|
R206711410 |
5% Capped Account |
0 |
| Property Deed Transaction History (Recorded in the County Clerk's Office) | |||||||
|---|---|---|---|---|---|---|---|
| Date | Type | Book | Page | Price | Grantor | Grantee | |
|
9/25/2023 |
|
Deeds |
$545,000 |
VAUGHAN PAULA M |
LITTLE JONATHAN & BRITLEY |
||
|
2/4/2020 |
|
Deeds |
$0 |
VAUGHAN JEFFREY K & PAULA M |
VAUGHAN PAULA M |
||
|
5/4/2010 |
|
Deeds |
$325,000 |
SILVER STONE HOMES LLC |
VAUGHAN JEFFREY K & PAULA M |
||
|
12/6/2006 |
|
Deeds |
$50,000 |
STONEBRIDGE DEVELOPMENT CO MILANCO LTD |
SILVER STONE HOMES LLC |
||
| Last Mailed Notice of Value (N.O.V.) Information/History | ||||||||
|---|---|---|---|---|---|---|---|---|
| Year | Date | Market Value | Taxable Market Value | Gross Assessed | Exemption | Net Assessed | ||
|
2025 |
01/31/2025 |
562,000 |
562,000 |
61,820 |
0 |
61,820 |
||
|
2024 |
01/22/2024 |
559,500 |
559,500 |
61,545 |
0 |
61,545 |
||
|
2023 |
01/23/2023 |
544,000 |
447,169 |
49,187 |
1,000 |
48,187 |
||
|
2022 |
02/22/2022 |
477,000 |
434,145 |
47,755 |
1,000 |
46,755 |
||
|
2019 |
02/26/2019 |
423,000 |
423,000 |
46,530 |
1,000 |
45,530 |
||
| Property Building Permit History | ||||||
|---|---|---|---|---|---|---|
| Issued | Permit # | Provided by | Bldg # | Description | Est Construction Cost | Status |
|
6/22/2015 |
10473856 |
EDMOND |
1 |
Swimming Pool |
50,000 |
Inactive |
|
12/30/2006 |
10331511 |
EDMOND |
1 |
Main Dwellin |
280,000 |
Inactive |
| Click button on building number to access detailed information: | ||||||
|---|---|---|---|---|---|---|
| Bldg # | Vacant/Improved Land | Bldg Description | Year Built | SqFt | # Stories | |
|
1 |
Improved |
2 Story |
2007 |
3,261 |
2 Stories |
|