|
|
|
| Larry Stein Oklahoma County Assessor (405) 713-1200 - Public Access System |
|
|
|
|
|
|
| Real Property Display - Screen Produced 4/6/2026 4:51:40 AM | ||||
|---|---|---|---|---|
| Account: R182061900 | Type: Residential | Location: |
600 KAY HILL LN |
|
| Building Name/Occupant: |
|
EDMOND |
||
| Owner Name 1: | TINCUP INVESTMENTS LLC |
Parcel PIN#: |
4704-18-206-1900 |
|
| Owner Name 2: | 1/4 section #: |
4704 |
||
| Owner Name 3: | Parent Acct: |
|
||
| Billing Address: | 8225 CREW LN | Tax District: |
|
|
| City, State, Zip | EDMOND, OK 73034 | School System: |
Edmond #12 |
|
|
Country: (If noted) |
Land Size: |
0.1988 Acres |
||
|
Land Value: 32,900 |
|
|||
|
Sect 26-T14N-R3W Qtr NW |
MEADOW LAKES SEC 4
Block
015
Lot
008
|
|||
| Full Legal Description: MEADOW LAKES SEC 4 015 008 |
| Photo & Sketch (if available) | Comp Sales (ordered by relevancy) |
|
||||||||||||||||||
|
||||||||||||||||||||
| Value History (*The County Treasurer 405-713-1300 posts & collects actual tax amounts. Contact information HERE) | |||||||||||||
|---|---|---|---|---|---|---|---|---|---|---|---|---|---|
| Year | Market Value | Taxable Mkt Value | Gross Assessed | Exemption | Net Assessed | Millage | Est. Tax | Tax Savings | |||||
|
2026 |
185,500 |
163,490 |
17,983 |
0 |
17,983 |
105.16 |
$1,891 |
$255 |
|||||
|
2025 |
182,500 |
155,705 |
17,127 |
0 |
17,127 |
105.16 |
$1,801 |
$310 |
|||||
|
2024 |
179,500 |
148,291 |
16,311 |
0 |
16,311 |
105.03 |
$1,713 |
$361 |
|||||
|
2023 |
168,500 |
141,230 |
15,534 |
0 |
15,534 |
104.24 |
$1,619 |
$313 |
|||||
|
2022 |
150,000 |
134,505 |
14,795 |
0 |
14,795 |
104.64 |
$1,548 |
$178 |
|||||
| Property Account Status/Adjustments/Exemptions | ||
|---|---|---|
| Account # | Exemption Description | Amount |
|
R182061900 |
5% Capped Account |
0 |
| Property Deed Transaction History (Recorded in the County Clerk's Office) | |||||||
|---|---|---|---|---|---|---|---|
| Date | Type | Book | Page | Price | Grantor | Grantee | |
|
6/11/2018 |
|
Hmstd Off & |
$0 |
600 KAY HILL LN TRUST |
WML PROPERTIES LP |
||
|
6/11/2018 |
|
Deeds |
$115,000 |
WML PROPERTIES LP |
TINCUP INVESTMENTS LLC |
||
|
2/2/2015 |
|
Hmstd Off & |
$0 |
WML PROEPRTIES LP |
600 KAY HILL LN TRUST |
||
|
12/14/2012 |
|
Deeds |
$91,500 |
SPRUILL DAVID W & NANCY A |
WML PROEPRTIES LP |
||
|
4/1/1986 |
|
Historical |
$55,000 |
|
SPRUILL DAVID W & NANCY A |
||
| Last Mailed Notice of Value (N.O.V.) Information/History | ||||||||
|---|---|---|---|---|---|---|---|---|
| Year | Date | Market Value | Taxable Market Value | Gross Assessed | Exemption | Net Assessed | ||
|
2026 |
02/06/2026 |
185,500 |
163,490 |
17,983 |
0 |
17,983 |
||
|
2025 |
01/31/2025 |
182,500 |
155,705 |
17,127 |
0 |
17,127 |
||
|
2024 |
01/22/2024 |
179,500 |
148,291 |
16,311 |
0 |
16,311 |
||
|
2023 |
01/23/2023 |
168,500 |
141,230 |
15,534 |
0 |
15,534 |
||
|
2022 |
02/22/2022 |
150,000 |
134,505 |
14,795 |
0 |
14,795 |
||
| Property Building Permit History | ||||||
|---|---|---|---|---|---|---|
| Issued | Permit # | Provided by | Bldg # | Description | Est Construction Cost | Status |
|
8/27/1992 |
10257310 |
EDMOND |
1 |
Add On |
300 |
Inactive |
| Click button on building number to access detailed information: | ||||||
|---|---|---|---|---|---|---|
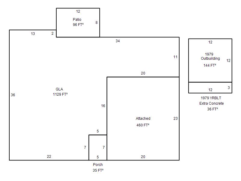
| Bldg # | Vacant/Improved Land | Bldg Description | Year Built | SqFt | # Stories | |
|
1 |
Improved |
Ranch 1 Story |
1975 |
1,129 |
1 Stories |
|