|
|
|
| Larry Stein Oklahoma County Assessor (405) 713-1200 - Public Access System |
|
|
|
|
|
|
| Real Property Display - Screen Produced 4/8/2026 6:18:47 AM | ||||
|---|---|---|---|---|
| Account: R182062740 | Type: Residential | Location: |
624 WINDING LN |
|
| Building Name/Occupant: |
|
EDMOND |
||
| Owner Name 1: | BAF ASSETS 6 LLC |
Parcel PIN#: |
4704-18-206-2740 |
|
| Owner Name 2: | 1/4 section #: |
4704 |
||
| Owner Name 3: | Parent Acct: |
|
||
| Billing Address: | 5001 PLAZA ON THE LK, Unit 200 | Tax District: |
|
|
| City, State, Zip | AUSTIN, TX 78746-1053 | School System: |
Edmond #12 |
|
|
Country: (If noted) |
Land Size: |
0.1717 Acres |
||
|
Land Value: 28,424 |
|
|||
|
Sect 26-T14N-R3W Qtr NW |
MEADOW LAKES SEC 4
Block
019
Lot
014
|
|||
| Full Legal Description: MEADOW LAKES SEC 4 019 014 |
| Photo & Sketch (if available) | Comp Sales (ordered by relevancy) |
|
||||||||||||||||||
|
||||||||||||||||||||
| Value History (*The County Treasurer 405-713-1300 posts & collects actual tax amounts. Contact information HERE) | |||||||||||||
|---|---|---|---|---|---|---|---|---|---|---|---|---|---|
| Year | Market Value | Taxable Mkt Value | Gross Assessed | Exemption | Net Assessed | Millage | Est. Tax | Tax Savings | |||||
|
2026 |
181,500 |
181,500 |
19,965 |
0 |
19,965 |
105.16 |
$2,100 |
$0 |
|||||
|
2025 |
178,500 |
178,500 |
19,635 |
0 |
19,635 |
105.16 |
$2,065 |
$0 |
|||||
|
2024 |
178,500 |
178,500 |
19,635 |
0 |
19,635 |
105.03 |
$2,062 |
$0 |
|||||
|
2023 |
167,500 |
155,400 |
17,094 |
0 |
17,094 |
104.24 |
$1,782 |
$139 |
|||||
|
2022 |
148,000 |
148,000 |
16,280 |
0 |
16,280 |
104.64 |
$1,704 |
$0 |
|||||
| Property Account Status/Adjustments/Exemptions | ||
|---|---|---|
| Account # | Exemption Description | Amount |
|
R182062740 |
5% Capped Account |
0 |
| Property Deed Transaction History (Recorded in the County Clerk's Office) | ||||||||||
|---|---|---|---|---|---|---|---|---|---|---|
| Date | Type | Book | Page | Price | Grantor | Grantee | ||||
|
3/1/2023 |
|
Mult Parcel |
$1,362,000 |
BAF 2 LLC |
BAF ASSETS 6 LLC |
|||||
|
7/9/2021 |
|
Mult Parcel |
$1,850,000 |
189 PROPERTIES LLC |
BAF 2 LLC |
|||||
|
2/12/2020 |
|
Deeds |
$129,000 |
OSGOOD CHRIS & BERNADETTE |
189 PROPERTIES LLC |
|||||
|
1/6/2014 |
|
Hmstd Off & |
$0 |
OSGOOD O EMMET & VIRGINIA TRS OSGOOD FAMILY REV TRUST |
OSGOOD CHRIS & BERNADETTE |
|||||
|
8/27/1997 |
|
Historical |
$0 |
OSGOOD EMMET & VIRGINIA |
OSGOOD O EMMET & VIRGINIA TRS |
|||||
| Last Mailed Notice of Value (N.O.V.) Information/History | ||||||||
|---|---|---|---|---|---|---|---|---|
| Year | Date | Market Value | Taxable Market Value | Gross Assessed | Exemption | Net Assessed | ||
|
2026 |
02/06/2026 |
181,500 |
181,500 |
19,965 |
0 |
19,965 |
||
|
2024 |
01/22/2024 |
178,500 |
178,500 |
19,635 |
0 |
19,635 |
||
|
2023 |
01/23/2023 |
167,500 |
155,400 |
17,094 |
0 |
17,094 |
||
|
2022 |
02/22/2022 |
148,000 |
148,000 |
16,280 |
0 |
16,280 |
||
|
2021 |
02/24/2021 |
129,500 |
129,500 |
14,245 |
0 |
14,245 |
||
| Property Building Permit History | |||||||||||
|---|---|---|---|---|---|---|---|---|---|---|---|
| Issued | Permit # | Provided by | Bldg # | Description | Est Construction Cost | Status | |||||
| No Building Permit records returned. | |||||||||||
| Click button on building number to access detailed information: | ||||||
|---|---|---|---|---|---|---|
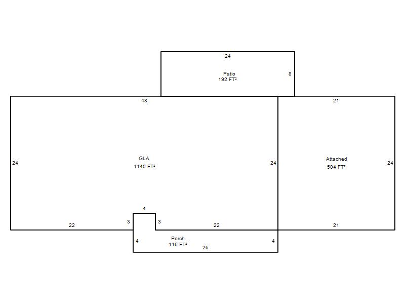
| Bldg # | Vacant/Improved Land | Bldg Description | Year Built | SqFt | # Stories | |
|
1 |
Improved |
Ranch 1 Story |
1974 |
1,140 |
1 Stories |
|