|
|
|
| Larry Stein Oklahoma County Assessor (405) 713-1200 - Public Access System |
|
|
|
|
|
|
| Real Property Display - Screen Produced 4/6/2026 2:01:07 PM | ||||
|---|---|---|---|---|
| Account: R122641000 | Type: Residential | Location: |
2220 CROSSTRAILS |
|
| Building Name/Occupant: |
|
EDMOND |
||
| Owner Name 1: | LEWIS TINA |
Parcel PIN#: |
4707-12-264-1000 |
|
| Owner Name 2: | 1/4 section #: |
4707 |
||
| Owner Name 3: | Parent Acct: |
|
||
| Billing Address: | 21301 N MAY | Tax District: |
|
|
| City, State, Zip | EDMOND, OK 73012 | School System: |
Edmond #12 |
|
|
Country: (If noted) |
Land Size: |
0.1760 Acres |
||
|
Land Value: 32,589 |
|
|||
|
Sect 27-T14N-R3W Qtr SW |
OAK BROOK 1ST
Block
001
Lot
001
|
|||
| Full Legal Description: OAK BROOK 1ST 001 001 |
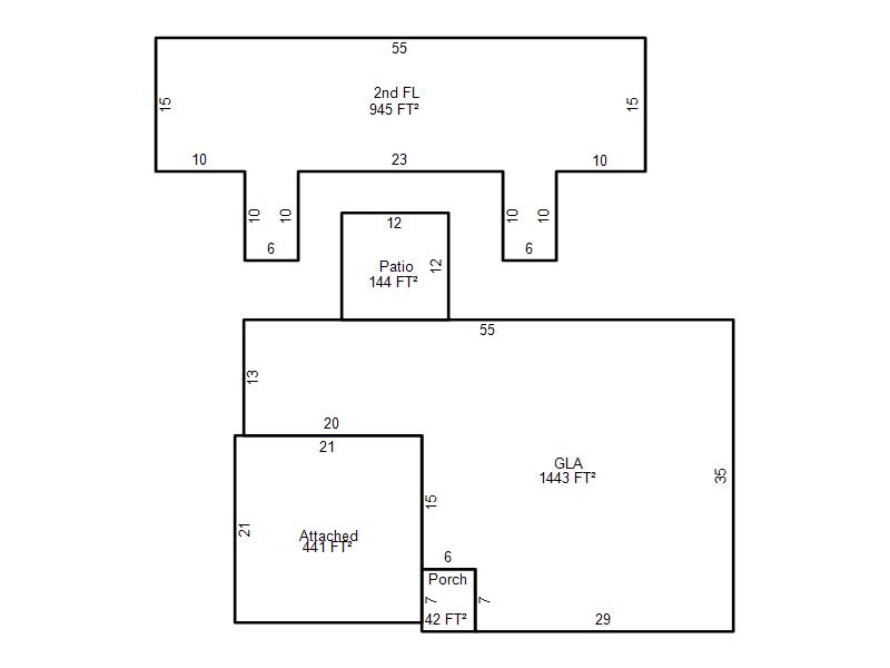
| Photo & Sketch (if available) | Comp Sales (ordered by relevancy) |
|
||||||||||||||||||
|
||||||||||||||||||||
| Value History (*The County Treasurer 405-713-1300 posts & collects actual tax amounts. Contact information HERE) | |||||||||||||
|---|---|---|---|---|---|---|---|---|---|---|---|---|---|
| Year | Market Value | Taxable Mkt Value | Gross Assessed | Exemption | Net Assessed | Millage | Est. Tax | Tax Savings | |||||
|
2026 |
279,500 |
272,880 |
30,016 |
0 |
30,016 |
105.16 |
$3,157 |
$77 |
|||||
|
2025 |
268,000 |
259,886 |
28,587 |
0 |
28,587 |
105.16 |
$3,006 |
$94 |
|||||
|
2024 |
268,500 |
247,511 |
27,225 |
0 |
27,225 |
105.03 |
$2,860 |
$242 |
|||||
|
2023 |
254,000 |
235,725 |
25,929 |
0 |
25,929 |
104.24 |
$2,703 |
$210 |
|||||
|
2022 |
224,500 |
224,500 |
24,695 |
0 |
24,695 |
104.64 |
$2,584 |
$0 |
|||||
| Property Account Status/Adjustments/Exemptions | ||
|---|---|---|
| Account # | Exemption Description | Amount |
|
R122641000 |
5% Capped Account |
0 |
| Property Deed Transaction History (Recorded in the County Clerk's Office) | ||||||||||
|---|---|---|---|---|---|---|---|---|---|---|
| Date | Type | Book | Page | Price | Grantor | Grantee | ||||
|
6/30/2021 |
|
Deeds |
$212,000 |
BALL STEVE |
LEWIS TINA |
|||||
|
9/25/2017 |
|
Deeds |
$170,000 |
KNOPPS TIM & KARYL |
BALL STEVE |
|||||
|
1/4/2008 |
|
Other |
$0 |
SECRETARY OF HOUSING & URBAN DEV |
KNOPPS TIM & KARYL |
|||||
|
7/24/2007 |
|
Hmstd Off & |
$0 |
HEEG AARON & MELODY |
SECRETARY OF HOUSING & URBAN DEV |
|||||
|
3/29/2002 |
|
Deeds |
$126,000 |
WESTCLIFFE PROPERTIES LLC |
HEEG AARON & MELODY |
|||||
| Last Mailed Notice of Value (N.O.V.) Information/History | ||||||||
|---|---|---|---|---|---|---|---|---|
| Year | Date | Market Value | Taxable Market Value | Gross Assessed | Exemption | Net Assessed | ||
|
2026 |
02/06/2026 |
279,500 |
272,880 |
30,016 |
0 |
30,016 |
||
|
2025 |
01/31/2025 |
268,000 |
259,886 |
28,587 |
0 |
28,587 |
||
|
2024 |
01/22/2024 |
268,500 |
247,511 |
27,225 |
0 |
27,225 |
||
|
2023 |
01/23/2023 |
254,000 |
235,725 |
25,929 |
0 |
25,929 |
||
|
2022 |
02/22/2022 |
224,500 |
224,500 |
24,695 |
0 |
24,695 |
||
| Property Building Permit History | |||||||||||
|---|---|---|---|---|---|---|---|---|---|---|---|
| Issued | Permit # | Provided by | Bldg # | Description | Est Construction Cost | Status | |||||
| No Building Permit records returned. | |||||||||||
| Click button on building number to access detailed information: | ||||||
|---|---|---|---|---|---|---|
| Bldg # | Vacant/Improved Land | Bldg Description | Year Built | SqFt | # Stories | |
|
1 |
Improved |
2 Story |
1985 |
2,388 |
2 Stories |
|