|
|
|
| Larry Stein Oklahoma County Assessor (405) 713-1200 - Public Access System |
|
|
|
|
|
|
| Real Property Display - Screen Produced 4/6/2026 2:03:37 PM | ||||
|---|---|---|---|---|
| Account: R122641930 | Type: Residential | Location: |
104 N GRAND FORK DR |
|
| Building Name/Occupant: |
|
EDMOND |
||
| Owner Name 1: | BURGRESS DUANE L & SHARON F TRS |
Parcel PIN#: |
4707-12-264-1930 |
|
| Owner Name 2: | BURGRESS DUANE L & SHARON F LIV TRUST | 1/4 section #: |
4707 |
|
| Owner Name 3: | Parent Acct: |
|
||
| Billing Address: | 104 N GRAND FORK DR | Tax District: |
|
|
| City, State, Zip | EDMOND, OK 73003 | School System: |
Edmond #12 |
|
|
Country: (If noted) |
UNITED STATES |
Land Size: |
0.1687 Acres |
|
|
Land Value: 31,238 |
|
|||
|
Sect 27-T14N-R3W Qtr SW |
OAK BROOK 1ST
Block
007
Lot
021
|
|||
| Full Legal Description: OAK BROOK 1ST 007 021 |
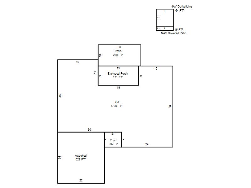
| Photo & Sketch (if available) | Comp Sales (ordered by relevancy) |
|
||||||||||||||||||
|
||||||||||||||||||||
| Value History (*The County Treasurer 405-713-1300 posts & collects actual tax amounts. Contact information HERE) | |||||||||||||
|---|---|---|---|---|---|---|---|---|---|---|---|---|---|
| Year | Market Value | Taxable Mkt Value | Gross Assessed | Exemption | Net Assessed | Millage | Est. Tax | Tax Savings | |||||
|
2026 |
241,500 |
200,495 |
22,054 |
1,000 |
21,054 |
105.16 |
$2,214 |
$579 |
|||||
|
2025 |
234,500 |
194,656 |
21,411 |
1,000 |
20,411 |
105.16 |
$2,147 |
$566 |
|||||
|
2024 |
233,000 |
188,987 |
20,788 |
1,000 |
19,788 |
105.03 |
$2,078 |
$614 |
|||||
|
2023 |
220,000 |
183,483 |
20,183 |
0 |
20,183 |
104.24 |
$2,104 |
$419 |
|||||
|
2022 |
195,500 |
174,746 |
19,221 |
0 |
19,221 |
104.64 |
$2,011 |
$239 |
|||||
| Property Account Status/Adjustments/Exemptions | ||
|---|---|---|
| Account # | Exemption Description | Amount |
|
R122641930 |
Freeze Senior Valuation |
0 |
|
R122641930 |
Homestead |
1,000 |
| Property Deed Transaction History (Recorded in the County Clerk's Office) | ||||||||||
|---|---|---|---|---|---|---|---|---|---|---|
| Date | Type | Book | Page | Price | Grantor | Grantee | ||||
|
7/7/2021 |
|
Hmstd Off & |
$ |
BURGESS DUANE L & SHARON F |
BURGRESS DUANE L & SHARON F TRS |
|||||
|
3/27/2014 |
|
Deeds |
$0 |
BURGESS DUANE L |
BURGESS DUANE L & SHARON F |
|||||
|
2/26/2010 |
|
Deeds |
$145,000 |
BURCJFIEL RANDOLPH D & KRISTI R |
BURGESS DUANE L |
|||||
|
3/29/2007 |
|
Deeds |
$138,500 |
KLOTZ CHRISTINE |
BURCJFIEL RANDOLPH D & KRISTI R |
|||||
|
2/25/2005 |
|
Deeds |
$123,000 |
JONES CHRISTOPHER M & SHANNA M |
KLOTZ CHRISTINE |
|||||
| Last Mailed Notice of Value (N.O.V.) Information/History | ||||||||
|---|---|---|---|---|---|---|---|---|
| Year | Date | Market Value | Taxable Market Value | Gross Assessed | Exemption | Net Assessed | ||
|
2026 |
02/06/2026 |
241,500 |
200,495 |
22,054 |
1,000 |
21,054 |
||
|
2025 |
01/31/2025 |
234,500 |
194,656 |
21,411 |
1,000 |
20,411 |
||
|
2024 |
01/22/2024 |
233,000 |
188,987 |
20,788 |
1,000 |
19,788 |
||
|
2023 |
01/23/2023 |
220,000 |
183,483 |
20,183 |
0 |
20,183 |
||
|
2022 |
02/22/2022 |
195,500 |
174,746 |
19,221 |
0 |
19,221 |
||
| Property Building Permit History | |||||||||||
|---|---|---|---|---|---|---|---|---|---|---|---|
| Issued | Permit # | Provided by | Bldg # | Description | Est Construction Cost | Status | |||||
| No Building Permit records returned. | |||||||||||
| Click button on building number to access detailed information: | ||||||
|---|---|---|---|---|---|---|
| Bldg # | Vacant/Improved Land | Bldg Description | Year Built | SqFt | # Stories | |
|
1 |
Improved |
Ranch 1 Story |
1984 |
1,728 |
1 Stories |
|