|
|
|
| Larry Stein Oklahoma County Assessor (405) 713-1200 - Public Access System |
|
|
|
|
|
|
| Real Property Display - Screen Produced 4/6/2026 4:04:03 AM | ||||
|---|---|---|---|---|
| Account: R125071650 | Type: Residential | Location: |
1704 ZION PL |
|
| Building Name/Occupant: |
|
EDMOND |
||
| Owner Name 1: | PAN WEI WEI |
Parcel PIN#: |
4708-12-507-1650 |
|
| Owner Name 2: | LY HUNG C | 1/4 section #: |
4708 |
|
| Owner Name 3: | Parent Acct: |
|
||
| Billing Address: | 1704 ZION PL | Tax District: |
|
|
| City, State, Zip | EDMOND, OK 73003 | School System: |
Edmond #12 |
|
|
Country: (If noted) |
Land Size: |
0.1791 Acres |
||
|
Land Value: 31,980 |
|
|||
|
Sect 27-T14N-R3W Qtr NW |
PARK LANE ESTATES TO EDMOND
Block
003
Lot
005
|
|||
| Full Legal Description: PARK LANE ESTATES TO EDMOND 003 005 |
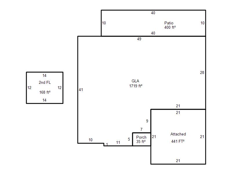
| Photo & Sketch (if available) | Comp Sales (ordered by relevancy) |
|
||||||||||||||||||
|
||||||||||||||||||||
| Value History (*The County Treasurer 405-713-1300 posts & collects actual tax amounts. Contact information HERE) | |||||||||||||
|---|---|---|---|---|---|---|---|---|---|---|---|---|---|
| Year | Market Value | Taxable Mkt Value | Gross Assessed | Exemption | Net Assessed | Millage | Est. Tax | Tax Savings | |||||
|
2026 |
263,500 |
210,280 |
23,130 |
1,000 |
22,130 |
105.16 |
$2,327 |
$721 |
|||||
|
2025 |
261,500 |
204,156 |
22,457 |
1,000 |
21,457 |
105.16 |
$2,256 |
$768 |
|||||
|
2024 |
259,500 |
198,210 |
21,803 |
1,000 |
20,803 |
105.03 |
$2,185 |
$813 |
|||||
|
2023 |
250,000 |
192,437 |
21,167 |
1,000 |
20,167 |
104.24 |
$2,102 |
$764 |
|||||
|
2022 |
214,000 |
186,833 |
20,551 |
1,000 |
19,551 |
104.64 |
$2,046 |
$417 |
|||||
| Property Account Status/Adjustments/Exemptions | ||
|---|---|---|
| Account # | Exemption Description | Amount |
|
R125071650 |
3% Cap Homestead |
0 |
|
R125071650 |
Homestead |
1,000 |
| Property Deed Transaction History (Recorded in the County Clerk's Office) | ||||||||||
|---|---|---|---|---|---|---|---|---|---|---|
| Date | Type | Book | Page | Price | Grantor | Grantee | ||||
|
12/14/2022 |
|
Deeds |
$0 |
PAN WEI WEI |
PAN WEI WEI |
|||||
|
7/16/2013 |
|
Deeds |
$0 |
SCHUNEMAN PAMELA H & GEORGE B |
SCHUNEMAN PAMELA II |
|||||
|
7/16/2013 |
|
Deeds |
$162,000 |
SCHUNEMAN PAMELA II |
PAN WEI WEI |
|||||
|
12/12/2005 |
|
Deeds |
$144,500 |
LEVESCY CALE |
SCHUNEMAN PAMELA H & GEORGE B |
|||||
|
6/2/2000 |
|
Other |
$0 |
SECRETARY OF HOUSING & URBAN DEV |
LEVESCY CALE |
|||||
| Last Mailed Notice of Value (N.O.V.) Information/History | ||||||||
|---|---|---|---|---|---|---|---|---|
| Year | Date | Market Value | Taxable Market Value | Gross Assessed | Exemption | Net Assessed | ||
|
2026 |
02/06/2026 |
263,500 |
210,280 |
23,130 |
1,000 |
22,130 |
||
|
2025 |
01/31/2025 |
261,500 |
204,156 |
22,457 |
1,000 |
21,457 |
||
|
2024 |
01/22/2024 |
259,500 |
198,210 |
21,803 |
1,000 |
20,803 |
||
|
2023 |
01/23/2023 |
250,000 |
192,437 |
21,167 |
1,000 |
20,167 |
||
|
2023 |
03/02/2023 |
250,000 |
192,437 |
21,167 |
1,000 |
20,167 |
||
| Property Building Permit History | |||||||||||
|---|---|---|---|---|---|---|---|---|---|---|---|
| Issued | Permit # | Provided by | Bldg # | Description | Est Construction Cost | Status | |||||
| No Building Permit records returned. | |||||||||||
| Click button on building number to access detailed information: | ||||||
|---|---|---|---|---|---|---|
| Bldg # | Vacant/Improved Land | Bldg Description | Year Built | SqFt | # Stories | |
|
1 |
Improved |
1½ Story Fin |
1990 |
1,887 |
1.5 Stories |
|