|
|
|
| Larry Stein Oklahoma County Assessor (405) 713-1200 - Public Access System |
|
|
|
|
|
|
| Real Property Display - Screen Produced 4/4/2026 11:47:28 AM | ||||
|---|---|---|---|---|
| Account: R141621190 | Type: Residential | Location: |
2309 CHISHOLM TRAIL BLVD |
|
| Building Name/Occupant: |
|
EDMOND |
||
| Owner Name 1: | HAYS CHARLES M & CONSTANCE J CO TRS |
Parcel PIN#: |
4710-14-162-1190 |
|
| Owner Name 2: | HAYS FAMILY TRUST | 1/4 section #: |
4710 |
|
| Owner Name 3: | Parent Acct: |
|
||
| Billing Address: | 2309 CHISHOLM TRAIL BLVD | Tax District: |
|
|
| City, State, Zip | EDMOND , OK 73012-4512 | School System: |
Edmond #12 |
|
|
Country: (If noted) |
Land Size: |
0.5481 Acres |
||
|
Land Value: 83,566 |
|
|||
|
Sect 28-T14N-R3W Qtr SE |
THE TRAILS
Block
000
Lot
000
|
|||
| Full Legal Description: THE TRAILS 000 000 LOT 3 BLK 3 PLUS LOT 20 BLK 10 EX BEG NW/C TH SLY ALONG A CURVE TO THE LEFT 51.64FT SELY167.46FT TO NE/C LT 20 TH NWLY171.85FT TO BEG |
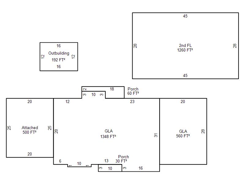
| Photo & Sketch (if available) | Comp Sales (ordered by relevancy) |
|
||||||||||||||||||
|
||||||||||||||||||||
| Value History (*The County Treasurer 405-713-1300 posts & collects actual tax amounts. Contact information HERE) | |||||||||||||
|---|---|---|---|---|---|---|---|---|---|---|---|---|---|
| Year | Market Value | Taxable Mkt Value | Gross Assessed | Exemption | Net Assessed | Millage | Est. Tax | Tax Savings | |||||
|
2026 |
352,500 |
322,897 |
35,518 |
0 |
35,518 |
105.16 |
$3,735 |
$342 |
|||||
|
2025 |
353,500 |
307,521 |
33,826 |
0 |
33,826 |
105.16 |
$3,557 |
$532 |
|||||
|
2024 |
346,000 |
292,878 |
32,216 |
0 |
32,216 |
105.03 |
$3,384 |
$614 |
|||||
|
2023 |
337,500 |
278,932 |
30,682 |
0 |
30,682 |
104.24 |
$3,198 |
$672 |
|||||
|
2022 |
288,500 |
265,650 |
29,221 |
0 |
29,221 |
104.64 |
$3,058 |
$263 |
|||||
| Property Account Status/Adjustments/Exemptions | ||
|---|---|---|
| Account # | Exemption Description | Amount |
|
R141621190 |
5% Capped Account |
0 |
| Property Deed Transaction History (Recorded in the County Clerk's Office) | ||||||||||
|---|---|---|---|---|---|---|---|---|---|---|
| Date | Type | Book | Page | Price | Grantor | Grantee | ||||
|
8/17/2020 |
|
Hmstd Off & |
$0 |
HAYS MICHAEL & CONSTANCE |
HAYS CHARLES M & CONSTANCE J CO TRS |
|||||
|
4/15/2003 |
|
Deeds |
$174,000 |
YONTZ DARREL A & PAULA R |
HAYS MICHAEL & CONSTANCE |
|||||
|
12/21/1999 |
|
Deeds |
$167,500 |
FIELDS STEVEN L & TRACEY L |
YONTZ DARREL A & PAULA R |
|||||
|
8/5/1997 |
|
Historical |
$145,000 |
EASTON ROBERT & GLORIA TRS |
FIELDS STEVEN L & TRACEY L |
|||||
|
11/14/1994 |
|
Historical |
$130,000 |
HUFF LONNIE DALE |
EASTON ROBERT & GLORIA TRS |
|||||
| Last Mailed Notice of Value (N.O.V.) Information/History | ||||||||
|---|---|---|---|---|---|---|---|---|
| Year | Date | Market Value | Taxable Market Value | Gross Assessed | Exemption | Net Assessed | ||
|
2026 |
02/06/2026 |
352,500 |
322,897 |
35,518 |
0 |
35,518 |
||
|
2025 |
01/31/2025 |
353,500 |
307,521 |
33,826 |
0 |
33,826 |
||
|
2024 |
01/22/2024 |
346,000 |
292,878 |
32,216 |
0 |
32,216 |
||
|
2023 |
01/23/2023 |
337,500 |
278,932 |
30,682 |
0 |
30,682 |
||
|
2022 |
02/22/2022 |
288,500 |
265,650 |
29,221 |
0 |
29,221 |
||
| Property Building Permit History | |||||||||||
|---|---|---|---|---|---|---|---|---|---|---|---|
| Issued | Permit # | Provided by | Bldg # | Description | Est Construction Cost | Status | |||||
| No Building Permit records returned. | |||||||||||
| Click button on building number to access detailed information: | ||||||
|---|---|---|---|---|---|---|
| Bldg # | Vacant/Improved Land | Bldg Description | Year Built | SqFt | # Stories | |
|
1 |
Improved |
2 Story |
1973 |
3,168 |
2 Stories |
|