|
|
|
| Larry Stein Oklahoma County Assessor (405) 713-1200 - Public Access System |
|
|
|
|
|
|
| Real Property Display - Screen Produced 4/4/2026 11:47:28 AM | ||||
|---|---|---|---|---|
| Account: R141621300 | Type: Residential | Location: |
12 S TRAIL RIDGE RD |
|
| Building Name/Occupant: |
|
EDMOND |
||
| Owner Name 1: | BATCHELOR MALCOLM S |
Parcel PIN#: |
4710-14-162-1300 |
|
| Owner Name 2: | BATCHELOR LAURA K | 1/4 section #: |
4710 |
|
| Owner Name 3: | Parent Acct: |
|
||
| Billing Address: | PO BOX 6428 | Tax District: |
|
|
| City, State, Zip | EDMOND , OK 73083 | School System: |
Edmond #12 |
|
|
Country: (If noted) |
Land Size: |
0.3269 Acres |
||
|
Land Value: 49,840 |
|
|||
|
Sect 28-T14N-R3W Qtr SE |
THE TRAILS
Block
005
Lot
003
|
|||
| Full Legal Description: THE TRAILS 005 003 |
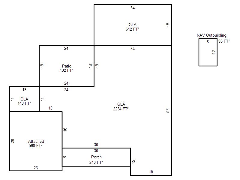
| Photo & Sketch (if available) | Comp Sales (ordered by relevancy) |
|
||||||||||||||||||
|
||||||||||||||||||||
| Value History (*The County Treasurer 405-713-1300 posts & collects actual tax amounts. Contact information HERE) | |||||||||||||
|---|---|---|---|---|---|---|---|---|---|---|---|---|---|
| Year | Market Value | Taxable Mkt Value | Gross Assessed | Exemption | Net Assessed | Millage | Est. Tax | Tax Savings | |||||
|
2026 |
410,000 |
384,159 |
42,257 |
0 |
42,257 |
105.16 |
$4,444 |
$299 |
|||||
|
2025 |
412,000 |
365,866 |
40,244 |
0 |
40,244 |
105.16 |
$4,232 |
$534 |
|||||
|
2024 |
405,500 |
348,444 |
38,328 |
0 |
38,328 |
105.03 |
$4,026 |
$659 |
|||||
|
2023 |
389,000 |
331,852 |
36,503 |
0 |
36,503 |
104.24 |
$3,805 |
$655 |
|||||
|
2022 |
338,000 |
316,050 |
34,765 |
0 |
34,765 |
104.64 |
$3,638 |
$253 |
|||||
| Property Account Status/Adjustments/Exemptions | ||
|---|---|---|
| Account # | Exemption Description | Amount |
|
R141621300 |
5% Capped Account |
0 |
| Property Deed Transaction History (Recorded in the County Clerk's Office) | ||||||||||
|---|---|---|---|---|---|---|---|---|---|---|
| Date | Type | Book | Page | Price | Grantor | Grantee | ||||
|
9/25/2020 |
|
Deeds |
$316,000 |
HAYES DANIEL G |
BATCHELOR MALCOLM S |
|||||
|
7/27/2019 |
|
Deeds |
$241,000 |
AMADO PINEDA DAVID |
HAYES DANIEL G |
|||||
|
10/15/2012 |
|
Deeds |
$220,000 |
WEKENBORG JAMES T & STACI P |
AMADO PINEDA DAVID |
|||||
|
6/17/2003 |
|
Deeds |
$198,000 |
GROESCHEL CRAIG T & AMY E |
WEKENBORG JAMES T & STACI P |
|||||
|
3/17/1998 |
|
Historical |
$149,500 |
PARKS STEVEN D & BRENDA J |
GROESCHEL CRAIG T & AMY E |
|||||
| Last Mailed Notice of Value (N.O.V.) Information/History | ||||||||
|---|---|---|---|---|---|---|---|---|
| Year | Date | Market Value | Taxable Market Value | Gross Assessed | Exemption | Net Assessed | ||
|
2026 |
02/06/2026 |
410,000 |
384,159 |
42,257 |
0 |
42,257 |
||
|
2025 |
01/31/2025 |
412,000 |
365,866 |
40,244 |
0 |
40,244 |
||
|
2024 |
01/22/2024 |
405,500 |
348,444 |
38,328 |
0 |
38,328 |
||
|
2023 |
01/23/2023 |
389,000 |
331,852 |
36,503 |
0 |
36,503 |
||
|
2022 |
02/22/2022 |
338,000 |
316,050 |
34,765 |
0 |
34,765 |
||
| Property Building Permit History | ||||||
|---|---|---|---|---|---|---|
| Issued | Permit # | Provided by | Bldg # | Description | Est Construction Cost | Status |
|
9/3/1993 |
10234757 |
EDMOND |
1 |
Add On |
30,000 |
Inactive |
|
10/17/1991 |
10234756 |
EDMOND |
1 |
Add On |
800 |
Inactive |
| Click button on building number to access detailed information: | ||||||
|---|---|---|---|---|---|---|
| Bldg # | Vacant/Improved Land | Bldg Description | Year Built | SqFt | # Stories | |
|
1 |
Improved |
Ranch 1 Story |
1973 |
2,989 |
1 Stories |
|