|
|
|
| Larry Stein Oklahoma County Assessor (405) 713-1200 - Public Access System |
|
|
|
|
|
|
| Real Property Display - Screen Produced 4/4/2026 11:39:20 AM | ||||
|---|---|---|---|---|
| Account: R141621380 | Type: Residential | Location: |
101 S EASY ST |
|
| Building Name/Occupant: |
|
EDMOND |
||
| Owner Name 1: | WATSON JAMES P & DEBORAH L |
Parcel PIN#: |
4710-14-162-1380 |
|
| Owner Name 2: | 1/4 section #: |
4710 |
||
| Owner Name 3: | Parent Acct: |
|
||
| Billing Address: | 2801 WINDMILL RD | Tax District: |
|
|
| City, State, Zip | EDMOND, OK 73013 | School System: |
Edmond #12 |
|
|
Country: (If noted) |
Land Size: |
0.3122 Acres |
||
|
Land Value: 47,600 |
|
|||
|
Sect 28-T14N-R3W Qtr SE |
THE TRAILS
Block
005
Lot
011
|
|||
| Full Legal Description: THE TRAILS 005 011 |
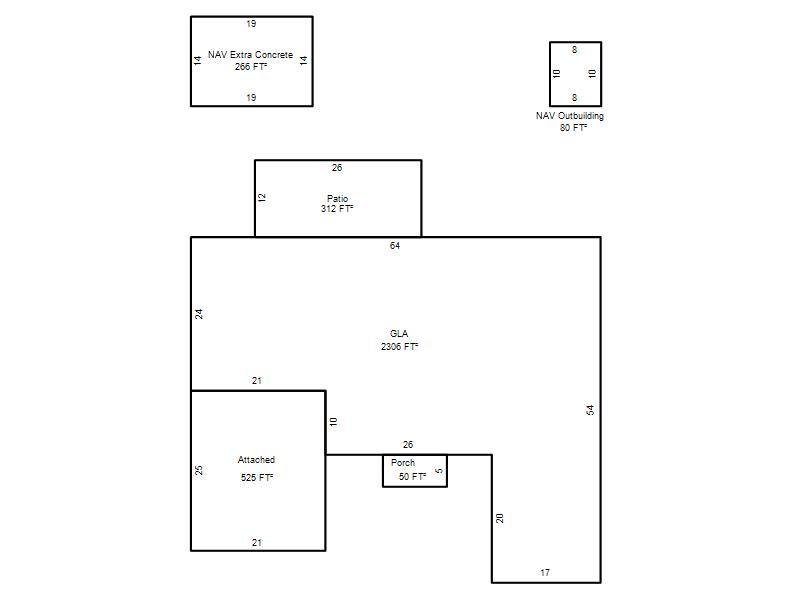
| Photo & Sketch (if available) | Comp Sales (ordered by relevancy) |
|
||||||||||||||||||
|
||||||||||||||||||||
| Value History (*The County Treasurer 405-713-1300 posts & collects actual tax amounts. Contact information HERE) | |||||||||||||
|---|---|---|---|---|---|---|---|---|---|---|---|---|---|
| Year | Market Value | Taxable Mkt Value | Gross Assessed | Exemption | Net Assessed | Millage | Est. Tax | Tax Savings | |||||
|
2026 |
268,000 |
223,999 |
24,639 |
0 |
24,639 |
105.16 |
$2,591 |
$509 |
|||||
|
2025 |
270,000 |
213,333 |
23,466 |
0 |
23,466 |
105.16 |
$2,468 |
$656 |
|||||
|
2024 |
264,500 |
203,175 |
22,349 |
0 |
22,349 |
105.03 |
$2,347 |
$709 |
|||||
|
2023 |
193,500 |
193,500 |
21,285 |
0 |
21,285 |
104.24 |
$2,219 |
$0 |
|||||
|
2022 |
223,000 |
205,275 |
22,580 |
0 |
22,580 |
104.64 |
$2,363 |
$204 |
|||||
| Property Account Status/Adjustments/Exemptions | ||
|---|---|---|
| Account # | Exemption Description | Amount |
|
R141621380 |
5% Capped Account |
0 |
| Property Deed Transaction History (Recorded in the County Clerk's Office) | |||||||
|---|---|---|---|---|---|---|---|
| Date | Type | Book | Page | Price | Grantor | Grantee | |
|
4/13/2022 |
|
Deeds |
$190,000 |
HINSON MATT A & ASHLEY C |
WATSON JAMES P & DEBORAH L |
||
|
7/23/2020 |
|
Deeds |
$0 |
HINSON MATTHEW A |
WATSON ASHLEY |
||
|
11/13/2017 |
|
Deeds |
$200,000 |
MCCOY WILLIAM M & LAURIE WILSON |
HINSON MATT A & ASHLEY C |
||
|
6/30/2000 |
|
Deeds |
$124,000 |
JODLOWSKI JOHN E JR & JEAN M |
MCCOY WILLIAM M & LAURIE WILSON |
||
|
3/1/1983 |
|
Historical |
$0 |
|
JODLOWSKI JOHN E JR & JEAN M |
||
| Last Mailed Notice of Value (N.O.V.) Information/History | ||||||||
|---|---|---|---|---|---|---|---|---|
| Year | Date | Market Value | Taxable Market Value | Gross Assessed | Exemption | Net Assessed | ||
|
2026 |
02/06/2026 |
268,000 |
223,999 |
24,639 |
0 |
24,639 |
||
|
2025 |
01/31/2025 |
270,000 |
213,333 |
23,466 |
0 |
23,466 |
||
|
2024 |
01/22/2024 |
264,500 |
203,175 |
22,349 |
0 |
22,349 |
||
|
2023 |
01/23/2023 |
193,500 |
193,500 |
21,285 |
0 |
21,285 |
||
|
2022 |
02/22/2022 |
223,000 |
205,275 |
22,580 |
0 |
22,580 |
||
| Property Building Permit History | |||||||||||
|---|---|---|---|---|---|---|---|---|---|---|---|
| Issued | Permit # | Provided by | Bldg # | Description | Est Construction Cost | Status | |||||
| No Building Permit records returned. | |||||||||||
| Click button on building number to access detailed information: | ||||||
|---|---|---|---|---|---|---|
| Bldg # | Vacant/Improved Land | Bldg Description | Year Built | SqFt | # Stories | |
|
1 |
Improved |
Ranch 1 Story |
1975 |
2,306 |
1 Stories |
|