|
|
|
| Larry Stein Oklahoma County Assessor (405) 713-1200 - Public Access System |
|
|
|
|
|
|
| Real Property Display - Screen Produced 4/4/2026 11:46:45 AM | ||||
|---|---|---|---|---|
| Account: R141621520 | Type: Residential | Location: |
109 S TRAIL RIDGE RD |
|
| Building Name/Occupant: |
|
EDMOND |
||
| Owner Name 1: | GANDY MARK D |
Parcel PIN#: |
4710-14-162-1520 |
|
| Owner Name 2: | GANDY LAURA J | 1/4 section #: |
4710 |
|
| Owner Name 3: | Parent Acct: |
|
||
| Billing Address: | 109 S TRAIL RIDGE RD | Tax District: |
|
|
| City, State, Zip | EDMOND, OK 73012-4542 | School System: |
Edmond #12 |
|
|
Country: (If noted) |
Land Size: |
0.4447 Acres |
||
|
Land Value: 57,600 |
|
|||
|
Sect 28-T14N-R3W Qtr SE |
THE TRAILS
Block
006
Lot
006
|
|||
| Full Legal Description: THE TRAILS 006 006 |
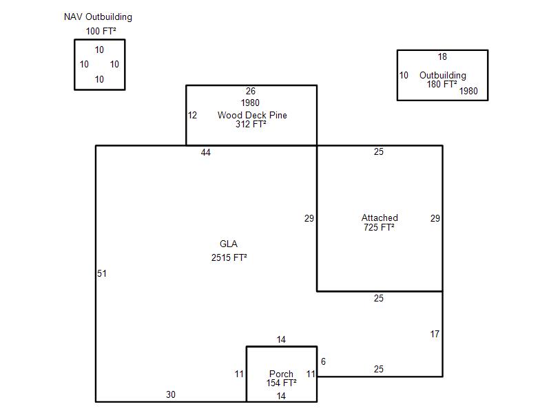
| Photo & Sketch (if available) | Comp Sales (ordered by relevancy) |
|
||||||||||||||||||
|
||||||||||||||||||||
| Value History (*The County Treasurer 405-713-1300 posts & collects actual tax amounts. Contact information HERE) | |||||||||||||
|---|---|---|---|---|---|---|---|---|---|---|---|---|---|
| Year | Market Value | Taxable Mkt Value | Gross Assessed | Exemption | Net Assessed | Millage | Est. Tax | Tax Savings | |||||
|
2026 |
297,500 |
274,803 |
30,227 |
0 |
30,227 |
105.16 |
$3,179 |
$263 |
|||||
|
2025 |
300,000 |
261,718 |
28,788 |
0 |
28,788 |
105.16 |
$3,027 |
$443 |
|||||
|
2024 |
293,500 |
249,256 |
27,417 |
0 |
27,417 |
105.03 |
$2,880 |
$511 |
|||||
|
2023 |
284,500 |
237,387 |
26,112 |
0 |
26,112 |
104.24 |
$2,722 |
$540 |
|||||
|
2022 |
247,000 |
226,083 |
24,868 |
0 |
24,868 |
104.64 |
$2,602 |
$241 |
|||||
| Property Account Status/Adjustments/Exemptions | ||
|---|---|---|
| Account # | Exemption Description | Amount |
|
R141621520 |
5% Capped Account |
0 |
| Property Deed Transaction History (Recorded in the County Clerk's Office) | |||||||
|---|---|---|---|---|---|---|---|
| Date | Type | Book | Page | Price | Grantor | Grantee | |
|
11/23/2004 |
|
Deeds |
$167,000 |
WOLFE STEVEN D & BARBARA M |
GANDY MARK D |
||
|
12/29/1994 |
|
Historical |
$98,500 |
ROBERTSON RICHARD |
WOLFE STEVEN D & BARBARA M |
||
|
11/18/1994 |
|
Historical |
$109,500 |
MADDY BOB F & MELBA |
ROBERTSON RICHARD |
||
|
7/1/1985 |
|
Historical |
$112,500 |
|
MADDY BOB F & MELBA |
||
| Last Mailed Notice of Value (N.O.V.) Information/History | ||||||||
|---|---|---|---|---|---|---|---|---|
| Year | Date | Market Value | Taxable Market Value | Gross Assessed | Exemption | Net Assessed | ||
|
2026 |
02/06/2026 |
297,500 |
274,803 |
30,227 |
0 |
30,227 |
||
|
2025 |
01/31/2025 |
300,000 |
261,718 |
28,788 |
0 |
28,788 |
||
|
2024 |
01/22/2024 |
293,500 |
249,256 |
27,417 |
0 |
27,417 |
||
|
2023 |
01/23/2023 |
284,500 |
237,387 |
26,112 |
0 |
26,112 |
||
|
2022 |
02/22/2022 |
247,000 |
226,083 |
24,868 |
0 |
24,868 |
||
| Property Building Permit History | |||||||||||
|---|---|---|---|---|---|---|---|---|---|---|---|
| Issued | Permit # | Provided by | Bldg # | Description | Est Construction Cost | Status | |||||
| No Building Permit records returned. | |||||||||||
| Click button on building number to access detailed information: | ||||||
|---|---|---|---|---|---|---|
| Bldg # | Vacant/Improved Land | Bldg Description | Year Built | SqFt | # Stories | |
|
1 |
Improved |
Ranch 1 Story |
1973 |
2,515 |
1 Stories |
|