|
|
|
| Larry Stein Oklahoma County Assessor (405) 713-1200 - Public Access System |
|
|
|
|
|
|
| Real Property Display - Screen Produced 4/4/2026 11:46:46 AM | ||||
|---|---|---|---|---|
| Account: R141621540 | Type: Residential | Location: |
2604 TRAIL CREEK RD |
|
| Building Name/Occupant: |
|
EDMOND |
||
| Owner Name 1: | MORSE KYLE LAURENCE & DANIELLE ELIZABETH |
Parcel PIN#: |
4710-14-162-1540 |
|
| Owner Name 2: | 1/4 section #: |
4710 |
||
| Owner Name 3: | Parent Acct: |
|
||
| Billing Address: | 2604 TRAIL CREEK RD | Tax District: |
|
|
| City, State, Zip | EDMOND, OK 73012 | School System: |
Edmond #12 |
|
|
Country: (If noted) |
Land Size: |
0.6106 Acres |
||
|
Land Value: 69,120 |
|
|||
|
Sect 28-T14N-R3W Qtr SE |
THE TRAILS
Block
006
Lot
008
|
|||
| Full Legal Description: THE TRAILS 006 008 |
| Photo & Sketch (if available) | Comp Sales (ordered by relevancy) |
|
||||||||||||||||||
|
||||||||||||||||||||
| Value History (*The County Treasurer 405-713-1300 posts & collects actual tax amounts. Contact information HERE) | |||||||||||||
|---|---|---|---|---|---|---|---|---|---|---|---|---|---|
| Year | Market Value | Taxable Mkt Value | Gross Assessed | Exemption | Net Assessed | Millage | Est. Tax | Tax Savings | |||||
|
2026 |
330,500 |
298,649 |
32,851 |
0 |
32,851 |
105.16 |
$3,455 |
$368 |
|||||
|
2025 |
332,500 |
284,428 |
31,286 |
0 |
31,286 |
105.16 |
$3,290 |
$556 |
|||||
|
2024 |
322,500 |
270,884 |
29,796 |
0 |
29,796 |
105.03 |
$3,130 |
$596 |
|||||
|
2023 |
312,500 |
257,985 |
28,378 |
0 |
28,378 |
104.24 |
$2,958 |
$625 |
|||||
|
2022 |
268,500 |
245,700 |
27,027 |
0 |
27,027 |
104.64 |
$2,828 |
$262 |
|||||
| Property Account Status/Adjustments/Exemptions | ||
|---|---|---|
| Account # | Exemption Description | Amount |
|
R141621540 |
5% Capped Account |
0 |
| Property Deed Transaction History (Recorded in the County Clerk's Office) | |||||||
|---|---|---|---|---|---|---|---|
| Date | Type | Book | Page | Price | Grantor | Grantee | |
|
11/17/2017 |
|
Deeds |
$240,000 |
GOMBAS ADRIENNE I |
MORSE KYLE LAURENCE & DANIELLE ELIZABETH |
||
|
10/20/1993 |
|
Historical |
$0 |
MORRIS ADRIENNE I |
GOMBAS ADRIENNE I |
||
|
7/1/1982 |
|
Historical |
$0 |
|
MORRIS ADRIENNE I |
||
| Last Mailed Notice of Value (N.O.V.) Information/History | ||||||||
|---|---|---|---|---|---|---|---|---|
| Year | Date | Market Value | Taxable Market Value | Gross Assessed | Exemption | Net Assessed | ||
|
2026 |
02/06/2026 |
330,500 |
298,649 |
32,851 |
0 |
32,851 |
||
|
2025 |
01/31/2025 |
332,500 |
284,428 |
31,286 |
0 |
31,286 |
||
|
2024 |
01/22/2024 |
322,500 |
270,884 |
29,796 |
0 |
29,796 |
||
|
2023 |
01/23/2023 |
312,500 |
257,985 |
28,378 |
0 |
28,378 |
||
|
2022 |
02/22/2022 |
268,500 |
245,700 |
27,027 |
0 |
27,027 |
||
| Property Building Permit History | |||||||||||
|---|---|---|---|---|---|---|---|---|---|---|---|
| Issued | Permit # | Provided by | Bldg # | Description | Est Construction Cost | Status | |||||
| No Building Permit records returned. | |||||||||||
| Click button on building number to access detailed information: | ||||||
|---|---|---|---|---|---|---|
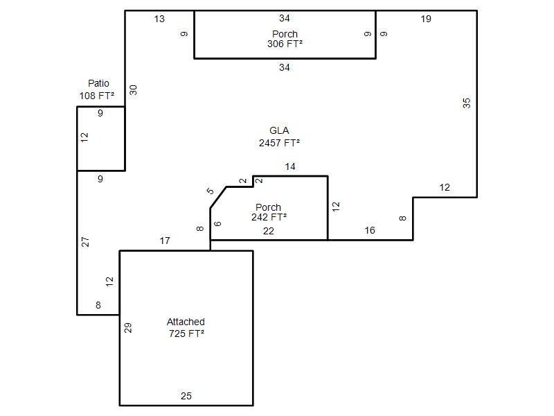
| Bldg # | Vacant/Improved Land | Bldg Description | Year Built | SqFt | # Stories | |
|
1 |
Improved |
Ranch 1 Story |
1977 |
2,457 |
1 Stories |
|