|
|
|
| Larry Stein Oklahoma County Assessor (405) 713-1200 - Public Access System |
|
|
|
|
|
|
| Real Property Display - Screen Produced 4/4/2026 11:40:25 AM | ||||
|---|---|---|---|---|
| Account: R141621820 | Type: Residential | Location: |
2605 LOST TRAIL RD |
|
| Building Name/Occupant: |
|
EDMOND |
||
| Owner Name 1: | SANTILLIE GIANNI SINFORO |
Parcel PIN#: |
4710-14-162-1820 |
|
| Owner Name 2: | 1/4 section #: |
4710 |
||
| Owner Name 3: | Parent Acct: |
|
||
| Billing Address: | 2605 LOST TRAIL RD | Tax District: |
|
|
| City, State, Zip | EDMOND, OK 73012-4557 | School System: |
Edmond #12 |
|
|
Country: (If noted) |
Land Size: |
0.2935 Acres |
||
|
Land Value: 44,744 |
|
|||
|
Sect 28-T14N-R3W Qtr SE |
THE TRAILS
Block
006
Lot
035
|
|||
| Full Legal Description: THE TRAILS 006 035 |
| Photo & Sketch (if available) | Comp Sales (ordered by relevancy) |
|
||||||||||||||||||
|
||||||||||||||||||||
| Value History (*The County Treasurer 405-713-1300 posts & collects actual tax amounts. Contact information HERE) | |||||||||||||
|---|---|---|---|---|---|---|---|---|---|---|---|---|---|
| Year | Market Value | Taxable Mkt Value | Gross Assessed | Exemption | Net Assessed | Millage | Est. Tax | Tax Savings | |||||
|
2026 |
297,000 |
272,484 |
29,972 |
0 |
29,972 |
105.16 |
$3,152 |
$284 |
|||||
|
2025 |
298,000 |
259,509 |
28,545 |
0 |
28,545 |
105.16 |
$3,002 |
$445 |
|||||
|
2024 |
291,000 |
247,152 |
27,186 |
0 |
27,186 |
105.03 |
$2,855 |
$507 |
|||||
|
2023 |
281,000 |
235,383 |
25,891 |
0 |
25,891 |
104.24 |
$2,699 |
$523 |
|||||
|
2022 |
243,000 |
224,175 |
24,659 |
0 |
24,659 |
104.64 |
$2,580 |
$217 |
|||||
| Property Account Status/Adjustments/Exemptions | ||
|---|---|---|
| Account # | Exemption Description | Amount |
|
R141621820 |
5% Capped Account |
0 |
| Property Deed Transaction History (Recorded in the County Clerk's Office) | ||||||||||
|---|---|---|---|---|---|---|---|---|---|---|
| Date | Type | Book | Page | Price | Grantor | Grantee | ||||
|
3/31/2009 |
|
Deeds |
$184,500 |
PHILLIPS SCOTT & MICHELLE |
SANTILLIE GIANNI SINFORO |
|||||
|
12/29/2005 |
|
Deeds |
$169,000 |
MALCOLM CHRISTA |
PHILLIPS SCOTT & MICHELLE |
|||||
|
12/16/2005 |
|
Deeds |
$0 |
HATCHER GARY & CHRISTA |
MALCOLM CHRISTA |
|||||
|
8/2/2002 |
|
Deeds |
$147,000 |
GROSZ ROGER A TRS MIRTZ CAROL A TRS |
HATCHER GARY & CHRISTA |
|||||
|
9/16/1999 |
|
Deeds |
$0 |
GROSZ ROGER A MIRTZ CAROL A |
GROSZ ROGER A TRS MIRTZ CAROL A TRS |
|||||
| Last Mailed Notice of Value (N.O.V.) Information/History | ||||||||
|---|---|---|---|---|---|---|---|---|
| Year | Date | Market Value | Taxable Market Value | Gross Assessed | Exemption | Net Assessed | ||
|
2026 |
02/06/2026 |
297,000 |
272,484 |
29,972 |
0 |
29,972 |
||
|
2025 |
01/31/2025 |
298,000 |
259,509 |
28,545 |
0 |
28,545 |
||
|
2024 |
01/22/2024 |
291,000 |
247,152 |
27,186 |
0 |
27,186 |
||
|
2023 |
01/23/2023 |
281,000 |
235,383 |
25,891 |
0 |
25,891 |
||
|
2022 |
02/22/2022 |
243,000 |
224,175 |
24,659 |
0 |
24,659 |
||
| Property Building Permit History | |||||||||||
|---|---|---|---|---|---|---|---|---|---|---|---|
| Issued | Permit # | Provided by | Bldg # | Description | Est Construction Cost | Status | |||||
| No Building Permit records returned. | |||||||||||
| Click button on building number to access detailed information: | ||||||
|---|---|---|---|---|---|---|
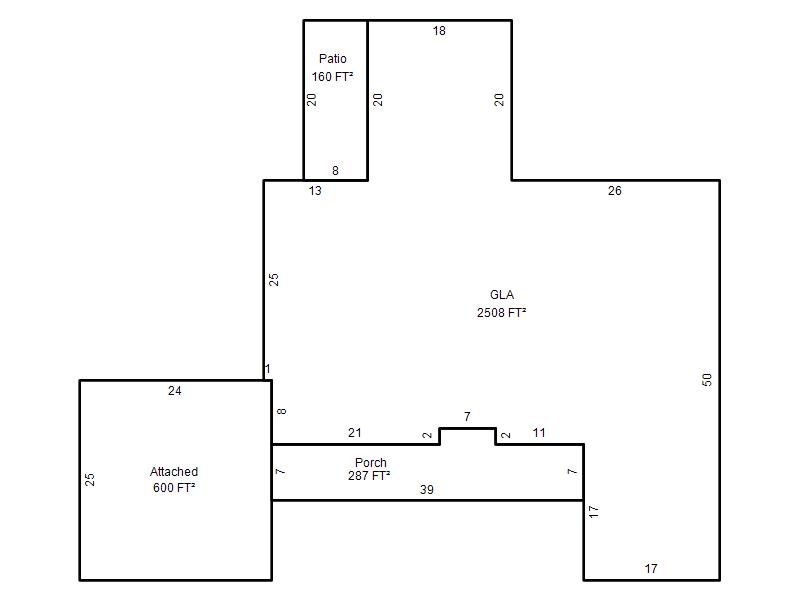
| Bldg # | Vacant/Improved Land | Bldg Description | Year Built | SqFt | # Stories | |
|
1 |
Improved |
Ranch 1 Story |
1975 |
2,508 |
1 Stories |
|