|
|
|
| Larry Stein Oklahoma County Assessor (405) 713-1200 - Public Access System |
|
|
|
|
|
|
| Real Property Display - Screen Produced 4/4/2026 11:39:21 AM | ||||
|---|---|---|---|---|
| Account: R141621910 | Type: Residential | Location: |
2601 BENT TRAIL RD |
|
| Building Name/Occupant: |
|
EDMOND |
||
| Owner Name 1: | TRAYLOR HARRY E II & JULIE B |
Parcel PIN#: |
4710-14-162-1910 |
|
| Owner Name 2: | 1/4 section #: |
4710 |
||
| Owner Name 3: | Parent Acct: |
|
||
| Billing Address: | 2601 BENT TRAIL RD | Tax District: |
|
|
| City, State, Zip | EDMOND, OK 73012-4525 | School System: |
Edmond #12 |
|
|
Country: (If noted) |
Land Size: |
0.5741 Acres |
||
|
Land Value: 57,600 |
|
|||
|
Sect 28-T14N-R3W Qtr SE |
THE TRAILS
Block
007
Lot
001
|
|||
| Full Legal Description: THE TRAILS 007 001 |
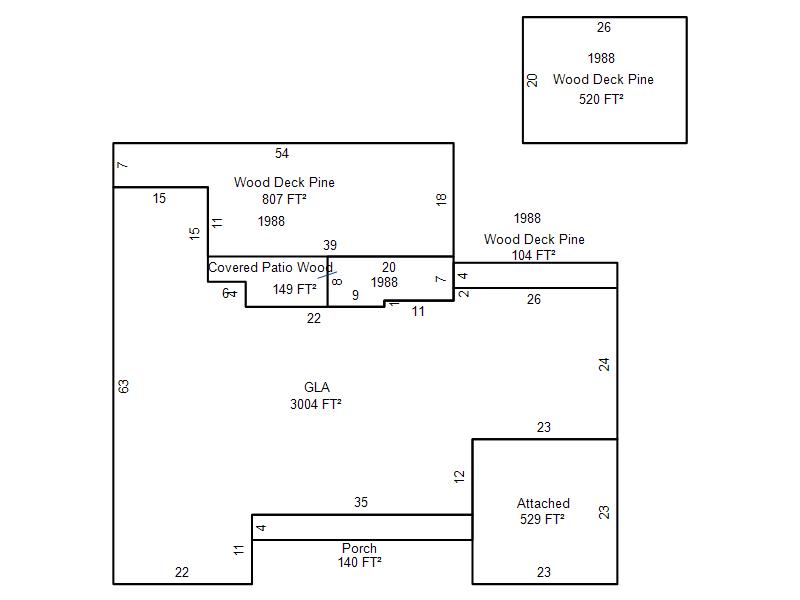
| Photo & Sketch (if available) | Comp Sales (ordered by relevancy) |
|
||||||||||||||||||
|
||||||||||||||||||||
| Value History (*The County Treasurer 405-713-1300 posts & collects actual tax amounts. Contact information HERE) | |||||||||||||
|---|---|---|---|---|---|---|---|---|---|---|---|---|---|
| Year | Market Value | Taxable Mkt Value | Gross Assessed | Exemption | Net Assessed | Millage | Est. Tax | Tax Savings | |||||
|
2026 |
331,500 |
276,812 |
30,448 |
1,000 |
29,448 |
105.16 |
$3,097 |
$738 |
|||||
|
2025 |
342,000 |
268,750 |
29,562 |
1,000 |
28,562 |
105.16 |
$3,004 |
$952 |
|||||
|
2024 |
356,000 |
260,923 |
28,700 |
1,000 |
27,700 |
105.03 |
$2,909 |
$1,203 |
|||||
|
2023 |
345,000 |
253,324 |
27,865 |
1,000 |
26,865 |
104.24 |
$2,800 |
$1,155 |
|||||
|
2022 |
298,000 |
245,946 |
27,053 |
1,000 |
26,053 |
104.64 |
$2,726 |
$704 |
|||||
| Property Account Status/Adjustments/Exemptions | ||
|---|---|---|
| Account # | Exemption Description | Amount |
|
R141621910 |
3% Cap Homestead |
0 |
|
R141621910 |
Homestead |
1,000 |
| Property Deed Transaction History (Recorded in the County Clerk's Office) | |||||||
|---|---|---|---|---|---|---|---|
| Date | Type | Book | Page | Price | Grantor | Grantee | |
|
12/19/1988 |
|
Historical |
$0 |
STONE LYNDSEY |
TRAYLOR HARRY E II & JULIE B |
||
|
9/21/1988 |
|
Historical |
$0 |
STONE LYNDSEY & KATE |
STONE LYNDSEY |
||
|
12/1/1980 |
|
Historical |
$0 |
|
STONE LYNDSEY & KATE |
||
| Last Mailed Notice of Value (N.O.V.) Information/History | ||||||||
|---|---|---|---|---|---|---|---|---|
| Year | Date | Market Value | Taxable Market Value | Gross Assessed | Exemption | Net Assessed | ||
|
2026 |
02/06/2026 |
331,500 |
276,812 |
30,448 |
1,000 |
29,448 |
||
|
2025 |
01/31/2025 |
342,000 |
268,750 |
29,562 |
1,000 |
28,562 |
||
|
2024 |
01/22/2024 |
356,000 |
260,923 |
28,700 |
1,000 |
27,700 |
||
|
2023 |
01/23/2023 |
345,000 |
253,324 |
27,865 |
1,000 |
26,865 |
||
|
2022 |
02/22/2022 |
298,000 |
245,946 |
27,053 |
1,000 |
26,053 |
||
| Property Building Permit History | |||||||||||
|---|---|---|---|---|---|---|---|---|---|---|---|
| Issued | Permit # | Provided by | Bldg # | Description | Est Construction Cost | Status | |||||
| No Building Permit records returned. | |||||||||||
| Click button on building number to access detailed information: | ||||||
|---|---|---|---|---|---|---|
| Bldg # | Vacant/Improved Land | Bldg Description | Year Built | SqFt | # Stories | |
|
1 |
Improved |
Ranch 1 Story |
1979 |
3,004 |
1 Stories |
|