|
|
|
| Larry Stein Oklahoma County Assessor (405) 713-1200 - Public Access System |
|
|
|
|
|
|
| Real Property Display - Screen Produced 4/4/2026 11:39:21 AM | ||||
|---|---|---|---|---|
| Account: R141621940 | Type: Residential | Location: |
2404 HORSE TRAIL RD |
|
| Building Name/Occupant: |
|
EDMOND |
||
| Owner Name 1: | EMERY JOHN P & MARY B TRS |
Parcel PIN#: |
4710-14-162-1940 |
|
| Owner Name 2: | EMERY 2009 REV TRUST | 1/4 section #: |
4710 |
|
| Owner Name 3: | Parent Acct: |
|
||
| Billing Address: | 2404 HORSE TRAIL RD | Tax District: |
|
|
| City, State, Zip | EDMOND, OK 73012-4558 | School System: |
Edmond #12 |
|
|
Country: (If noted) |
Land Size: |
0.3025 Acres |
||
|
Land Value: 46,080 |
|
|||
|
Sect 28-T14N-R3W Qtr SE |
THE TRAILS
Block
008
Lot
002
|
|||
| Full Legal Description: THE TRAILS 008 002 |
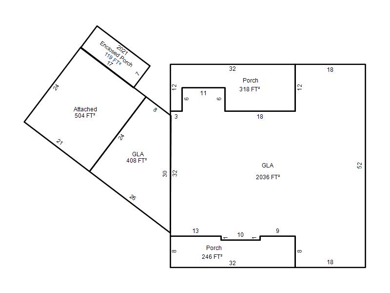
| Photo & Sketch (if available) | Comp Sales (ordered by relevancy) |
|
||||||||||||||||||
|
||||||||||||||||||||
| Value History (*The County Treasurer 405-713-1300 posts & collects actual tax amounts. Contact information HERE) | |||||||||||||
|---|---|---|---|---|---|---|---|---|---|---|---|---|---|
| Year | Market Value | Taxable Mkt Value | Gross Assessed | Exemption | Net Assessed | Millage | Est. Tax | Tax Savings | |||||
|
2026 |
343,000 |
266,019 |
29,261 |
1,000 |
28,261 |
105.16 |
$2,972 |
$996 |
|||||
|
2025 |
344,500 |
258,271 |
28,409 |
1,000 |
27,409 |
105.16 |
$2,882 |
$1,103 |
|||||
|
2024 |
328,500 |
250,749 |
27,582 |
1,000 |
26,582 |
105.03 |
$2,792 |
$1,003 |
|||||
|
2023 |
316,000 |
243,446 |
26,778 |
1,000 |
25,778 |
104.24 |
$2,687 |
$936 |
|||||
|
2022 |
274,000 |
236,356 |
25,998 |
1,000 |
24,998 |
104.64 |
$2,616 |
$538 |
|||||
| Property Account Status/Adjustments/Exemptions | ||
|---|---|---|
| Account # | Exemption Description | Amount |
|
R141621940 |
3% Cap Homestead |
0 |
|
R141621940 |
Homestead |
1,000 |
| Property Deed Transaction History (Recorded in the County Clerk's Office) | |||||||
|---|---|---|---|---|---|---|---|
| Date | Type | Book | Page | Price | Grantor | Grantee | |
|
9/30/2009 |
|
Deeds |
$0 |
EMERY JOHN P & MARY BETH |
EMERY JOHN P & MARY B TRS |
||
|
8/3/1992 |
|
Historical |
$85,000 |
FORTUNE LARRY E |
EMERY JOHN P & MARY BETH |
||
|
7/1/1986 |
|
Historical |
$95,000 |
LILLARD BILL J & MARY H |
FORTUNE LARRY E |
||
|
8/1/1977 |
|
Historical |
$0 |
|
LILLARD BILL J & MARY H |
||
| Last Mailed Notice of Value (N.O.V.) Information/History | ||||||||
|---|---|---|---|---|---|---|---|---|
| Year | Date | Market Value | Taxable Market Value | Gross Assessed | Exemption | Net Assessed | ||
|
2026 |
02/06/2026 |
343,000 |
266,019 |
29,261 |
1,000 |
28,261 |
||
|
2025 |
01/31/2025 |
344,500 |
258,271 |
28,409 |
1,000 |
27,409 |
||
|
2024 |
01/22/2024 |
328,500 |
250,749 |
27,582 |
1,000 |
26,582 |
||
|
2023 |
01/23/2023 |
316,000 |
243,446 |
26,778 |
1,000 |
25,778 |
||
|
2022 |
02/22/2022 |
274,000 |
236,356 |
25,998 |
1,000 |
24,998 |
||
| Property Building Permit History | ||||||
|---|---|---|---|---|---|---|
| Issued | Permit # | Provided by | Bldg # | Description | Est Construction Cost | Status |
|
7/30/2009 |
10385285 |
EDMOND |
1 |
Swimming Pool |
52,150 |
Inactive |
| Click button on building number to access detailed information: | ||||||
|---|---|---|---|---|---|---|
| Bldg # | Vacant/Improved Land | Bldg Description | Year Built | SqFt | # Stories | |
|
1 |
Improved |
Ranch 1 Story |
1977 |
2,444 |
1 Stories |
|