|
|
|
| Larry Stein Oklahoma County Assessor (405) 713-1200 - Public Access System |
|
|
|
|
|
|
| Real Property Display - Screen Produced 4/4/2026 11:39:21 AM | ||||
|---|---|---|---|---|
| Account: R141621970 | Type: Residential | Location: |
2500 HORSE TRAIL RD |
|
| Building Name/Occupant: |
|
EDMOND |
||
| Owner Name 1: | JOHNSON MATTHEW K & JILL T |
Parcel PIN#: |
4710-14-162-1970 |
|
| Owner Name 2: | 1/4 section #: |
4710 |
||
| Owner Name 3: | Parent Acct: |
|
||
| Billing Address: | 2500 HORSE TRAIL RD | Tax District: |
|
|
| City, State, Zip | EDMOND, OK 73012-4560 | School System: |
Edmond #12 |
|
|
Country: (If noted) |
Land Size: |
0.2896 Acres |
||
|
Land Value: 44,153 |
|
|||
|
Sect 28-T14N-R3W Qtr SE |
THE TRAILS
Block
008
Lot
005
|
|||
| Full Legal Description: THE TRAILS 008 005 |
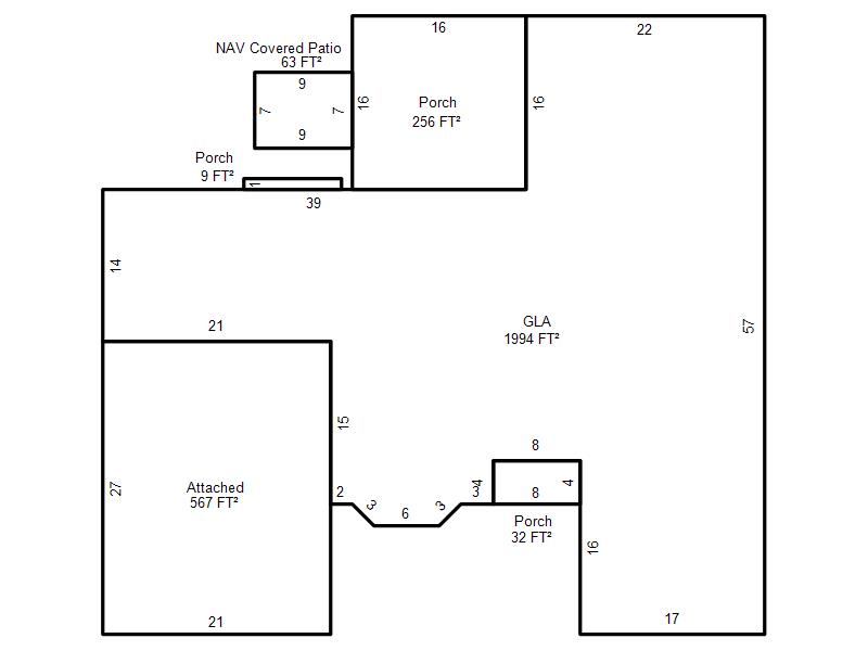
| Photo & Sketch (if available) | Comp Sales (ordered by relevancy) |
|
||||||||||||||||||
|
||||||||||||||||||||
| Value History (*The County Treasurer 405-713-1300 posts & collects actual tax amounts. Contact information HERE) | |||||||||||||
|---|---|---|---|---|---|---|---|---|---|---|---|---|---|
| Year | Market Value | Taxable Mkt Value | Gross Assessed | Exemption | Net Assessed | Millage | Est. Tax | Tax Savings | |||||
|
2026 |
268,500 |
212,181 |
23,339 |
1,000 |
22,339 |
105.16 |
$2,349 |
$757 |
|||||
|
2025 |
270,000 |
206,001 |
22,660 |
1,000 |
21,660 |
105.16 |
$2,278 |
$845 |
|||||
|
2024 |
263,000 |
200,001 |
21,999 |
1,000 |
20,999 |
105.03 |
$2,206 |
$833 |
|||||
|
2023 |
254,500 |
194,176 |
21,359 |
1,000 |
20,359 |
104.24 |
$2,122 |
$796 |
|||||
|
2022 |
219,500 |
188,521 |
20,736 |
1,000 |
19,736 |
104.64 |
$2,065 |
$461 |
|||||
| Property Account Status/Adjustments/Exemptions | ||
|---|---|---|
| Account # | Exemption Description | Amount |
|
R141621970 |
Homestead |
1,000 |
|
R141621970 |
3% Cap Homestead |
0 |
| Property Deed Transaction History (Recorded in the County Clerk's Office) | ||||||||||
|---|---|---|---|---|---|---|---|---|---|---|
| Date | Type | Book | Page | Price | Grantor | Grantee | ||||
|
8/23/2013 |
|
Deeds |
$155,000 |
SHAPIRO BARBARA LYNN TRS SHAPIRO BARBARA LYNN REV LIVING TRU |
JOHNSON MATTHEW K & JILL T |
|||||
|
1/7/2003 |
|
Deeds |
$0 |
WOODS FAMILY TRUST WOODS WARREN W CO TRS |
SHAPIRO BARBARA LYNN TRS WOODS FAMILY TRUST |
|||||
|
1/7/2003 |
|
Hmstd Off & |
$0 |
SHAPIRO BARBARA LYNN TRS WOODS FAMILY TRUST |
SHAPIRO BARBARA LYNN |
|||||
|
1/7/2003 |
|
Deeds |
$0 |
SHAPIRO BARBARA LYNN |
SHAPIRO BARBARA LYNN TRS SHAPIRO BARBARA LYNN REV LIVING TRU |
|||||
|
8/22/1988 |
|
Historical |
$90,000 |
LISLE HOWARD B II & JANIS K |
WOODS FAMILY TRUST |
|||||
| Last Mailed Notice of Value (N.O.V.) Information/History | ||||||||
|---|---|---|---|---|---|---|---|---|
| Year | Date | Market Value | Taxable Market Value | Gross Assessed | Exemption | Net Assessed | ||
|
2026 |
02/06/2026 |
268,500 |
212,181 |
23,339 |
1,000 |
22,339 |
||
|
2025 |
01/31/2025 |
270,000 |
206,001 |
22,660 |
1,000 |
21,660 |
||
|
2024 |
01/22/2024 |
263,000 |
200,001 |
21,999 |
1,000 |
20,999 |
||
|
2023 |
01/23/2023 |
254,500 |
194,176 |
21,359 |
1,000 |
20,359 |
||
|
2022 |
02/22/2022 |
219,500 |
188,521 |
20,736 |
1,000 |
19,736 |
||
| Property Building Permit History | |||||||||||
|---|---|---|---|---|---|---|---|---|---|---|---|
| Issued | Permit # | Provided by | Bldg # | Description | Est Construction Cost | Status | |||||
| No Building Permit records returned. | |||||||||||
| Click button on building number to access detailed information: | ||||||
|---|---|---|---|---|---|---|
| Bldg # | Vacant/Improved Land | Bldg Description | Year Built | SqFt | # Stories | |
|
1 |
Improved |
Ranch 1 Story |
1979 |
1,994 |
1 Stories |
|