|
|
|
| Larry Stein Oklahoma County Assessor (405) 713-1200 - Public Access System |
|
|
|
|
|
|
| Real Property Display - Screen Produced 4/2/2026 8:33:24 AM | ||||
|---|---|---|---|---|
| Account: R206802450 | Type: Residential | Location: |
2813 NW 183RD ST |
|
| Building Name/Occupant: |
|
OKLAHOMA CITY |
||
| Owner Name 1: | SDI SFR LLC |
Parcel PIN#: |
4719-20-680-2450 |
|
| Owner Name 2: | 1/4 section #: |
4719 |
||
| Owner Name 3: | Parent Acct: |
4717-16-859-1203 |
||
| Billing Address: | 6824 N ROBINSON AVE | Tax District: |
|
|
| City, State, Zip | OKLAHOMA CITY, OK 73116-9039 | School System: |
Deer Creek #6 |
|
|
Country: (If noted) |
Land Size: |
0.1405 Acres |
||
|
Land Value: 38,862 |
|
|||
|
Sect 30-T14N-R3W Qtr SW |
VALENCIA II SEC 1
Block
010
Lot
001
|
|||
| Full Legal Description: VALENCIA II SEC 1 010 001 |
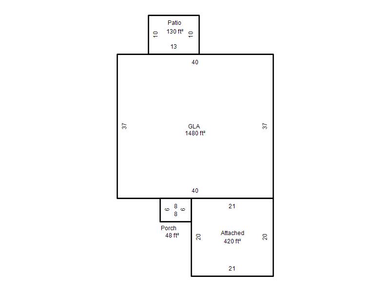
| Photo & Sketch (if available) | Comp Sales (ordered by relevancy) |
|
||||||||||||||||||
|
||||||||||||||||||||
| Value History (*The County Treasurer 405-713-1300 posts & collects actual tax amounts. Contact information HERE) | |||||||||||||
|---|---|---|---|---|---|---|---|---|---|---|---|---|---|
| Year | Market Value | Taxable Mkt Value | Gross Assessed | Exemption | Net Assessed | Millage | Est. Tax | Tax Savings | |||||
|
2026 |
255,500 |
227,176 |
24,988 |
0 |
24,988 |
129.51 |
$3,236 |
$404 |
|||||
|
2025 |
252,500 |
216,359 |
23,799 |
0 |
23,799 |
129.51 |
$3,082 |
$515 |
|||||
|
2024 |
248,500 |
206,057 |
22,665 |
0 |
22,665 |
131.12 |
$2,972 |
$612 |
|||||
|
2023 |
237,500 |
196,245 |
21,586 |
0 |
21,586 |
131.55 |
$2,840 |
$597 |
|||||
|
2022 |
205,000 |
186,900 |
20,559 |
0 |
20,559 |
130.27 |
$2,678 |
$259 |
|||||
| Property Account Status/Adjustments/Exemptions | ||
|---|---|---|
| Account # | Exemption Description | Amount |
|
R206802450 |
5% Capped Account |
0 |
| Property Deed Transaction History (Recorded in the County Clerk's Office) | |||||||
|---|---|---|---|---|---|---|---|
| Date | Type | Book | Page | Price | Grantor | Grantee | |
|
2/28/2014 |
|
Mult Parcel |
$741,000 |
LANDMARK MCCALEB LLC |
SDI SFR LLC |
||
|
8/3/2011 |
|
Deeds |
$27,000 |
VALENCIA LAND LLC |
LANDMARK MCCALEB LLC |
||
| Last Mailed Notice of Value (N.O.V.) Information/History | ||||||||
|---|---|---|---|---|---|---|---|---|
| Year | Date | Market Value | Taxable Market Value | Gross Assessed | Exemption | Net Assessed | ||
|
2026 |
02/06/2026 |
255,500 |
227,176 |
24,988 |
0 |
24,988 |
||
|
2025 |
01/31/2025 |
252,500 |
216,359 |
23,799 |
0 |
23,799 |
||
|
2024 |
01/22/2024 |
248,500 |
206,057 |
22,665 |
0 |
22,665 |
||
|
2023 |
01/23/2023 |
237,500 |
196,245 |
21,586 |
0 |
21,586 |
||
|
2022 |
02/22/2022 |
205,000 |
186,900 |
20,559 |
0 |
20,559 |
||
| Property Building Permit History | ||||||
|---|---|---|---|---|---|---|
| Issued | Permit # | Provided by | Bldg # | Description | Est Construction Cost | Status |
|
8/4/2011 |
10433972 |
OKLAHOMA CITY |
1 |
Main Dwellin |
122,000 |
Inactive |
| Click button on building number to access detailed information: | ||||||
|---|---|---|---|---|---|---|
| Bldg # | Vacant/Improved Land | Bldg Description | Year Built | SqFt | # Stories | |
|
1 |
Improved |
Ranch 1 Story |
2011 |
1,480 |
1 Stories |
|