|
|
|
| Larry Stein Oklahoma County Assessor (405) 713-1200 - Public Access System |
|
|
|
|
|
|
| Real Property Display - Screen Produced 4/4/2026 5:36:00 AM | ||||
|---|---|---|---|---|
| Account: R206803090 | Type: Residential | Location: |
2829 NW 184TH TER |
|
| Building Name/Occupant: |
|
OKLAHOMA CITY |
||
| Owner Name 1: | GOODIE 4 GOODMAN LLC |
Parcel PIN#: |
4719-20-680-3090 |
|
| Owner Name 2: | 1/4 section #: |
4719 |
||
| Owner Name 3: | Parent Acct: |
4717-16-859-1203 |
||
| Billing Address: | 18606 S ROCK CREEK RD | Tax District: |
|
|
| City, State, Zip | SHAWNEE, OK 74801-9602 | School System: |
Deer Creek #6 |
|
|
Country: (If noted) |
Land Size: |
0.1192 Acres |
||
|
Land Value: 32,982 |
|
|||
|
Sect 30-T14N-R3W Qtr SW |
VALENCIA II SEC 1
Block
012
Lot
009
|
|||
| Full Legal Description: VALENCIA II SEC 1 012 009 |
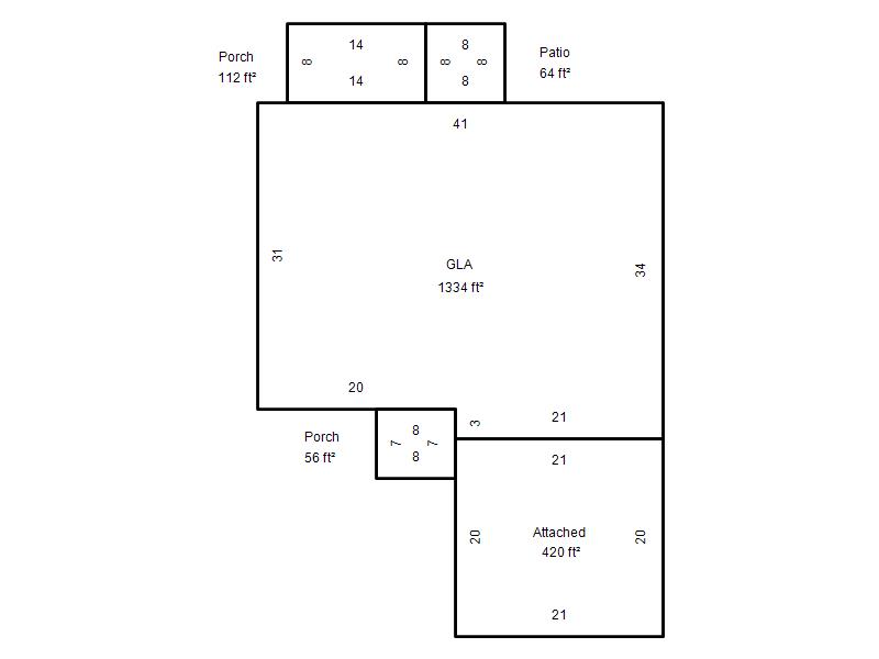
| Photo & Sketch (if available) | Comp Sales (ordered by relevancy) |
|
||||||||||||||||||
|
||||||||||||||||||||
| Value History (*The County Treasurer 405-713-1300 posts & collects actual tax amounts. Contact information HERE) | |||||||||||||
|---|---|---|---|---|---|---|---|---|---|---|---|---|---|
| Year | Market Value | Taxable Mkt Value | Gross Assessed | Exemption | Net Assessed | Millage | Est. Tax | Tax Savings | |||||
|
2026 |
236,500 |
210,584 |
23,164 |
0 |
23,164 |
129.51 |
$3,000 |
$369 |
|||||
|
2025 |
240,000 |
200,557 |
22,060 |
0 |
22,060 |
129.51 |
$2,857 |
$562 |
|||||
|
2024 |
234,000 |
191,007 |
21,010 |
0 |
21,010 |
131.12 |
$2,755 |
$620 |
|||||
|
2023 |
222,000 |
181,912 |
20,009 |
0 |
20,009 |
131.55 |
$2,632 |
$580 |
|||||
|
2022 |
191,000 |
173,250 |
19,057 |
0 |
19,057 |
130.27 |
$2,483 |
$254 |
|||||
| Property Account Status/Adjustments/Exemptions | ||
|---|---|---|
| Account # | Exemption Description | Amount |
|
R206803090 |
5% Capped Account |
0 |
| Property Deed Transaction History (Recorded in the County Clerk's Office) | |||||||
|---|---|---|---|---|---|---|---|
| Date | Type | Book | Page | Price | Grantor | Grantee | |
|
9/5/2014 |
|
Deeds |
$146,000 |
WHEELER DUSTIN R LONG REBEKAH H |
GOODIE 4 GOODMAN LLC |
||
|
3/7/2008 |
|
Deeds |
$142,000 |
IDEAL HOMES OF NORMAN LP |
WHEELER DUSTIN R LONG REBEKAH H |
||
|
7/30/2007 |
|
Deeds |
$25,000 |
VALENCIA LAND LLC |
IDEAL HOMES OF NORMAN LP |
||
| Last Mailed Notice of Value (N.O.V.) Information/History | ||||||||
|---|---|---|---|---|---|---|---|---|
| Year | Date | Market Value | Taxable Market Value | Gross Assessed | Exemption | Net Assessed | ||
|
2026 |
02/06/2026 |
236,500 |
210,584 |
23,164 |
0 |
23,164 |
||
|
2025 |
01/31/2025 |
240,000 |
200,557 |
22,060 |
0 |
22,060 |
||
|
2024 |
01/22/2024 |
234,000 |
191,007 |
21,010 |
0 |
21,010 |
||
|
2023 |
01/23/2023 |
222,000 |
181,912 |
20,009 |
0 |
20,009 |
||
|
2022 |
02/22/2022 |
191,000 |
173,250 |
19,057 |
0 |
19,057 |
||
| Property Building Permit History | ||||||
|---|---|---|---|---|---|---|
| Issued | Permit # | Provided by | Bldg # | Description | Est Construction Cost | Status |
|
8/2/2007 |
10340656 |
OKLAHOMA CITY |
1 |
Main Dwellin |
67,000 |
Inactive |
| Click button on building number to access detailed information: | ||||||
|---|---|---|---|---|---|---|
| Bldg # | Vacant/Improved Land | Bldg Description | Year Built | SqFt | # Stories | |
|
1 |
Improved |
Ranch 1 Story |
2007 |
1,334 |
1 Stories |
|