|
|
|
| Larry Stein Oklahoma County Assessor (405) 713-1200 - Public Access System |
|
|
|
|
|
|
| Real Property Display - Screen Produced 4/4/2026 5:36:02 AM | ||||
|---|---|---|---|---|
| Account: R208801530 | Type: Residential | Location: |
18529 COLA DR |
|
| Building Name/Occupant: |
|
OKLAHOMA CITY |
||
| Owner Name 1: | SDI SFR LLC |
Parcel PIN#: |
4720-20-880-1530 |
|
| Owner Name 2: | 1/4 section #: |
4720 |
||
| Owner Name 3: | Parent Acct: |
4717-16-859-1203 |
||
| Billing Address: | 6824 N ROBINSON AVE | Tax District: |
|
|
| City, State, Zip | OKLAHOMA CITY, OK 73116-9039 | School System: |
Deer Creek #6 |
|
|
Country: (If noted) |
Land Size: |
0.1860 Acres |
||
|
Land Value: 50,868 |
|
|||
|
Sect 30-T14N-R3W Qtr NW |
VALENCIA II SEC 2
Block
019
Lot
015
|
|||
| Full Legal Description: VALENCIA II SEC 2 019 015 |
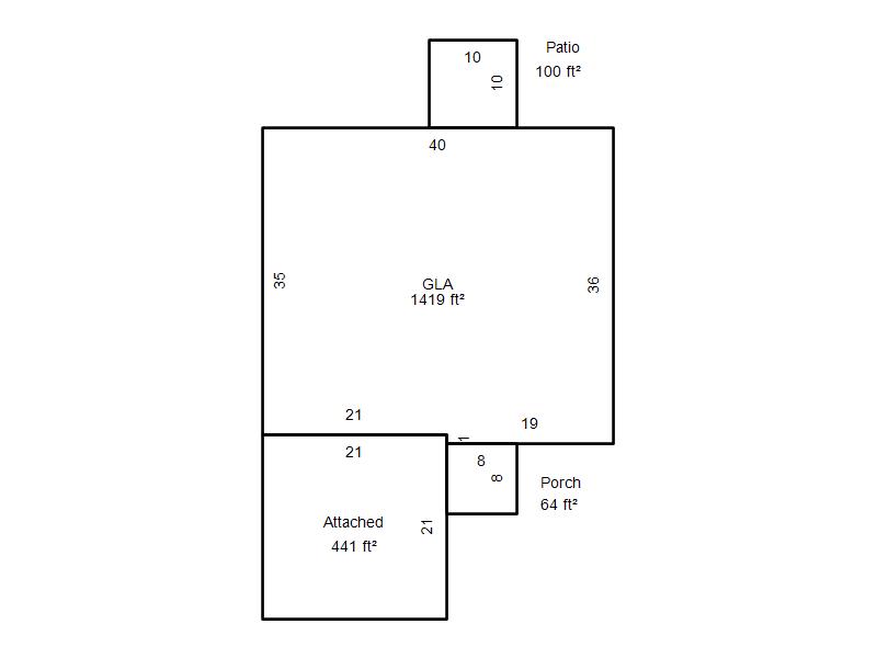
| Photo & Sketch (if available) | Comp Sales (ordered by relevancy) |
|
||||||||||||||||||
|
||||||||||||||||||||
| Value History (*The County Treasurer 405-713-1300 posts & collects actual tax amounts. Contact information HERE) | |||||||||||||
|---|---|---|---|---|---|---|---|---|---|---|---|---|---|
| Year | Market Value | Taxable Mkt Value | Gross Assessed | Exemption | Net Assessed | Millage | Est. Tax | Tax Savings | |||||
|
2026 |
255,500 |
229,729 |
25,269 |
0 |
25,269 |
129.51 |
$3,273 |
$367 |
|||||
|
2025 |
259,000 |
218,790 |
24,066 |
0 |
24,066 |
129.51 |
$3,117 |
$573 |
|||||
|
2024 |
253,500 |
208,372 |
22,920 |
0 |
22,920 |
131.12 |
$3,005 |
$651 |
|||||
|
2023 |
242,000 |
198,450 |
21,829 |
0 |
21,829 |
131.55 |
$2,872 |
$630 |
|||||
|
2022 |
208,500 |
189,000 |
20,790 |
0 |
20,790 |
130.27 |
$2,708 |
$279 |
|||||
| Property Account Status/Adjustments/Exemptions | ||
|---|---|---|
| Account # | Exemption Description | Amount |
|
R208801530 |
5% Capped Account |
0 |
| Property Deed Transaction History (Recorded in the County Clerk's Office) | |||||||
|---|---|---|---|---|---|---|---|
| Date | Type | Book | Page | Price | Grantor | Grantee | |
|
2/28/2014 |
|
Mult Parcel |
$741,000 |
LANDMARK MCCALEB LLC |
SDI SFR LLC |
||
|
1/9/2012 |
|
Deeds |
$28,000 |
VALENCIA LAND LLC |
LANDMARK MCCALEB LLC |
||
| Last Mailed Notice of Value (N.O.V.) Information/History | ||||||||
|---|---|---|---|---|---|---|---|---|
| Year | Date | Market Value | Taxable Market Value | Gross Assessed | Exemption | Net Assessed | ||
|
2026 |
02/06/2026 |
255,500 |
229,729 |
25,269 |
0 |
25,269 |
||
|
2025 |
01/31/2025 |
259,000 |
218,790 |
24,066 |
0 |
24,066 |
||
|
2024 |
01/22/2024 |
253,500 |
208,372 |
22,920 |
0 |
22,920 |
||
|
2023 |
01/23/2023 |
242,000 |
198,450 |
21,829 |
0 |
21,829 |
||
|
2022 |
02/22/2022 |
208,500 |
189,000 |
20,790 |
0 |
20,790 |
||
| Property Building Permit History | ||||||
|---|---|---|---|---|---|---|
| Issued | Permit # | Provided by | Bldg # | Description | Est Construction Cost | Status |
|
1/20/2012 |
10437727 |
OKLAHOMA CITY |
1 |
Main Dwellin |
125,000 |
Inactive |
| Click button on building number to access detailed information: | ||||||
|---|---|---|---|---|---|---|
| Bldg # | Vacant/Improved Land | Bldg Description | Year Built | SqFt | # Stories | |
|
1 |
Improved |
Ranch 1 Story |
2012 |
1,419 |
1 Stories |
|