|
|
|
| Larry Stein Oklahoma County Assessor (405) 713-1200 - Public Access System |
|
|
|
|
|
|
| Real Property Display - Screen Produced 4/5/2026 12:02:43 PM | ||||
|---|---|---|---|---|
| Account: R120891700 | Type: Residential | Location: |
2805 PINTO TRL |
|
| Building Name/Occupant: |
|
EDMOND |
||
| Owner Name 1: | THORMODSGARD LINDA |
Parcel PIN#: |
4729-12-089-1700 |
|
| Owner Name 2: | 1/4 section #: |
4729 |
||
| Owner Name 3: | Parent Acct: |
|
||
| Billing Address: | 2805 PINTO TRL | Tax District: |
|
|
| City, State, Zip | EDMOND, OK 73012-6666 | School System: |
Edmond #12 |
|
|
Country: (If noted) |
Land Size: |
0.1656 Acres |
||
|
Land Value: 34,271 |
|
|||
|
Sect 33-T14N-R3W Qtr NE |
THE TRAILS SOUTH 7TH
Block
005
Lot
005
|
|||
| Full Legal Description: THE TRAILS SOUTH 7TH 005 005 |
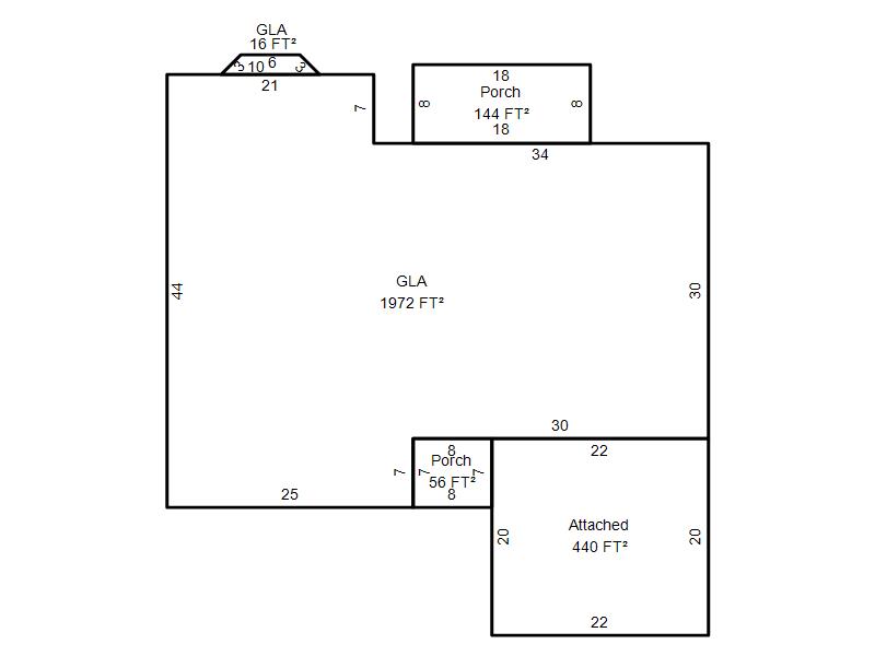
| Photo & Sketch (if available) | Comp Sales (ordered by relevancy) |
|
||||||||||||||||||
|
||||||||||||||||||||
| Value History (*The County Treasurer 405-713-1300 posts & collects actual tax amounts. Contact information HERE) | |||||||||||||
|---|---|---|---|---|---|---|---|---|---|---|---|---|---|
| Year | Market Value | Taxable Mkt Value | Gross Assessed | Exemption | Net Assessed | Millage | Est. Tax | Tax Savings | |||||
|
2026 |
260,500 |
137,020 |
15,072 |
1,000 |
14,072 |
105.16 |
$1,480 |
$1,534 |
|||||
|
2025 |
255,000 |
137,020 |
15,072 |
1,000 |
14,072 |
105.16 |
$1,480 |
$1,470 |
|||||
|
2024 |
253,000 |
137,020 |
15,072 |
1,000 |
14,072 |
105.03 |
$1,478 |
$1,445 |
|||||
|
2023 |
238,500 |
137,020 |
15,072 |
1,000 |
14,072 |
104.24 |
$1,467 |
$1,268 |
|||||
|
2022 |
209,500 |
137,020 |
15,072 |
1,000 |
14,072 |
104.64 |
$1,473 |
$939 |
|||||
| Property Account Status/Adjustments/Exemptions | ||
|---|---|---|
| Account # | Exemption Description | Amount |
|
R120891700 |
Freeze Senior Valuation |
0 |
|
R120891700 |
Homestead |
1,000 |
|
R120891700 |
3% Cap Homestead |
0 |
| Property Deed Transaction History (Recorded in the County Clerk's Office) | |||||||
|---|---|---|---|---|---|---|---|
| Date | Type | Book | Page | Price | Grantor | Grantee | |
|
9/8/1999 |
|
Hmstd Off & |
$0 |
HARTLAND CLARENCE E |
THORMODSGARD LINDA |
||
|
7/21/1999 |
|
Hmstd Off & |
$0 |
HARTLAND CLARENCE E & FLORENCE |
HARTLAND CLARENCE E |
||
|
6/15/1990 |
|
Historical |
$60,000 |
BENJAMIN FRANKLIN |
HARTLAND CLARENCE E & FLORENCE |
||
|
4/1/1986 |
|
Historical |
$0 |
|
BENJAMIN FRANKLIN |
||
| Last Mailed Notice of Value (N.O.V.) Information/History | ||||||||
|---|---|---|---|---|---|---|---|---|
| Year | Date | Market Value | Taxable Market Value | Gross Assessed | Exemption | Net Assessed | ||
|
2026 |
02/06/2026 |
260,500 |
137,020 |
15,072 |
1,000 |
14,072 |
||
|
2025 |
01/31/2025 |
255,000 |
137,020 |
15,072 |
1,000 |
14,072 |
||
|
2024 |
01/22/2024 |
253,000 |
137,020 |
15,072 |
1,000 |
14,072 |
||
|
2023 |
01/23/2023 |
238,500 |
137,020 |
15,072 |
1,000 |
14,072 |
||
|
2022 |
02/22/2022 |
209,500 |
137,020 |
15,072 |
1,000 |
14,072 |
||
| Property Building Permit History | |||||||||||
|---|---|---|---|---|---|---|---|---|---|---|---|
| Issued | Permit # | Provided by | Bldg # | Description | Est Construction Cost | Status | |||||
| No Building Permit records returned. | |||||||||||
| Click button on building number to access detailed information: | ||||||
|---|---|---|---|---|---|---|
| Bldg # | Vacant/Improved Land | Bldg Description | Year Built | SqFt | # Stories | |
|
1 |
Improved |
Ranch 1 Story |
1983 |
1,988 |
1 Stories |
|