|
|
|
| Larry Stein Oklahoma County Assessor (405) 713-1200 - Public Access System |
|
|
|
|
|
|
| Real Property Display - Screen Produced 4/9/2026 5:48:20 AM | ||||
|---|---|---|---|---|
| Account: R182252430 | Type: Residential | Location: |
1001 KELLY PARK RD |
|
| Building Name/Occupant: |
|
EDMOND |
||
| Owner Name 1: | SBJ RENTALS LLC |
Parcel PIN#: |
4734-18-225-2430 |
|
| Owner Name 2: | 1/4 section #: |
4734 |
||
| Owner Name 3: | Parent Acct: |
|
||
| Billing Address: | 10636 POND MEADOW DR | Tax District: |
|
|
| City, State, Zip | OKLAHOMA CITY, OK 73151 | School System: |
Edmond #12 |
|
|
Country: (If noted) |
Land Size: |
0.1993 Acres |
||
|
Land Value: 34,286 |
|
|||
|
Sect 34-T14N-R3W Qtr SE |
VAL GENES KELLY PARK III
Block
004
Lot
031
|
|||
| Full Legal Description: VAL GENES KELLY PARK III 004 031 |
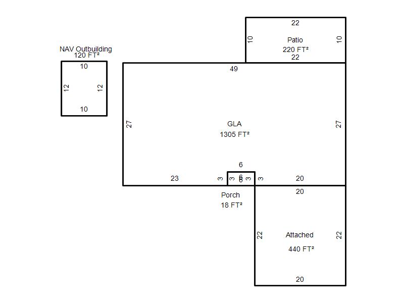
| Photo & Sketch (if available) | Comp Sales (ordered by relevancy) |
|
||||||||||||||||||
|
||||||||||||||||||||
| Value History (*The County Treasurer 405-713-1300 posts & collects actual tax amounts. Contact information HERE) | |||||||||||||
|---|---|---|---|---|---|---|---|---|---|---|---|---|---|
| Year | Market Value | Taxable Mkt Value | Gross Assessed | Exemption | Net Assessed | Millage | Est. Tax | Tax Savings | |||||
|
2026 |
210,500 |
183,591 |
20,194 |
0 |
20,194 |
105.16 |
$2,124 |
$311 |
|||||
|
2025 |
207,000 |
174,849 |
19,232 |
0 |
19,232 |
105.16 |
$2,023 |
$372 |
|||||
|
2024 |
201,000 |
166,523 |
18,317 |
0 |
18,317 |
105.03 |
$1,924 |
$398 |
|||||
|
2023 |
190,500 |
158,594 |
17,444 |
0 |
17,444 |
104.24 |
$1,819 |
$366 |
|||||
|
2022 |
167,000 |
151,042 |
16,614 |
0 |
16,614 |
104.64 |
$1,739 |
$184 |
|||||
| Property Account Status/Adjustments/Exemptions | ||
|---|---|---|
| Account # | Exemption Description | Amount |
|
R182252430 |
5% Capped Account |
0 |
| Property Deed Transaction History (Recorded in the County Clerk's Office) | ||||||||||
|---|---|---|---|---|---|---|---|---|---|---|
| Date | Type | Book | Page | Price | Grantor | Grantee | ||||
|
8/19/2020 |
|
Hmstd Off & |
$0 |
NALAGAN JUAN |
SBJ RENTALS LLC |
|||||
|
10/30/2017 |
|
Deeds |
$125,000 |
TENPENNY JON & LAUREN |
NALAGAN JUAN |
|||||
|
9/19/2013 |
|
Deeds |
$120,000 |
MCCRACKEN MELISSA S ADAMS ANTHONY A |
TENPENNY JON & LAUREN |
|||||
|
5/17/2010 |
|
Deeds |
$0 |
MCCRACKEN MELISSA S |
MCCRACKEN MELISSA S ADAMS ANTHONY A |
|||||
|
5/12/2010 |
|
Deeds |
$119,000 |
ERWIN RANDALL |
MCCRACKEN MELISSA S |
|||||
| Last Mailed Notice of Value (N.O.V.) Information/History | ||||||||
|---|---|---|---|---|---|---|---|---|
| Year | Date | Market Value | Taxable Market Value | Gross Assessed | Exemption | Net Assessed | ||
|
2026 |
02/06/2026 |
210,500 |
183,591 |
20,194 |
0 |
20,194 |
||
|
2025 |
01/31/2025 |
207,000 |
174,849 |
19,232 |
0 |
19,232 |
||
|
2024 |
01/22/2024 |
201,000 |
166,523 |
18,317 |
0 |
18,317 |
||
|
2023 |
01/23/2023 |
190,500 |
158,594 |
17,444 |
0 |
17,444 |
||
|
2022 |
02/22/2022 |
167,000 |
151,042 |
16,614 |
0 |
16,614 |
||
| Property Building Permit History | |||||||||||
|---|---|---|---|---|---|---|---|---|---|---|---|
| Issued | Permit # | Provided by | Bldg # | Description | Est Construction Cost | Status | |||||
| No Building Permit records returned. | |||||||||||
| Click button on building number to access detailed information: | ||||||
|---|---|---|---|---|---|---|
| Bldg # | Vacant/Improved Land | Bldg Description | Year Built | SqFt | # Stories | |
|
1 |
Improved |
Ranch 1 Story |
1977 |
1,305 |
1 Stories |
|