|
|
|
| Larry Stein Oklahoma County Assessor (405) 713-1200 - Public Access System |
|
|
|
|
|
|
| Real Property Display - Screen Produced 4/9/2026 5:41:48 AM | ||||
|---|---|---|---|---|
| Account: R182252920 | Type: Residential | Location: |
1000 APOLLO CIR |
|
| Building Name/Occupant: |
|
EDMOND |
||
| Owner Name 1: | WALKER MARIA T |
Parcel PIN#: |
4734-18-225-2920 |
|
| Owner Name 2: | ZEMAN MAHER WALKER ALISHA DESTINY GABRIELLA | 1/4 section #: |
4734 |
|
| Owner Name 3: | Parent Acct: |
|
||
| Billing Address: | 1000 APOLLO CIR | Tax District: |
|
|
| City, State, Zip | EDMOND, OK 73003-6010 | School System: |
Edmond #12 |
|
|
Country: (If noted) |
Land Size: |
0.1971 Acres |
||
|
Land Value: 34,000 |
|
|||
|
Sect 34-T14N-R3W Qtr SE |
VAL GENES KELLY PARK III
Block
008
Lot
011
|
|||
| Full Legal Description: VAL GENES KELLY PARK III 008 011 |
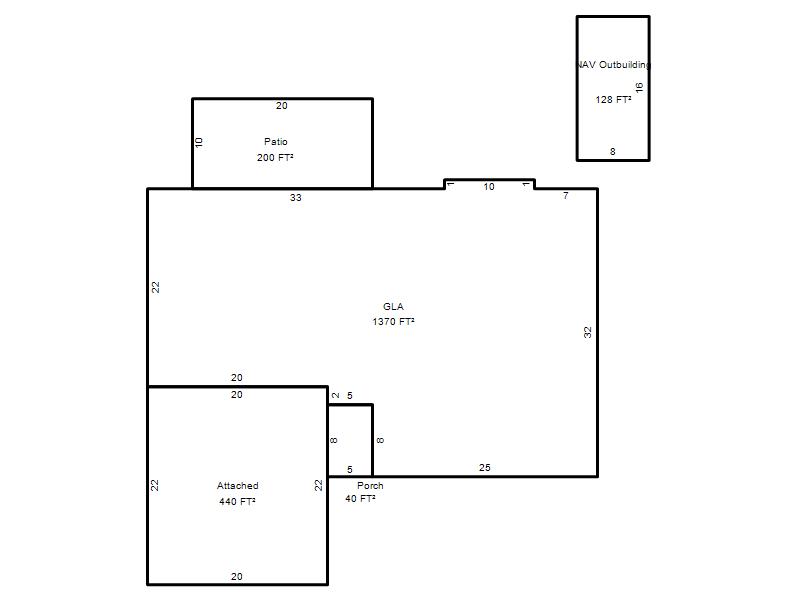
| Photo & Sketch (if available) | Comp Sales (ordered by relevancy) |
|
||||||||||||||||||
|
||||||||||||||||||||
| Value History (*The County Treasurer 405-713-1300 posts & collects actual tax amounts. Contact information HERE) | |||||||||||||
|---|---|---|---|---|---|---|---|---|---|---|---|---|---|
| Year | Market Value | Taxable Mkt Value | Gross Assessed | Exemption | Net Assessed | Millage | Est. Tax | Tax Savings | |||||
|
2026 |
202,500 |
154,030 |
16,942 |
1,000 |
15,942 |
105.16 |
$1,677 |
$666 |
|||||
|
2025 |
200,000 |
149,544 |
16,449 |
1,000 |
15,449 |
105.16 |
$1,625 |
$689 |
|||||
|
2024 |
193,000 |
145,189 |
15,970 |
1,000 |
14,970 |
105.03 |
$1,572 |
$657 |
|||||
|
2023 |
183,500 |
140,961 |
15,505 |
1,000 |
14,505 |
104.24 |
$1,512 |
$592 |
|||||
|
2022 |
160,500 |
136,856 |
15,053 |
1,000 |
14,053 |
104.64 |
$1,471 |
$377 |
|||||
| Property Account Status/Adjustments/Exemptions | ||
|---|---|---|
| Account # | Exemption Description | Amount |
|
R182252920 |
Homestead |
1,000 |
|
R182252920 |
3% Cap Homestead |
0 |
| Property Deed Transaction History (Recorded in the County Clerk's Office) | |||||||
|---|---|---|---|---|---|---|---|
| Date | Type | Book | Page | Price | Grantor | Grantee | |
|
6/13/2023 |
|
Deeds |
$0 |
WALKER MARIA T |
WALKER MARIA T |
||
|
9/27/2001 |
|
Deeds |
$0 |
WALKER MARIA T & TODD A |
WALKER MARIA T |
||
|
9/24/1998 |
|
Historical |
$55,000 |
MAHER CHARLED F & IRENE C |
WALKER MARIA T & TODD A |
||
|
8/1/1981 |
|
Historical |
$0 |
|
MAHER CHARLED F & IRENE C |
||
| Last Mailed Notice of Value (N.O.V.) Information/History | ||||||||
|---|---|---|---|---|---|---|---|---|
| Year | Date | Market Value | Taxable Market Value | Gross Assessed | Exemption | Net Assessed | ||
|
2026 |
02/06/2026 |
202,500 |
154,030 |
16,942 |
1,000 |
15,942 |
||
|
2025 |
01/31/2025 |
200,000 |
149,544 |
16,449 |
1,000 |
15,449 |
||
|
2024 |
01/22/2024 |
193,000 |
145,189 |
15,970 |
1,000 |
14,970 |
||
|
2023 |
01/23/2023 |
183,500 |
140,961 |
15,505 |
1,000 |
14,505 |
||
|
2022 |
02/22/2022 |
160,500 |
136,856 |
15,053 |
1,000 |
14,053 |
||
| Property Building Permit History | |||||||||||
|---|---|---|---|---|---|---|---|---|---|---|---|
| Issued | Permit # | Provided by | Bldg # | Description | Est Construction Cost | Status | |||||
| No Building Permit records returned. | |||||||||||
| Click button on building number to access detailed information: | ||||||
|---|---|---|---|---|---|---|
| Bldg # | Vacant/Improved Land | Bldg Description | Year Built | SqFt | # Stories | |
|
1 |
Improved |
Ranch 1 Story |
1977 |
1,370 |
1 Stories |
|