|
|
|
| Larry Stein Oklahoma County Assessor (405) 713-1200 - Public Access System |
|
|
|
|
|
|
| Real Property Display - Screen Produced 4/9/2026 9:47:51 AM | ||||
|---|---|---|---|---|
| Account: R183242480 | Type: Residential | Location: |
1410 W GEMINI RD |
|
| Building Name/Occupant: |
|
EDMOND |
||
| Owner Name 1: | MILLER PETER E |
Parcel PIN#: |
4734-18-324-2480 |
|
| Owner Name 2: | TABIBIAN SAYEDEHALA | 1/4 section #: |
4734 |
|
| Owner Name 3: | Parent Acct: |
|
||
| Billing Address: | 1410 W GEMINI RD | Tax District: |
|
|
| City, State, Zip | EDMOND, OK 73003-5814 | School System: |
Edmond #12 |
|
|
Country: (If noted) |
Land Size: |
0.1848 Acres |
||
|
Land Value: 31,798 |
|
|||
|
Sect 34-T14N-R3W Qtr SE |
VAL GENES KELLY PARK 5
Block
007
Lot
014
|
|||
| Full Legal Description: VAL GENES KELLY PARK 5 007 014 |
| Photo & Sketch (if available) | Comp Sales (ordered by relevancy) |
|
||||||||||||||||||
|
||||||||||||||||||||
| Value History (*The County Treasurer 405-713-1300 posts & collects actual tax amounts. Contact information HERE) | |||||||||||||
|---|---|---|---|---|---|---|---|---|---|---|---|---|---|
| Year | Market Value | Taxable Mkt Value | Gross Assessed | Exemption | Net Assessed | Millage | Est. Tax | Tax Savings | |||||
|
2026 |
232,000 |
224,260 |
24,667 |
0 |
24,667 |
105.16 |
$2,594 |
$90 |
|||||
|
2025 |
228,500 |
213,581 |
23,493 |
0 |
23,493 |
105.16 |
$2,471 |
$173 |
|||||
|
2024 |
222,500 |
203,411 |
22,374 |
0 |
22,374 |
105.03 |
$2,350 |
$221 |
|||||
|
2023 |
211,000 |
193,725 |
21,309 |
0 |
21,309 |
104.24 |
$2,221 |
$198 |
|||||
|
2022 |
184,500 |
184,500 |
20,295 |
0 |
20,295 |
104.64 |
$2,124 |
$0 |
|||||
| Property Account Status/Adjustments/Exemptions | ||
|---|---|---|
| Account # | Exemption Description | Amount |
|
R183242480 |
5% Capped Account |
0 |
| Property Deed Transaction History (Recorded in the County Clerk's Office) | ||||||||||
|---|---|---|---|---|---|---|---|---|---|---|
| Date | Type | Book | Page | Price | Grantor | Grantee | ||||
|
1/7/2025 |
|
Hmstd Off & |
$0 |
MILLER PETER E |
MILLER PETER E |
|||||
|
5/17/2021 |
|
Deeds |
$190,000 |
KIEDINGER JAKE EDWARD |
MILLER PETER E |
|||||
|
10/26/2018 |
|
Deeds |
$145,000 |
KELLEY HANNA |
KIEDINGER JAKE EDWARD |
|||||
|
3/13/2014 |
|
Deeds |
$133,000 |
LOVERIDGE GARRETT D & KIMBERLY M |
KELLEY HANNA |
|||||
|
9/17/2012 |
|
Deeds |
$0 |
LOVERIDGE KRISTIAN O LOVERIDGE GARRETT D |
LOVERIDGE GARRETT D & KIMBERLY M |
|||||
| Last Mailed Notice of Value (N.O.V.) Information/History | ||||||||
|---|---|---|---|---|---|---|---|---|
| Year | Date | Market Value | Taxable Market Value | Gross Assessed | Exemption | Net Assessed | ||
|
2026 |
02/06/2026 |
232,000 |
224,260 |
24,667 |
0 |
24,667 |
||
|
2025 |
01/31/2025 |
228,500 |
213,581 |
23,493 |
0 |
23,493 |
||
|
2025 |
03/28/2025 |
228,500 |
213,581 |
23,493 |
0 |
23,493 |
||
|
2024 |
01/22/2024 |
222,500 |
203,411 |
22,374 |
0 |
22,374 |
||
|
2023 |
01/23/2023 |
211,000 |
193,725 |
21,309 |
0 |
21,309 |
||
| Property Building Permit History | |||||||||||
|---|---|---|---|---|---|---|---|---|---|---|---|
| Issued | Permit # | Provided by | Bldg # | Description | Est Construction Cost | Status | |||||
| No Building Permit records returned. | |||||||||||
| Click button on building number to access detailed information: | ||||||
|---|---|---|---|---|---|---|
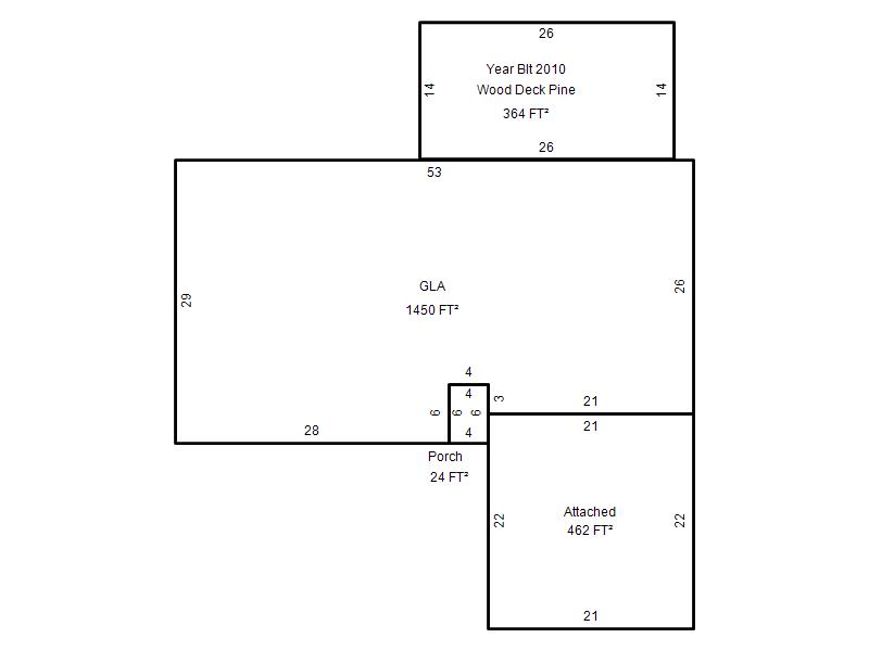
| Bldg # | Vacant/Improved Land | Bldg Description | Year Built | SqFt | # Stories | |
|
1 |
Improved |
Ranch 1 Story |
1980 |
1,450 |
1 Stories |
|